Forschungsbau Global Hub der Universität Leipzig
Leipzig, Germany
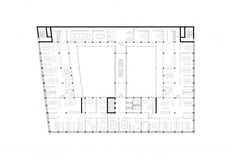
Ziel der Gebäudestruktur des Global Hubs ist die bestmögliche Verknüpfung der unterschiedlichen Nutzungsteil-bereiche, um den Austausch unter den hier arbeitenden Menschen zu fördern. Dafür wurde das Gebäude ring-förmig als Zwei- und Einhüfter mit einem Innenhof und einer zentralen Kommunikationsachse ausgebildet. Das Erdgeschoss öffnet sich mit seinem Forum in der Mitte sowohl zur Straße als auch zum Innenhof. Auf bei-den Seiten des Eingangsbereichs und Foyers liegen gut exponiert und ebenfalls über großzügige Glasflächen mit dem Straßenraum verbunden das Transferlab und das Tageszentrum. Die zentrale Kommunikationsachse verbindet alle Nutzungseinheiten der Obergeschosse sowie und gemeinschaftlich genutzten Funktionen wie Labs, Meeting-, Loungebereiche, sowie WCs und Aufzügen. Die Brücken bieten die Möglichkeit, in wettergeschützer Außenraumatmosphäre zu verweilen und sich zu besprechen.
- Architects
- MTTR Architekten + Stadtplaner
- Any
- 2021
- Estat del projecte
- En construcció
- Client
- Freistaat Sachsen
- Equip
- André Schmidt, Joris Fach, Léa De Piccoli, Ada Ehrhardt
- Architektur
- Sander Hofrichter Architekten & MTTR Architekten + Stadtplaner












