Forschungszentrum Sedus Stoll AG
Dogern, Germany
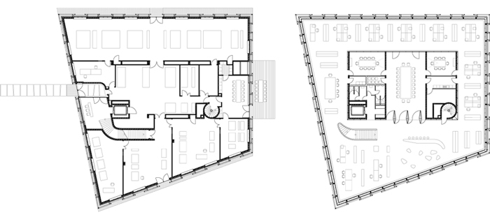
Das Entwicklungs- und Innovationszentrum bildet im Maßstab und durch die Ausbildung seines Volumens ein Bindeglied zwischen der Wohnsiedlung am westlichen Ortsrand von Dogern und dem Firmengelände der Sedus Stoll AG.
Durch die räumliche Drehung der Eingangsfassade im Westen gelingt es zwischen der Eingangsituation der Verwaltung und dem Grundstückszugang zu vermitteln. Die durch die Fassadengestaltung als “verhüllt” erlebte, und gleichwohl augenscheinlich “einfache” skulpturale Form des Gebäudes, setzt ein reales Raumerlebnis bewusst in den Kontext der bildhaften Erscheinung des Hochregallagers.
Die Fassaden erhalten umlaufend eine textile Verkleidung aus stehenden trapezförmigen Formaten, die in zwei Ebenen gestaffelt sind. Der Gedanke eines umwickelten, leicht verhüllten Körpers liegt nahe, der Eindruck eines vollständig textil “verpackten” Volumens entsteht. Durch die Überlagerungen der durchsichtigen Fassadenbekleidungselemente entstehen, je nach Blickwinkel und Helligkeit, unterschiedliche Transparenzen, die dem Gebäude eine fast immaterielle Leichtigkeit verleihen. Über das Foyer wird eine angewendelte Treppe erschlossen, sie führt auf das Plateau des 1. Obergeschosses, das als “Einraum” mit eingestelltem “Konferenzkern” erlebt wird. Die Untersicht der im First gefalteten Dachfläche reicht als geknickte Wandfläche bis zum Fensterband herab. Das Dach scheint auf dem umlaufenden Fensterband zu schweben.
- Architects
- Ludloff Ludloff Architekten
- Any
- 2009
- Estat del projecte
- Construït
- Client
- Sedus Stoll AG
- Aufgabe
- Neubau eines Forschungsgebäudes zur Entwicklung und Produktion von Prototypen bis zur Serienreife
- Architektenleistungen
- LP 2-8












