Um- und Ausbau Wohn- und Bürogebäude von 1874
Die Bauherrschaft wünschte sich für ihr Stadthaus von 1874, dass im Rahmen der notwendig gewordenen Sanierungsmassnahmen nicht nur technische und energetische Verbesserungen, sondern auch ein räumlicher Flächen- und Qualitätsgewinn entstehen sollte.
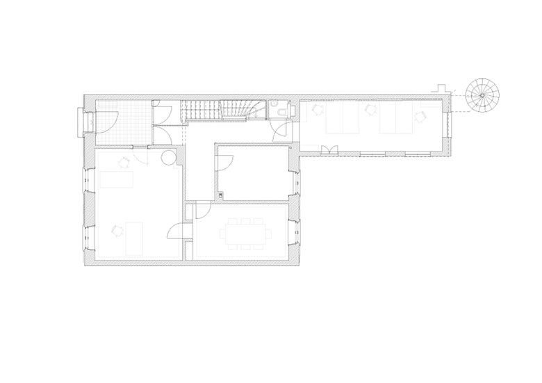
Die Herausforderung bestand darin, alt und neu unter einem Dach zu vereinen, das Haus einerseits logisch weiterzubauen, aber in Teilen auch neu zu interpretieren und mit zeitgemässen Räumen zu ergänzen. Wichtig dabei war, dass kein Eingriff, kein neues Bauteil Bestehendes optisch beeinträchtigt. Äusserlich musste das Haus trotz massiver Eingriffe ein Ganzes bleiben und sich harmonisch in die Häuserzeile eingliedern.
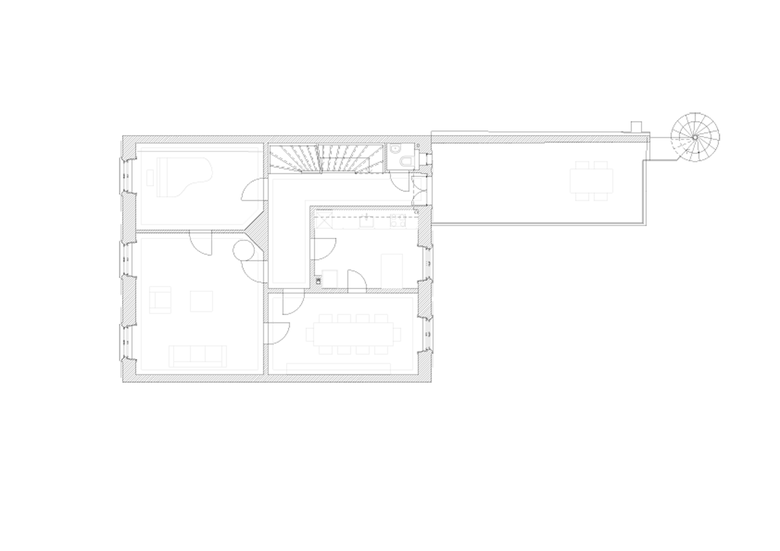
Bei den baulichen Massnahmen in den Bestandsgeschossen galt es, richtig abzuwägen, welche Teile nur entfernt, ersetzt oder neu dazu kommen sollten. Die Bauteile mit längeren Lebenszeiten, wie Böden und Decken wurden, falls nötig, originalgetreu rekonstruiert, während Einrichtungen und Möblierung im Ausdruck eher der heutigen Zeit zugeordnet werden können.
Auch hier galt das übergeordnete Prinzip, dass jede Massnahme die wesentlichen Qualitäten und die Gesamtwirkung verstärken sollten.
Wichtig war es beispielsweise, die ursprünglichen Raumabfolgen wiederherzustellen und diese auch über die neu zu definierenden Nutzungsverteilung zu verstärken. So wurde an der Stelle des ehemaligen Badezimmers aus den 40er Jahren die Küche eingerichtet, die spiralförmig von Ess-, Wohn- und Musikzimmer gefolgt werden.
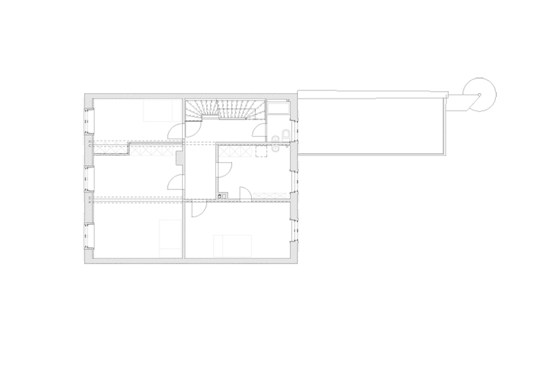
Das Haus verfügt dank seiner Lage in einer Häuserzeile, was die thermische Hülle angeht, über ein gute Ausgangslage. Mit dem zusätzlichen Dämmen der Kellerdecke und dem neuen, sehr gut isolierten Dachaufbau sind 71% der Hülle thermisch isoliert. Auf das aussen Dämmen der Bestandsfassaden und der damit einhergehenden Zerstörung des Ausdrucks wurde verzichtet.
Die bestehenden alten Kachelöfen wurden leicht überholt, so dass sie insbesondere zum Heizen in den Übergangszeiten wieder in Betrieb genommen werden können. Im Dachgeschoss ergänzt ein neuer Cheminéeofen das Aufheizen in der Heizperiode.
Die Warmwasseraufbereitung erfolgt neu über, ins neue Dach integrierte, Kollektoren. So können etwa 60% des Bedarfs ohne Stromverbrauch gedeckt werden. Eine Photovoltaikanlage produziert zudem Strom, der ins öffentliche Netz eingespeist wird.
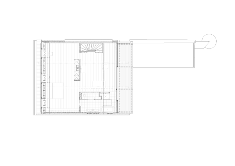
Dem Besucher offenbart sich die Neubaumassnahme im Dachgeschoss erst bei der inneren Erkundung. Auf der Höhe des ehemaligen Estrichs entsteht unter dem neuen,
von Brandwand zu Brandwand spannenden Holzdach, ein loftartiger Innenraum, der nur mit nichttragenden Einbauten untergegliedert wird.
Eine grosszügige, sich über die gesamte Hausbreite ersteckende Terrasse lässt die Innenräume mit dem grossen, grünen Hof des Quartiers zusammenfliessen. So verbinden sich die Dachräume mit dem schönen Licht, der Ruhe und
dem erholsamen Grün des Innenhofs.
Die neue Terrasse bildet hofseitig den Abschluss einer vertikal gewachsenen Abfolge von Aussenräumen, die über Aussen- und Innentreppen zur promenade architecturale einladen.
Unter dem grossen Dach wurde für das neue Bad eine eigene Hütte gebaut. Sie besteht aus einem länglichen Volumen, das Toilette, Regal, Schrank und Dusche enthält, darüber befindet sich ein kleiner Estrich. Dem Körper mit den kompakt verstauten Funktionen steht der offene, fliessende Raum mit den Lavabos und der halb freistehenden Badewanne gegenüber. Mit den drei platzsparenden Schiebetüren und dem Vorhang können verschiedene räumliche Situationen und Privatsphären geschaffen werden: Von geborgen, vor Einblicken geschützt bis sonnendurchflutet und offen. Hellgraue und weisse Oberflächen reflektieren die einzige Farbe, die des weiss-grünen Zementfliesenbodens derart, dass je nach Licht, ganz unterschiedliche Nuancen und Schattierungen entstehen.
- Architects
- Forsberg Architekten AG
- Any
- 2008
- Estat del projecte
- Construït
Projectes relacionats
Revista
-
-
Bâtiment de la semaine
The Three-Body Problem: Trapped in a Wave Sandwich
Eduard Kögel, Scenic Architecture Office | 13.04.2026 -



























