Umbau und Umnutzung eines Bürogebäudes

Hauptzugang
Fotografia © Roman Weyeneth

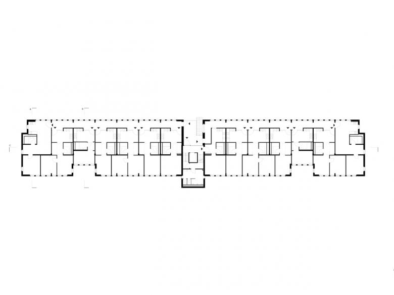
An der Kriegackerstrasse in Muttenz liegt eine bis anhin als Bürogebäude genutzte Liegenschaft aus dem Jahr 1983, eingebettet in ein gewerblich geprägtes Quartier mit aufgelockerter Blockrandbebauung und vereinzelten Wohnnutzungen. Das Gebäude mit drei Vollgeschossen und einer Einstellhalle gliedert sich in ein lineares Volumen, bestehend aus zwei nahezu identischen Baukörpern mit zentraler Erschliessung. Charakteristisch war die funktionale Erschliessung über Mittelgänge, entlang derer zellenartig organisierte Büroräume angeordnet waren.

Das Bestreben der Bauherrschaft lag in der Reduktion der bestehenden Büroflächen zugunsten einer ergänzenden Wohnnutzung. Im Zuge der Projektbearbeitung – in enger Zusammenarbeit mit Burckhardt Architekten als Generalplaner – wurde das Gebäude durch gezielte, präzise Eingriffe neu strukturiert. So konnte eine funktionale und räumliche Nutzungsschichtung von Wohnen in den beiden unteren sowie Büro in den darüberliegenden Geschossen innerhalb desselben Baukörpers ermöglicht werden. Die bestehende Raumstruktur wurde rückgebaut, die statische Aussteifung des Gebäudes durch entsprechende Massnahmen ergänzt, und die neue Raumorganisation durch neu eingezogene Innenwände definiert.

Künftig beherbergt das Erdgeschoss familiengerechte Wohnungen mit ebenerdiger Erschliessung, privaten Zugängen und hofseitig zugewiesenen Gartenflächen. Im darüberliegenden Geschoss erfolgt die Erschliessung der kompakten Studiowohnungen über einen neu integrierten, nordseitig angeordneten Korridor.

Im Gegensatz zur vorherigen kleinteiligen Raumstruktur sind die Büroflächen heute als offene, grosszügig nutzbare Open-Space-Bereiche konzipiert. Die beiden Bürogeschosse sind durch gezielt gesetzte Deckenausschnitte mit internen Treppen verbunden, die nicht nur der vertikalen Erschliessung, sondern auch der räumlichen Verzahnung und Sichtverbindung dienen. Zusätzlich integrierte Gauben und Dachterrassen führen Tageslicht in den Innenraum und werten die Aufenthaltsqualität im Bürobereich auf.

Die überarbeitete Fassadengestaltung stärkt die Präsenz im städtebaulichen Kontext und verleiht dem Gebäude eine zeitgemässe Aussenwirkung.

Im Rahmen der umfassenden Sanierung lag der Fokus auf einem sensiblen Umgang mit dem Bestand, um die Qualitäten der ursprünglichen Bausubstanz zu bewahren und gezielt in die neuen Nutzungskonzepte einzubinden.

Bürogeschoss
Fotografia © Niko Kopp
Bürogeschoss
Fotografia © Niko Kopp
Bürogeschosse - Vertikale Verbindung
Fotografia © Niko Kopp
Eingangsbereich EG-Wohnung
Fotografia © Niko Kopp
EG-Wohnung
Fotografia © Niko Kopp
Korridorerschliessung
Fotografia © Niko Kopp
Erdgeschoss - Wohnen
Dibuix © Superdraft Studio
1. Obergeschoss - Wohnen
Dibuix © Superdraft Studio
2. Obergeschoss - Büros
Dibuix © Superdraft Studio
Dachgeschoss - Büros
Dibuix © Superdraft Studio
Längsschnitt
Dibuix © Superdraft Studio
Axonometrie - Nutzungsverteilung
Dibuix © Superdraft Studio
Architects
Superdraft Studio Basel
Any
2025
Estat del projecte
Construït
Equip
Superdraft Studio, Burckhardt Architekten

Projectes relacionats 

  • Moos
    playze
  • Reiters Reserve Premium Suiten
    BEHF Architects
  • Erweiterung und Instandsetzung Hallenbad Altstetten
    MIYO Visualisierung
  • Neubau von fünf Einfamilienhäusern
    Bäumlin+John AG
  • The Forge in der 105 Sumner Street in London
    Kiefer Klimatechnik GmbH

Revista 

Altres projectes per Superdraft Studio Basel 

Raiffeisenbank Binningen
Binningen, Switzerland
Dachaufstockung Herrengrabenweg
Basel, Switzerland
Raiffeisenbank Aesch
Aesch, Switzerland
Neubau Manufakt 8409
Winterthur, Switzerland
Umbau Lerchenstrasse
Basel, Switzerland