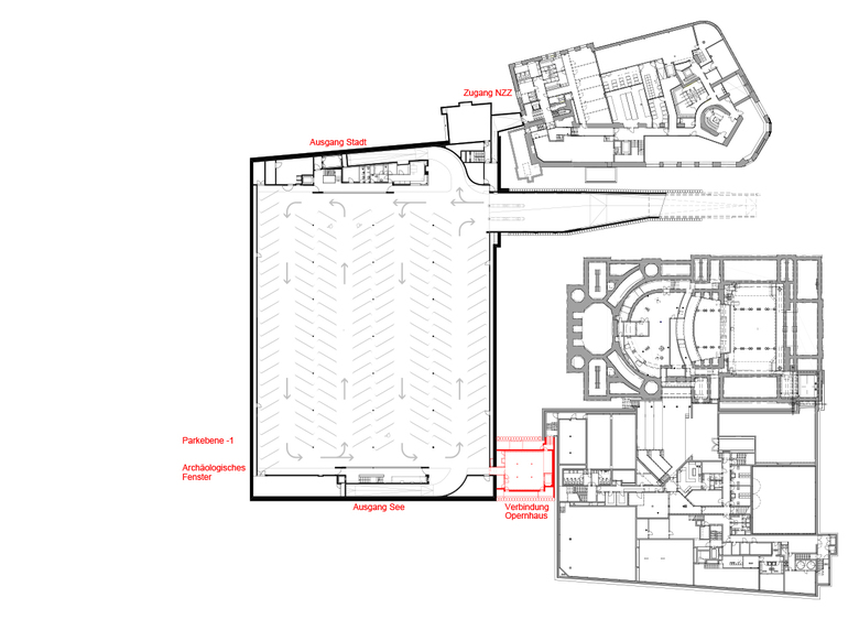
Verbindung Opernhaus - Parkhaus Opéra, Foyererweiterung Bernhardtheater
Zürich, Switzerland
Im September 2013 eröffnete die Opernhaus Zürich AG die direkte Verbindung des Parkhauses Opèra zum Opernhaus als Ersatz der grosszügigen Wandelhalle, die 2001 Bestandteil des siegreichen Wettbewerbsprojektes opus one im internationalen Projektwettbewerb „ Ein neuer Platz für Zürich – Opernhaus-Parking und Freiraumgestaltung Bellevue – Stadelhofen“ war.
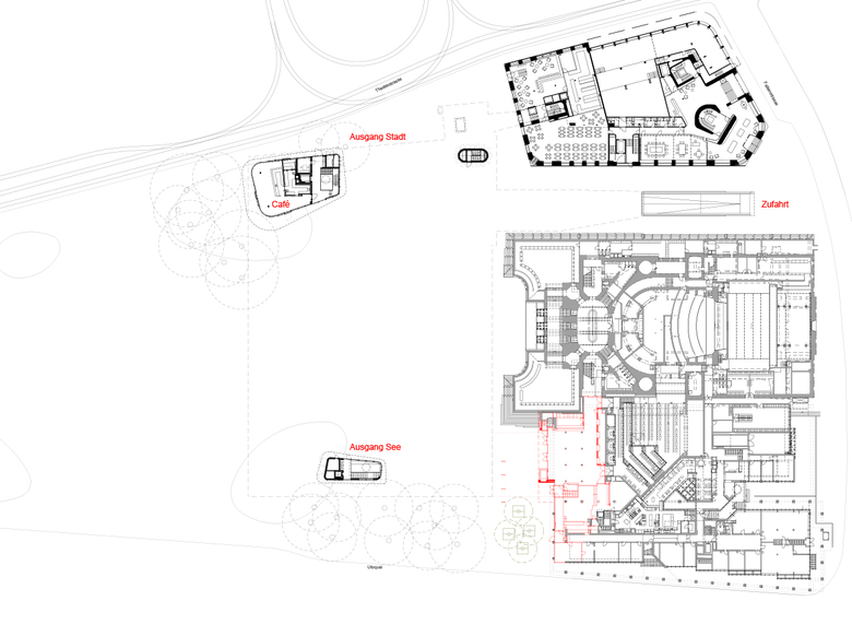
In Verlängerung des seeseitigen Aufganges des Parkhauses Opèra bietet sich heute auf der Ebene -1 der einladende Zugang zum Opernhaus. Schon von weiten leuchten die kupferfarbigen Wände der Schleuse in das Parkhaus. Der unterirdische Verbindungsraum vermittelt zwischen Parkhaus und Opernhauswelt: Er bildet mit der grossflächigen Projektion und den wandbegleitenden, farbig hinterlegten Kupfervorhängen den festlichen Auftakt zur Oper. In Bild und Originalton zeigen sich hier grossformatig die aktuellen Opern- und Ballettproduktionen.
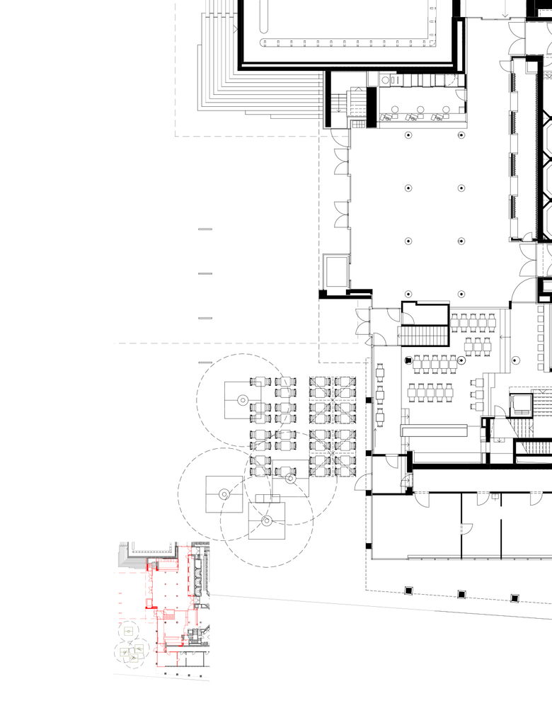
Der verglaste Lift führt hinauf in das neue Foyer, das zum Infozentrum mit Billettkasse und Garderobe Bernhardtheater umgebaut wurde. Ausserhalb der Vorstellungen des Bernhardtheaters schliessen die raumhohen Schiebetüren die Garderobe und werden zum diskret gefalteten Hintergrund des Foyer - raums. Bildschirme und ein LED – Laufband informieren über Vorstellungen und Angebote.
Durch das neue angrenzende Bistro mit Aussenbestuhlung erhält das Restaurant Belcanto den gross-zügigen Anschluss an den Sechseläutenplatz. Die um drei Stufen angehobene Hauptebene des Bistros verweist auf die komplexe Umbausituation: unter dem scheinbaren Podest befindet sich direkt die bestehende Lüftung des Ballettsaals.
Das Farb- und Materialkonzept sucht die Verbindung der sehr unterschiedlichen Räume im Unter- und Erdgeschoss. Der metallische Kupferfarbton, das Aubergine differenziert in glatter Ausführung und Ausführung mit grober Kammstruktur und glänzendes Schwarz prägen auf einfache und kostenbewusste Weise die frische Festlichkeit, unterstützt durch die mundgeblasenen grossformatigen Leuchten.
Die helle Farbe des gestrahlten Kalkbetons lässt das neue Foyer zum Teil des Opernhaussockels werden. Der lachsfarbene Verwaltungsbau tritt dabei optisch subtil in den Hintergrund.
Die grosszügigen Verglasungen geben den Blick frei auf das Leben in Foyer und Bistro:
Das Opernhaus öffnet sich mit verbreiteter Front auf den neuen Platz.
Bauherr
Opernhaus Zürich c/o Baudirektion Kanton Zürich
Planerteam
Architekt: Zach +Zünd
Projektleiter: Stephan Rist
Landschaftsarchitekt: vetschpartner
Bauingenieur: Heyer Kaufmann Partner
Fachplaner
Spezialtiefbau: Gysi Leoni Mader
Gebäudetechnik: Amstein + Walthert
Bauphysik: Bakus
Lichtplaner: d’lite
Farbberatung: Jean Pfaff
Bauleitung: Zach + Zünd mit Confirm
- Architects
- Zach + Zünd
- Any
- 2013
- Estat del projecte
- Construït




















