Besucherzentrum, Restaurant „Haus Müngsten“
Müngstener Brückenweg, Solingen, Germany
Mit seiner einfachen zeichenhaften Formsprache bildet das neue Gastronomiegebäude den markanten Start- bzw. Endpunkt des Brückenparks am Fuße der Müngstener Brücke, Deutschlands höchster Eisenbahnbrücke. Das Gebäude orientiert sich giebelständig zum Park und bildet mit seiner einfachen, leicht wieder erkennbaren „Haus-Typologie“ ein unverwechselbares Zeichen für die Parkbesucher.
Das zweigeschossige Gebäude besteht aus einer homogenen Fassade aus wetterfestem Baustahl, dessen rostrote Oberfläche sich sensibel in die natürlichen Farben der Landschaft einfügt und einen inhaltlichen Bezug zur filigranen Stahlkonstruktion des Brückenbogens sowie zum industriellen Hintergrund des Tals und der Region herstellt.
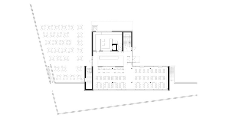
Das als Ausflugs- und Veranstaltungslokal konzipierte Gebäude beinhaltet eine Café- und Restaurantnutzung auf zwei Ebenen im Erd- und Obergeschoss. Die zentrale Speisenvorbereitungs- und Versorgungseinheit befindet sich in dem in den Hang integrierten Sockelgeschoss mit direktem Zugang zur Wupperterrasse. Das Dachgeschoss beinhaltet eine hochwertige Loft-Wohnung, deren Belichtung über einfache Einschnitte in den Dachfläche erfolgt, ohne dass zusätzliche Öffnungen in den ruhigen Fassadenflächen erforderlich werden.
Die mit hochwertigen Holzfußböden ausgestatteten Gasträume öffnen sich mit großen Fensteröffnungen zur Wupper- und Parkseite und ermöglichen so einen größtmöglichen Bezug zur umgebenen Natur des Brückenparks.
Haus Müngsten bildet den 1. Bauabschnitt des im Jahr 2008 entschiedenen Realisierungswettbewerbs zum Besucherzentrum im Brückenpark Müngsten. Die Betriebsführung der neuen Gastronomie wird von der Integra Solingen gGmbH übernommen.
Die Integra Solingen ist ein Integrationsunternehmen der Lebenshilfe Werkstatt für Behinderte Solingen. Nach Inbetriebnahme der Gastronomie sind 8 Arbeitsplätze für Menschen mit Behinderung entstanden.
Wettbewerb
1. Preis 2008
Fertigstellung
05/2010
BGF
ca. 3.000 m²
Baukosten
3,5 Mio €
Zusammenarbeit mit
Atelier LOIDL Landschaftsarchitekten, Berlin
Fotograf
Dirk Krüll
Modellbild
modellwerk weimar
- Architects
- pape + pape architekten
- Any
- 2010
- Estat del projecte
- Construït














