Wohnüberbauung Areal Fischenrüti
Horgen, Switzerland
Entlang der Bergstrasse in Horgen entsteht ein neues Quartier mit ca 400 Einwohnern und über 300 Arbeitsplätzen. Die markante topographische Situation des Nordhangs, die engen baurechtlichen Bedingungen, qualitätsvolle Innen- und Aussenräume für soziales Zusammenwohnen und der haushälterische Umgang mit dem Boden prägen das städtebauliche Konzept des Areals Fischenrüti als Teilgebiet dieses neuen Trift Quartiers.
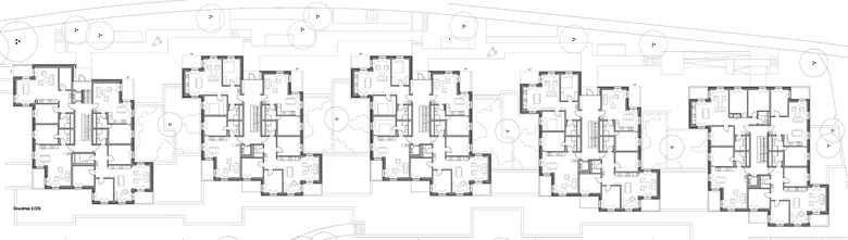
Die fünf kompakten Wohnhäuser besetzen in konzentrierter Bebauung nur knapp die Hälfte des Areals. Entlang der Bergstrasse bilden die Wohngebäude eine zusammenhängende Kette aus Gebäudevolumen und Gartenhofräumen. Die offene Vorzone an der Bergstrasse und die gebaute Terrasse auf der Talseite mit Verbindungen zum Höhenweg fassen als differenzierte gemeinschaftliche Aussenräume das Ensemble zusätzlich zusammen.
Jede Hausgemeinschaft besteht aus 9 - 13 Wohneinheiten, die für unterschiedliche Wohnformen ausbaubar sind. Die Wohnungen mit geringer Wohnfläche pro Person sind mit minimalen Erschliessungsflächen effizient organisiert. Die Grundrisse bauen durchgehend über alle Wohnungsgrössen auf dem Raummodul von 14 qm auf, - inkl. Küchen und Wohnzimmer, die auch flexibel durch individuelle Möblierungen voneinander getrennt genutzt werden können. D.h. auch das Wohnzimmer ist als separater Individualraum nutzbar.
Die Flexibilität und Mehrfachnutzbarkeit der Raumeinheiten erlaubt auch zukünftig eine Veränderung und Anpassung an sich entwickelnde Vorstellungen und Szenarien.
Alle Wohnungen orientieren sich in mindestens zwei Himmelsrichtungen mit weiten Ausblicken von Nord bis Südost und verfügen über vielfältige private Aussenräume.
Die Materialisierung unterstützt die angestrebte Einheit von Haus und Aussenraum, von Gebäudeesemble und Landschaft: Ein helles Mauerwerk wird zum prägenden, sinnlich erfahrbaren Material: Fassaden, Gartenmauern, Wege, Plätze, Sitzmauern, - vertikale und horizontale Flächen werden zur Einheit aus Stein und bilden einen starken Kontrast zum Grün der Gärten und der Landschaft.
Im Innern wird eine einfache und reduzierte Materialisierung angestrebt, die in ihrer Direktheit und ihrer Wechselwirkung mit den Blickbeziehungen ins Grüne sinnlich erfahrbar ist.
Das Projekt ist gemäss den Anforderungen der 2000 Watt – Gesellschaft entwickelt. (2302)
- Architects
- Zach + Zünd
- Any
- 2026
- Estat del projecte
- Construït
- Client
- trift Bewirtschaftung von Grundstücken
- Aussenraum
- Manoa Landschaft
Projectes relacionats
Revista
-
-
Bâtiment de la semaine
The Three-Body Problem: Trapped in a Wave Sandwich
Eduard Kögel, Scenic Architecture Office | 13.04.2026 -
























