«Wrighthouse» Glattpark
Opfikon, Switzerland
Glattpark anstadt --
Glattpark wurde gleich in mehrfacher Hinsicht zum Neuland: Das «Wrighthouse» überzeugte eine Baugenossenschaft so, dass sie einen Teil davon als fertiges Wohnprojekt vom TU erwarb.
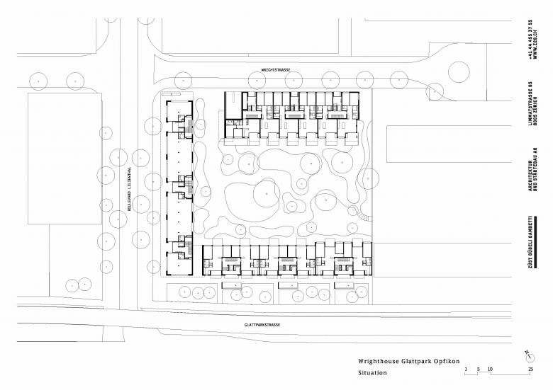
New Zurich findet statt. Stadtentwicklung auf Opfiker Boden, von der Gemeinde und Privaten angetrieben. Aktuell formiert sich in der einstigen Peripherie ein ganzer Stadtteil. Und zugleich ein Experimentierfeld für neuartige urbane Qualitäten, das die Vorzüge städtischer und ländlicher Lebenswelten vereint. Zumindest war dies der Anspruch von Züst Gübeli Gambetti, als sie mit «Wrighthouse» das städtische Modell des Blockrands neu interpretierten – um einen starken Ort zu schaffen.
Baumasse und Höhenentwicklung der städtebaulichen Komposition markieren den Auftakt zum zentralen Boulevard Lilienthal. Die U-förmige Anlage fügt sich aus einem Längs- und Winkelbau. In ihrer Mitte fassen sie einen erhöhten Hof, der sich zum nahen Grün hin öffnet. Stadtseitig angenehm abgeschirmt, etabliert dieser intim gestaltete kollektive Binnenraum ein Kontrastprogramm zur Aussenwelt. Der Mix aus Gewerbe, Miet- und Eigentumswohnungen sorgt insgesamt für eine vitale Durchmischung. Und er erfüllt die Bedürfnisse einer urbanen Bewohnerschaft, die städtisches Flair mit Grünanschluss sucht.
Besondere Aufmerksamkeit erfuhr deshalb auch das Erdgeschoss. Entlang des Boulevards ermöglicht der rückspringende Sockel mit seiner Überhöhe vielfältige Nutzungen und beschirmtes Flanieren. Die Seiten antworten mit Hochparterrewohnungen und vermittelnden Übergängen zwischen Privat und Öffentlich. Räumliche Qualitäten und Wohnungsspiegel weckten deshalb auch das Interesse einer lokalen Baugenossenschaft. Mit dem Winkelbau erwarben sie entgegen ihrer Maxime ein fertiges Projekt, um sich neue Mietersegmente zu erschliessen.
- Habitatge plurifamiliar
- Bloc d'habitatges
- Uso Mixt
- Retail + Stores
- Desenvolupaments Urbans
- Estudis Urbans
- Architects
- Züst Gübeli Gambetti
- Any
- 2014
- Estat del projecte
- Construït
- Client
- Implenia Development AG
- Equip
- Baumanagement Implenia Schweiz AG, Generalunternehmer Implenia Schweiz AG, Statik Henauer Gugler AG, Bauphysik Kopitsis Bauphysik, Elektro Meyer + Partner AG, HLKS Getec Zürich AG, Landschaft Hager Partner AG, Farbkonzept Thomas Rutherfoord














