Umbau eines Wohnhauses
Untersucht wurde, wie sich das Haus so umbauen lässt, dass sich die neuen Eigentümer damit identifizieren und sich gleichzeitig die Energiebilanz verbessert. Mein Beitrag war das Aufzeigen von Möglichkeiten: gestalterisch, aber auch statisch und technisch. Die Bauherren führen alle Arbeiten in Eigenleistung aus.
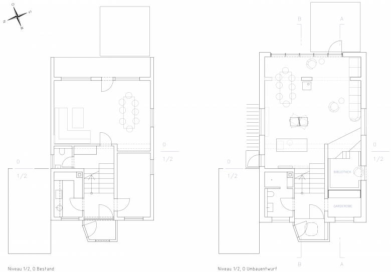
Das auf einem schmalen langen Hanggrundstück mit freiem Blick ins Grüne stehende Haus war in ästhetischer wie praktischer Hinsicht problematisch: ein asymmetrisches Dach mit flacher Neigung, darunter kleinteilige Halbgeschosse und schmale Balkone zwischen langen fast fensterlosen Wandscheiben. Das Gartengeschoss sprang zurück, sodass die oberen Stockwerke Übergewicht zu haben schienen. Der Garten wirkte vom Haus weit entfernt, der halbgeschossige Versatz war durch das abgetrennte Treppenhaus kaum ablesbar.
Der Umgestaltungsentwurf holt im Inneren des Hauses die versteckten Qualitäten ans Licht: Auf der Gartenseite können in allen Geschossen ohne viel Aufwand und Kosten nichttragende Innenwände entfernt werden. Auch die Außenwände zu den Balkonen sind außer versteckten Trägern und Stützen nichttragend und können abgebrochen werden. Frei vor die auskragenden Bodenplatten der Balkone kann eine leichte transparente Pfosten-Riegel-Fassade gesetzt werden. So entstehen auf dieser Hausseite großzügige Räume, die in den Garten überzugehen scheinen.
Die Halbgeschosse sind sicht- und bewohnbar, indem zwei versetzte Räume zueinander geöffnet und das Treppenhaus freigelegt und belichtet werden. Die großen freien Räume zum Garten bilden einen Gegensatz zu den gestapelten kleinen Zimmern auf der anderen Hausseite.
Von außen wird das Haus so modelliert und gegliedert, dass die problematischen Proportionen erträglich sind. Um den Überhang abzumildern, wird oben ein Teil aus dem Volumen herausgeschnitten. Die Seitenwände ziehen sich um die Hausecken und bilden eine Klammer um die Rückseite des Hauses, deren Pfosten-Riegel-Fassade filigran und gefällig gegliedert ist.
Auch energetisch ist diese Lösung sinnvoll, da das Haus lückenlos von einer zweiten dämmenden Haut überzogen werden kann. Passend ist hierfür eine Holzfaserdämmung mit hinterlüfteter Holzverschalung und einem verzinkten Wellblechdach. Wenn das Holz nach einigen Jahren silbrig vergraut und sich der Dachfarbe annähert, werden die Dachflächen wie weitere Seiten des Baukörpers wirken und sich so optisch gut integrieren.
Das Projekt ist ein gutes Beispiel dafür, wie der Entwurfs- und Planungsprozess bei Bauherren Wünsche und Ideen anstößt und konkret werden lässt. Durch meine Vorschläge kamen Themen auf, die vorher nicht artikuliert werden konnten: Wie viel Offenheit fühlt sich gut an, wo braucht man Raum zum Rückzug, welche Farbgestaltung passt? So hat sich der Entwurf im Laufe der Planung weiter verändert – hier ist eine der erarbeiteten Varianten vorgestellt.
- Any
- 2022
- Estat del projecte
- Construït




