BRLOOTE Headquarters
No.16, East Sanjiang Road, Shaoxing City, China
Multi Utilization of Fashion I-Manufacturing Park
“The architecture we are trying to create is integrated with the environment,
featuring sharp forms that emerge within the existing context without any sense of intrusion.”
BRLOOTE Headquarters is situated in Shaoxing, nestled between the elevated road of the industrial zone and the city's waterways. The Greater Dog Architects handled the overall planning, architectural design, and interior design for the project. The site covers an area of 47,114 square meters, with the primary functions including garment research and development, and production, along with a sightseeing factory, warehouses, offices and conferences, Fashion Creation Design Center, a staff canteen, showroom, retail space, reception center, outdoor square, aerial bridge, and garden, among other comprehensive features.
"Tailored" Planning: Waterways and Connections
As an indispensable process in garment production, 'cutting' has become the starting point for the overall planning of the BRLOOTE Headquarters and the exploration of the building's basic form. Like a tailor, the architect envisions the site as a soft, irregular fabric carried by the river. The site is strategically planned with a “tailored” approach, by applying design elements such as linear interplay, circular integration, slicing, and angles to the architectural form.
In response to the site's characteristics, the architect established a main axis running from north to south. The main building, known as the Sliced Building, is located in the northeast, while on the southwest side, there are two groups of standalone structures: the Mirrored Building and Squared Building. In the building layout, priority is given to sunlight, patios and shared green spaces. Additionally, the distinct functional requirements of each building are fully considered, allowing for efficient access between different buildings during use.
The main axis also delineates the park's main roads and pedestrian circulation. In a relatively hidden location alongside the road, parking facilities are strategically placed to meet the parking requirements of both the office and R&D factory functions. By introducing tiny green spaces, the harsh edges of the road are softened while dividing pedestrian and vehicular pathways.
The natural world seems out of reach in bustling and crowded industrial area. Leveraging the environmental advantages of the site, the architect ingeniously brought the peripheral waterway into the site, dynamically connecting various workplaces within the industrial area, thereby constructing an intimate connection between the site and the river. Meanwhile, the circular square serves as a water-friendly platform, linking the Sliced Building and the Mirrored Building, facilitating pedestrian circulation, and also providing a public outdoor relaxation area. The pedestrian bridge connects the circular square to the Squared Building, forming a link between paths leading to various buildings.
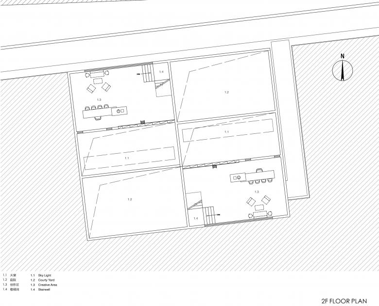
Sliced Building: Dynamic and Staggered Arrangement
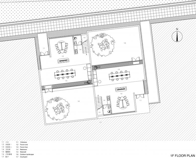
The building that creates a modern working environment is the main structure at the BRLOOTE headquarters. As a multi-story building located near the main road, the Sliced Building integrates the key functions, which including garment R&D and production, a sightseeing factory, warehouses, offices and conferences, a staff canteen, and more. Therefore, it primarily serves internal office staff, while the first and second floors near the north main road entrance house retail spaces for consumers, showrooms, and functions related to the sightseeing factory.
In terms of architectural form, the continued use of geometric abstraction reflects the brand-centric approach of BRLOOTE. The building mainly features a black and white color scheme, with clean lines and a recessed entrance, creating a subtle rhythm. The relationship between the exterior and interior of the site forms the foundation for the overall coherence between architecture and interior design, while the functional requirements of each space define the overall architectural structure and internal circulation relationships. The Greater Dog Architects focuses on creating a seamless connection between the external and internal spaces, emphasizing integrity and continuity.
The office block and the R&D factory block serve as the two main components, with two sets of shared space blocks inserted in between, each with different orientations and angles. This design aims to create an efficient, flexible, and dynamic working environment, providing them with a truly collaborative space. The red glass covered bridge connects different functional spaces and forms a cohesive language. The design of the sky garden brings more natural lighting indoors, and also brings more opportunities to the outdoors for the huge building. The sky garden with natural landscaping and ample sunlight eliminates the boundary between the building and the interior. It can also be used as an outdoor meeting space, conversation space, walking path, etc.
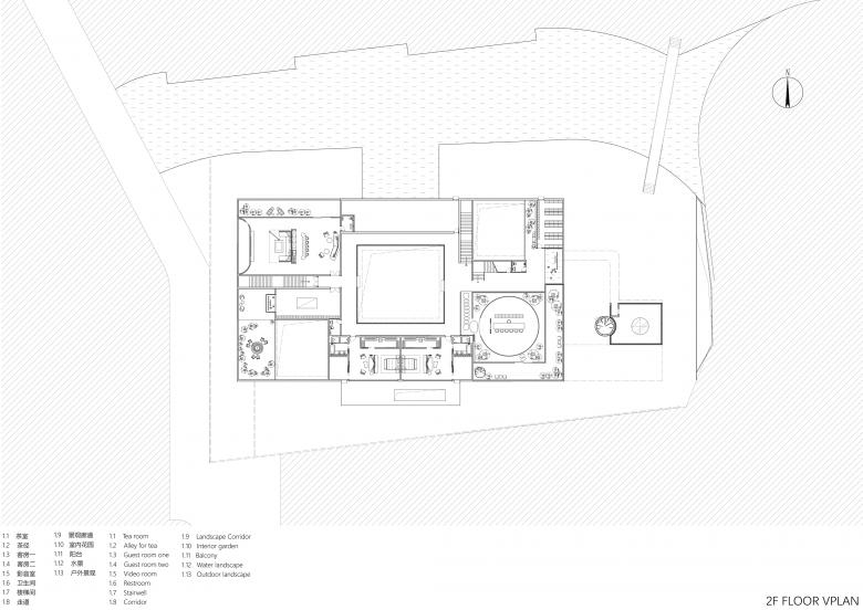
Mirrored Building: Reflection and Water
The Mirrored Building consists of two-story buildings, serving as small standalone structures built by the water for the use of the BRLOOTE Fashion Creation Design Center. The overall architectural form is arranged with a mirroring relationship between the left and right, as well as the front and back, dividing it into two sets of four units. Curved, pie-shaped elements add a sense of dynamism to the building. To integrate the building more closely with nature, one-third of the structure is positioned above the water, creating a double-layered mirrored effect in the water. The architect borrowed the river creates a more tranquil environmental language and also brings a more inspiring creative atmosphere to the fashion designers.
Squared building: Patio and Water
The Squared Building is a three-story structure located on an isolated island in the southwest corner of the site. It is separated by a river, ensuring maximum privacy. Its primary function is to serve as a brand reception center. The design incorporates water features into the building, creating a central courtyard around which spatial circulation is organized. The slanted roofs surrounding the courtyard allow rainwater to drip inward during rainy days. This design provides people with more opportunities to connect with nature and brings poetic moments to the bustling industrial area.
For the Sliced Building, Mirrored Building and Squared building, a portion of their roofs is inclined at an appropriate angle to increase the rooftop's visibility. Simultaneously, this design aligns with eco-friendly principles, making it convenient for the installation of solar panels while ensuring efficient drainage. By collecting rainwater and utilizing innovative solar photovoltaic panels on the roof, the generated energy meets the needs of the entire headquarters.
Interior of Sliced Building: Pathways and Rhythm
The western entrance of the Sliced Building leads to the office area. The oval skylight introduces natural light into the office lobby and public areas on each floor, thereby reducing artificial light needs. Simultaneously, a circular, high-ceilinged corridor links the upper and lower spaces, forming a cascading play of light and shadows, enriching the sensory connection within the lobby.
The elevator halls on the east and west sides serve as the main internal vertical transportation. The central zigzag-shaped ramp design in the center of the lobby provides a multi-dimensional experience along the walking path. Walking along the spacious ramp, people can feel the sensory changes of natural light from far to near. By placing a large-scale ramp in the atrium space, the architect abandoned ornamentation in favor of the beauty of structure, creating a unique lobby space atmosphere. At the same time, it meets the changing needs of BRLOOTE headquarters. The ramp can be used as a runway stage and a venue for brand events.
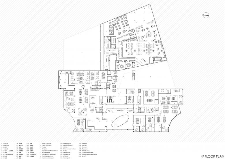
Located on the left side of the office lobby, the retail space has its main entrance on the north side of the building, serving as the primary entrance for consumers to do shopping and visit the showroom. It is adjacent to the city's main road and has a more outward-facing aspect compared to the office entrance. Through the outdoor cylindrical red transparent glass stairwell space, one can access both the ground floor and the second floor of the retail space as well as the showroom of the sightseeing factory.
The retail space on the first floor mainly displays BRLOOTE men's clothing and includes the brand's SI standard store display, live broadcast room, fitting room, etc. An open staircase serves as the main circulation route between the floors, combining the functions of display and cashier; A multi-layered structural form occupies the central space, with corresponding functions organized around it; Translucent glass and black mirrored metal applied to the ceiling extend the visual perception of the vertical space created by the staircase. Suspended mental display plates are interspersed throughout the space, forming a dialogue between lightness and solidity.
The second-floor retail space is accessed via an open staircase in the central area. This space brings together different women's clothing brands, Leding Bespoke, a Salon area, fitting rooms, storage, etc.
On the second floor, adjacent to the retail space, a pathway is designed to lead to the showroom and the sightseeing factory. Visitors can see a live digital R&D through the floor-to-ceiling windows. On one side, the production workshop is equipped with advanced intelligent hanging production line equipment, and on the other side, there is a showroom for customer visits. The showroom provides detailed displays of essential techniques, fabrics, production processes, and more.
The diversity of work in the fashion industry calls for a flexible office environment that is not limited to desks but may also include different creative approaches. In this building, various ways come together to form a symbiosis where anything can happen.
The journey from the office space to the red glass aerial bridge connects the offices, canteen, and factory. As a shared space, the staff canteen creates an informal and relaxed dining atmosphere. Within this ambiance, it fosters social interaction and encourages sharing among employees, leading to more ideas colliding and sparking creativity.
Technological innovation has brought new trends in the development of intelligent clothing manufacturing, and more efficient, intelligent and personalized production has been achieved through technological innovation. The Greater Dog Architects has employed a comprehensive design strategy to ensure the reasonable utilization of the site and building. This approach provides multiple possibilities for the efficient use of various indoor functions, creating an energy-efficient, environmentally comfortable, and human-friendly complex space.
_________________________________
Project Information
Client: BRLOOTE Fashion Group
Overall-Planning: Greater Dog Architects
Architecture and Interior Design: Greater Dog Architects
Lead Architects: Jin XIN, Zhihong HU
Design Team: Abigale Gu,Zoe Zhang,Qi Zhang, Qun He, Keith Guo, Ray Wang,Francis Ren,Manyan He, Longlin Gong
Deepen Design: Tongchuang Engineering Design Co.,Ltd
Structural Design: Tongchuang Engineering Design Co.,Ltd
Photo Credits: Metaviz Studio
Address: No.16, East Sanjiang Road, Shaoxing City, Zhejiang Province, China
Site Area: 47,114 sqm
Building Area: 50,208 sqm
Year Began: 2018
Completion: Jan 2024
Translator: Alex Wu
Website: www.greater-dog.com
Email: greaterdog@yeah.net
- Bürogebäude
- Geschäfte
- Fabriken
- Werkstätten
- Masterplan
- Geschäftshäuser
- Siedlungsplanung
- Forschung
- Objects
- Architekten
- Greater Dog Architects
- Jahr
- 2024
- Projektstatus
- Gebaut
- Bauherrschaft
- BRLOOTE Fashion Group
- Team
- Lead Architects: Jin XIN, Lead Architects: Zhihong HU, Keith Guo, Francis Ren, Manyan He, Longlin Gong, Qi Zhang, Zoe Zhang, Qun He, Abigale Gu, Ray Wang
- Deepen Design
- Tongchuang Engineering Design Co.,Ltd
- Structural Design
- Tongchuang Engineering Design Co.,Ltd
- Photo Credits
- Metaviz Studio







































