Genossenschaft Feuerwehr Viktoria in Bern
Bern, Schweiz
Victoria & Albert
Projektwettbewerb in Zusammenarbeit mit :mlzd, Biel
Bauten für Wohnen, Gewerbe und Tagesschule
Die denkmalgeschützten Gebäude der ehemaligen Feuerwehr Viktoria in Bern werden heute von der Genossenschaft Feuerwehr Viktoria zwischengenutzt. Ziel des Wettbewerbs war die Projektierung ergänzender Bauten auf dem Areal, um dieses in eine dauerhafte Nutzung als Wohn-, Arbeits-, Kultur-, und Quartierzentrum zu überführen.
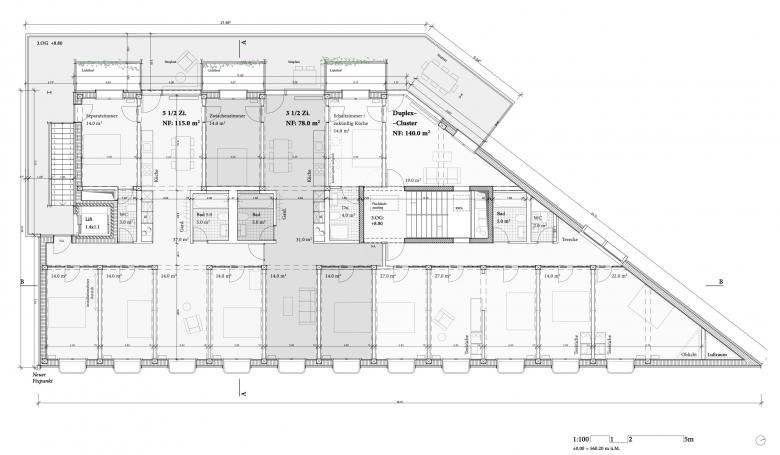
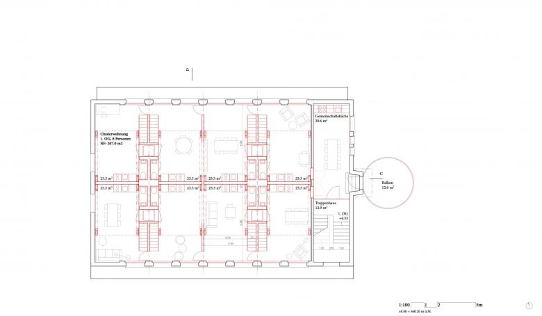
Die ehemalige Feuerwehrkaserne «Victoria», eine der bedeutendsten Vertreterinnen der einheimischen Moderne aus der Zeit vor dem Zweiten Weltkrieg, bleibt integral erhalten. Der alte Schlauchtrocknungsturm wird zum gemeinschaftlichen Waschsalon samt Wäschepaternoster und der Saalbau im Norden zieht in den Innenhof um. An seine Stelle tritt «Albert». Ein zeitgenössischer Wohnungsbau mit öffentlicher EG-Nutzung, gesponnen aus den Wohngeschichten der künftigen Bewohner*innen.
Bei der Erstellung des Wettbewerbsprogramms standen die Verfasser*innen vor einem Dilemma:
Um das geforderte Nutzungsmass zu erreichen, muss der Saalbau (1957 erstellte nördliche Erweiterung des Originalbaus von 1936/37) einem Ersatzneubau weichen. Ein Abbruch jedoch, steht im Widerspruch zu den Werten der Genossenschaft, wirkt er sich doch nachteilig auf alle Ebenen der Nachhaltigkeit aus.
Unser Beitrag löst das Dilemma auf, indem wir vorschlagen, den Saalbau von seinem heutigen Standort möglichst integral in den Innenhof zu verschieben.
Somit bleibt nicht nur die Bausubstanz sondern vor allem auch die Bedeutung des Gebäudes für den Ort erhalten. Gleichzeitig wird im Anschluss an die Kaserne der Platz frei für einen, auf die Bedürfnisse der Genossenschafter*innen perfekt abgestimmten Neubau. Seine Struktur bietet die nötige Flexibilität, um darin die mannigfaltigen Wohnungsgrundrisse sowie eine Tagesschule im EG zu beherbergen, aber auch auf ändernde Bedürfnisse der Bewohner*innen reagieren zu können.
Wer mehr über die bewegte Geschichte der Zwischennutzung erfahren möchte, dem sei das spannende Buch „Feuerwehr Viktoria“, erschienen 2021, im Lokwort Verlag, wärmstens empfohlen.
Unsere Freude ist riesig, an diesem Punkt in den bereits lange währenden partizipativen Prozess einsteigen zu dürfen, und Teil des Projekts zu werden.
- Architekten
- VERVE Architekten GmbH SIA SWB
- Jahr
- 2022
- Projektstatus
- Design









