Mehrgenerationenhaus in Bern

Alleeweg 23, Bern, Schweiz
Foto © Fotostudio ph7, Stefan Hofmann, Biel-Bienne

Eine ziegelgedeckte Dachlandschaft, üppiges Grün in den Vorgärten und farbige Putzfassaden prägen das Stadtbild im Murifeldquartier. Das Bauprojekt für ein neues Mehrfamilienhaus orientiert sich an den charaktervollen Putzbauten mit ihren prägnanten Dachformen und fügt sich folglich auf selbstverständliche Art und Weise ins Ortsbild ein. Zudem reagiert das Projekt in besonderem Masse auf den zu ersetzenden Bestandbau. Mit der Errichtung von neu vier, statt bisher nur einer Wohnung auf der Parzelle, leistet das Projekt einen Beitrag an die innere Verdichtung der Stadt und wird der Forderung nach haushälterischem Umgang mit dem Boden gerecht.

Foto © Fotostudio ph7, Stefan Hofmann, Biel-Bienne
Foto © Fotostudio ph7, Stefan Hofmann, Biel-Bienne
Foto © Fotostudio ph7, Stefan Hofmann, Biel-Bienne
Foto © Fotostudio ph7, Stefan Hofmann, Biel-Bienne
Foto © Fotostudio ph7, Stefan Hofmann, Biel-Bienne
Foto © Fotostudio ph7, Stefan Hofmann, Biel-Bienne
Foto © Fotostudio ph7, Stefan Hofmann, Biel-Bienne
Foto © Fotostudio ph7, Stefan Hofmann, Biel-Bienne
Foto © Fotostudio ph7, Stefan Hofmann, Biel-Bienne
Foto © Fotostudio ph7, Stefan Hofmann, Biel-Bienne
Situation
Zeichnung © VERVE Architekten
Erdgeschoss
Zeichnung © VERVE Architekten
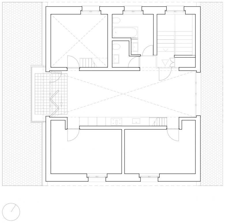
Obergeschoss
Zeichnung © VERVE Architekten
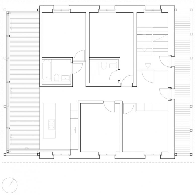
Dachgeschoss
Zeichnung © VERVE Architekten
Schnitt A-A
Zeichnung © VERVE Architekten
Schnitt B-B
Zeichnung © VERVE Architekten
Südostfassade
Zeichnung © VERVE Architekten
Südwestfassade
Zeichnung © VERVE Architekten
Nordwestfassade
Zeichnung © VERVE Architekten
Nordostfassade
Zeichnung © VERVE Architekten
Architekten
VERVE Architekten GmbH SIA SWB
Jahr
2022
Projektstatus
Gebaut

Dazugehörige Projekte 

  • Gymnasium Schulstraße
    Kronaus Mitterer Architekten
  • GROHE Water Experience Center
    D’art Design Gruppe GmbH
  • Limmatquai 4
    Kästli Storen
  • Volksschule Erlaaer Schleife
    Kronaus Mitterer Architekten
  • Ortsdurchfahrt Domat/Ems
    Luminum GmbH

Magazin 

Andere Projekte von VERVE Architekten GmbH SIA SWB 

Renovation Reiheneinfamilienhaus in Bern
Bern, Schweiz
Genossenschaft Feuerwehr Viktoria in Bern
Bern, Schweiz
Provisorische Schulraumerweiterung in Champagne Biel-Bienne
Biel-Bienne, Schweiz
Modulare Schulraumerweiterung in Pieterlen
Pieterlen, Schweiz
Zelthaus in Biel-Bienne
Biel-Bienne, Schweiz