ARQUITECTURA-G Wins EU Mies Emerging Architect Prize

John Hill | 8. May 2015
Photo: © José Hevia (All images courtesy of EU Mies Prize)

ARQUITECTURA-G's Luz House was one of the 40 shortlisted works for the European Union Prize for Contemporary Architecture – Mies van der Rohe Award 2015, which was given to the Szczecin Philharmonic Hall in Poland, designed by Barozzi / Veiga.

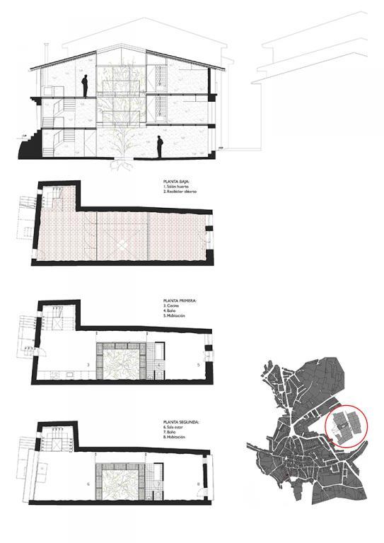
Luz House transforms the existing house of Mrs. Luz Almeida in order to maximize natural light and provide an outdoor space. The architects used the low budget and physically tight constraints of the project to their advantage, empyting the interior of the house, arranging the new house around a central courtyard, and leaving the stone façades and rammed-earth party walls.

The jury's award of the Emerging Architect Prize to ARQUITECTURA-G was described in a statement:
 

The jury felt that the designers understood well and solved brilliantly the constructive and economic constraints of the project, a new structure inserted in the stone party walls of an existing town house. A direct dialogue with the client and the clear strategy to build the program around a new courtyard allowed the simple yet effective construction of this single house. The architects used the existing stone façades and adobe party walls to achieve very high spatial qualities with very cheap construction materials.

The Jury appreciated the simplicity and clarity of the spaces, their high environmental quality and the colour palette resulting from the terracotta tiles left unfinished, showing that a good architecture does not need to be expensive or spectacular.

Photo: © José Hevia
Photo: © José Hevia
Photo: © José Hevia
Plans and building section
Section axonometric

Other articles in this category