World Building of the Week

Gower Court Mausoleum

Lehrer Architects and Arquitectura y Diseño | 8. December 2025
Photo: Tim Griffith
What were the circumstances of receiving this commission?

Michael B. Lehrer (MBL): Our firm has been rooted in this community for four decades, providing shelter and housing for the city’s residents across the full social spectrum. The Hollywood Forever team recognized that we would be natural partners to bring this vision to life and help extend the life of the cemetery in a way that honors what a landmark it is in the neighborhood.

Roberto Sheinberg (RS): It all started with an initial phone call and conversation with the owners at Hollywood Forever, as they were considering ways to expand the cemetery in a dense urban condition. We were engaged to do a study of the existing grounds and facilities and come up with suggestions on how to significantly increase the inventory for the anticipated needs of the next 50 years.

As a real estate problem, it quickly became evident that, with limited ground space available, building up would be the most likely solution. Smaller mausolea in different areas of the cemetery were designed to fulfill immediate needs while the team embarked on creating what resulted in a new model for a “high-rise” mausoleum and burial system.

Photo: Tim Griffith
What makes this project unique?

MBL: This project began as a real estate proposition. How much real estate are you allowed, or can you be allowed, to create so it can be sold to house people for burial places? It was clear to us from the beginning that an enormous building (in this case ultimately 500 feet long and 100 feet high) full of dead people in the middle of any city, in this case in the center of Hollywood, could be a problem. Making it beautiful and a place that profoundly enriches the community and the cityscape was critical. The mausoleum is conceived as a vertical topographical landscape that both complements and riffs on the cemetery’s flat, parklike setting. Our goal was to make it a destination of desire for our fellow Angelenos, somewhere that honors the full cycle of life. Given that people stop visiting the deceased within a few years of their passing, we wanted to build somewhere that future generations would want to visit.
 

Photo: Tim Griffith

RS: By expanding vertically, the completed three phases of the mausoleum will avoid disturbing 25 acres of ground space, establishing a new vertical mausoleum typology that promotes change within an industry where ground space—and six feet under—is at a premium.

The project fulfills the client’s decades-long vision of completing the third generation of the mausoleum complex along Gower Street. By augmenting existing burial space, it will extend the life of the cemetery by 50 years, all without impacting the scarce ground-floor real estate on site. Its design minimizes maintenance and resource use to ensure the building operates in perpetuity, beyond its functional life as a place for new burials. The endowment it creates will fund the continued upkeep of the larger site, providing an open public space for the city of Los Angeles for years to come.

Hollywood Forever is more than a cemetery; it is a public park and community hub, hosting concerts and festivals as well as being a great place to go for a walk. And with the new Gower Mausoleum, Angelenos of all stripes can now enjoy a great new public amenity with views over the entire city. It is truly a building for the living, for the dead, for Hollywood and the city at-large.

Photo: Tim Griffith
What is the inspiration behind the design of the building?

MBL: We had far-reaching influences from the seriality of Pop artists like Donald Judd, Carl Andre, and Andy Warhol’s Brillo Pads, to ziggurats and mastaba from Mexico and Ancient Persia, and Eduardo Chillida’s stark and bold solid/void sculptures. Chillida has a broad body of drawing and sculpture. It seems that in the late 80s is when the Chiaroscuro figure/ground contrast of black and white or shadow and light was often powerfully manifest and we took inspiration from that for the alternating solid and open breezeways.

RS: Hollywood Forever Cemetery’s Gower Mausoleum is a testament to innovative design and discovery. This five-story, 100-foot-tall structure reimagines memorial architecture by integrating bold design with evocative landscape. Conceived as a vertical landscape, the design complements the cemetery’s flat, park-like grounds. 

Photo: Tim Griffith

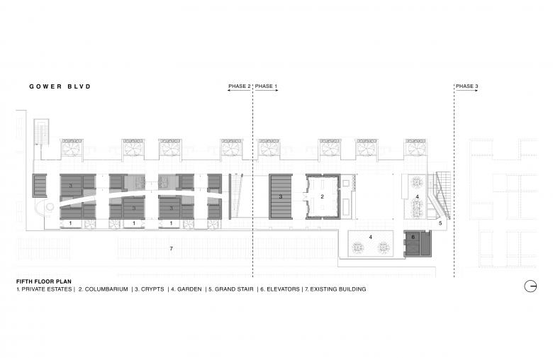
The verticality of each 20-foot-high level stacks crypts eight high, preserving scarce ground while establishing a cultural and spiritual landmark. Poured-in-place concrete features geometric patterns and contrasting quartzite crypts, with cantilevered volumes enhancing Gower Street’s architectural presence.

Custom dimensional granite blocks define the rooftop Columbarium and the Information Center. With minimal enclosure, passive ventilation and openness to the elements the structure invites fresh air and sunlight, encouraging passive ventilation and openness to the elements. Contemplative balconies inspired by historic miradors and belvederes offer panoramic city views and moments of pause. A rooftop garden and promenade with 360-degree vistas further reinforce the project’s role as a place of reverence, beauty, and return.

Photo: Tim Griffith
How did the site impact the design?

RS: The site played a crucial part in the direction and design of the project. The former maintenance yard of the 62-acre cemetery was the only undeveloped area. A relatively narrow site that extends 500 feet along Gower St. presented a unique opportunity to create a linear building with an extensive facade facing the smaller-scale residential and mixed-use area of Hollywood. By orienting the hallways lined with crypts east–west, the team was able to break down the mass of what traditionally is a “solid box” mausoleum into a series of concrete towers that allow for open air interstitial spaces that create a porous building with see-through openings framing the park-like grounds and trees of the cemetery grounds.

Stepping down to the neighborhood, the concrete towers incorporate terraces, gardens and cantilevers that extend the lush green grounds to the neighborhood and create a new image and expression for the cemetery.

The available area of the site is a direct result in creating the new “high-rise” mausoleum typology in order to meet the burial inventory needs of the Cemetery.

MBL: The vertical exit stairs at the north elevation (the left side when facing the building from the street) were orchestrated to evoke a journey of ascent . The subtle bending, essentially the width of a stair run, angles your view as you arrive on each level, making a natural overview/discovery of the city every time you change levels. 

The simple design idea was to take a required staircase and turn it into a significant thematic and metaphorical element, connecting earth and sky, with the journey of life. Second and third level, at the northwest corner, we stretch the landing into a terrace, which projects out to the street as far as it can. This is the one place where the orthogonal geometry is violated and a more public gathering place is created.

 

Photo: Tim Griffith
To what extent did the owner, client, or future users of the building affect the design?

MBL: First, we had to convince (it wasn’t hard) the owners to give up real estate to create the planted terraces. With that done, it was really the image and idea of the topographical landscape that enabled us to get unanimous and enthusiastic approval from all the governmental and community entities.

RS: The Mausoleum is a testament to true collaboration. The owners played an instrumental part in the design and construction process. From ensuring their goals for additional inventory were met while enhancing and supporting the goals and mission of the Cemetery to creating connections and assisting with existing suppliers and materials resources. A construction department was created with their own construction crew to self perform many of the trades including all the crypt and concrete work.

At the core of the concept is creating a unique design that continues the mission and goals of the Cemetery—a “Public Benefit” serving as a resource and amenity for the community both as a cultural and spiritual landmark that honors the dead, their visitors, the living and the entire community of Hollywood as a public space filled with light, fresh air and panoramic vistas of the city and beyond. The endowment created as part of this project will ensure the availability of the park-like grounds and cultural spaces beyond the time when it’s at full capacity for internments.  

The Mausoleum is designed to pay tribute to the site’s deeply rooted history while promoting community: 
Through collaborative design processes and community outreach initiatives we engaged local residents, historians, officials and stakeholders in shaping a space that resonates with collective memories and aspirations. 
 

Photo: Tim Griffith
Were there any significant changes from initial design to completion?

RS: Several design elements evolved during construction to better utilize available resources and materials from the Cemetery's existing suppliers:

Custom dimensional granite blocks, sourced from available Chinese black granite, were developed for the rooftop Columbarium and Information Center.
Additionally, the Columbarium’s surrounding walls were modified to include openings that framed specific City views and enhanced light/shadow patterns after the formwork had been installed

A serpentine, Venetian plaster folded ceiling was introduced along circulation spaces to conceal fire suppression pipes, electrical conduit, and lighting. This design element evolved during construction, became a striking visual feature that contrasts with the tower geometry while also directing daylight into deeper areas.

High-Rise requirements implemented during the plancheck and approvals process were later revisited and modified to lessen the construction impact due to the lack of enclosed spaces and flammable materials.

Photo: Tim Griffith
How does the building relate to other projects in your office?

MBL: Our practice is grounded in the idea that beauty and love are rudiments of human dignity. We design for community with a reverence for light and space. For us, delight is a matter of extreme gravitas. Architecture is a singular act of designing for people to secure, nurture, and elevate their everyday lives. Solving the basic architectural problems of site, function and fulfillment are the same whether designing shelters or permanent housing for the houseless, market rate housing, villas and estates, or eternal housing. Being of LA, a basic climatic and cultural imperative is to embrace the architectural virtue of appropriateness.  In other words, some things need to be durable and enduring, and some things don’t.  Somehow, the HOLLYWOOD sign embodies this idea both ways. It is memorable, long-lived, visually hyper bold, enduring in the mind, and structurally flimsy and thin.  On the other hand, there is a time for extreme durability, centuries undoubtedly, as in this Mausoleum project. Fresh air and natural light are not only magnificent and luxurious for our sensual, psychological, and spiritual well-being, they are also essential for our physical health and to stay alive. The happy nexus between sunlight, fresh air, and shelter— mental, physical, spiritual – is the wholesome home. Home in our work happens across a continuum of housing from our work designing for the tended-to homeless in transitional shelters and permanent housing in multifamily microunits through to single family affordable starter homes, unaffordable homes all the way to this project - eternal housing. We understand that beyond basic shelter, HOME, for everyone from the houseless to the well-homed must offer and honor these attributes: safety, identity, state of mind, importance, power, prestige, accommodation, memory & prophecy, aspiration, sanctum, autonomy, agency, harm reduction. 

Email interview conducted by John Hill.

Photo: Tim Griffith
Project: Gower Court Mausoleum, 2025
Location: Los Angeles, California, USA
Client: Hollywood Forever Inc.
Architects: Lehrer Architects LA and Roberto Sheinberg Arquitectura y Diseñ
Landscape Architects: Studio-MLA
Structural: Brandow and Johnstone (Main Structure and Crypts), Nous Engineers (Architectural Features
Engineering)
Lighting: KGM Architectural Lighting
MEP: Jordan & Skala Engineers
Geotech: Geotechnologies Inc.
Civil: Truxaw & Associates
Shoring: Shoring Engineers / Structural Shotcrete Systems, Inc.
Permit Expeditor: TDA Consultants
Contractor: Hollywood Forever, Inc.
Land Use Consultants: Craig Lawson & Co.
Land Use Attorneys: Sheppard Mullin / Alfred Fraijo
Ground Floor Plan (Drawing: Arquitectura y Diseño)
Third Floor Plan (Drawing: Arquitectura y Diseño)
Fifth Floor Plan (Drawing: Arquitectura y Diseño)
Cross Section (Drawing: Arquitectura y Diseño)

Other articles in this category