The Kendeda Building at Georgia Tech: Living Building Certified

Autonomous, Yet Social

Ulf Meyer | 16. June 2021
Photo: Gregg Willett

The Living Building Challenge (LBC) is tough — by design. It assumes that common green building rating systems, such as LEED or BREEAM, are too easy; they are based less on evidence and are more marketing than actual measurements of a building’s performance. There are only 27 buildings in the world that have so far met the tough hurdles of the LBC. The Kendeda Building for Sustainable Design, a new building for the Georgia Institute of Technology (Georgia Tech) in Atlanta, is the first building to earn the label in the Southeastern United States, a region known for its heat, humidity, and pervasive air conditioning. The Kendeda Fund, a private Atlanta-based grant founded in 1993 to foster environmental education, research and debate, awarded a $30 million grant that made the building with non-traditional cooling possible.

The Miller Hull Partnership, who designed the Kendeda Building with Lord Aeck Sargent, are no strangers to the task of designing a Living Building. The Seattle-based firm had previously designed the Bullitt Center in their home town. It is the most famous building to have met the LBC criteria and the first office building to do so. When it was inaugurated in 2013 it was reportedly the “greenest office building in the world.” Similar to the Bullitt Center, a large roof overhang drives the special architectural expression of the Kendeda Building. This feature works fine for a stand-alone building, but it makes me wonder what a cluster or district made up of LBC buildings would look like.

The PV roof is considerably larger than the building footprint. (Photo: Jonathan Hillyer)

The Living Building Challenge is the brainchild of the Cascadia Green Building Council, the Pacific Northwest chapter of the US Green Building Council, which created the International Living Future Institute in 2009 to oversee the LBC. The challenge is strictly performance-based. Each project is evaluated one year after occupancy to ensure it is at least 5% net-positive energy — to fulfill the so-called “Energy Petal” — and meet LBC's stringent water requirements, among other criteria. This post-occupancy evaluation (POE) is sorely lacking in LEED and other green-rating systems.

Completed in fall 2019, the Kendeda Building was fully occupied as of January 2020. The results of the recently completed 12-month POE exceeded expectations, with the building having collected and treated 15 times more rainwater on site than it used and having generated via rooftop PV panels 225 percent of the energy needed to power all of its electrical systems. It met all seven categories, or “Petals” — Place, Water, Energy, Health + Happiness, Materials, Equity, and Beauty — which themselves are subdivided into 20 “Imperatives” that must be met for certification. Some of the latter include: full energy demands met with on-site renewable energy generation; all water needs met by on-site rainwater collection; full on-site waste management; operable windows and natural daylighting in all spaces; and non-toxic, locally sourced construction materials.

The "Regenerative Porch," inspired by the vernacular porches found on many Southern houses, creates a cool micro-climate around the building and blurs interior and exterior. (Photo: Gregg Willett) 

To balance the solar energy available on site with the building's electricity demands, Miller Hull incorporated a high-performance envelope, exhaust-air heat recovery, hydronic radiant heating and cooling, and night-flush ventilation into their design. Such thinking extends to engaged occupants, whose behavior not only involves the operation of the building, but also the choice of clothes, paths taken (stairs vs. elevator, for example), leaving lights on, and opening doors/windows when appropriate. An expanded “seasonally adapted” comfort range — getting rid of the notion that the temperature (and humidity) needs to be constant year-round regardless of weather and season — as well as plug load analysis and elimination of “phantom loads” combine to reduce energy demand. 

By meeting all of its annual power needs on site through the 330-kilowatt photovoltaic canopy, the Kendeda Building requires no fossil-fuel combustion and therefore does not pollute the atmosphere. Furthermore, the excess power generated is distributed elsewhere on campus, meaning the building's net-positive qualities are bigger than the building itself. 

The landscaping is designed to retain rainwater. (Photo: Gregg Willett)

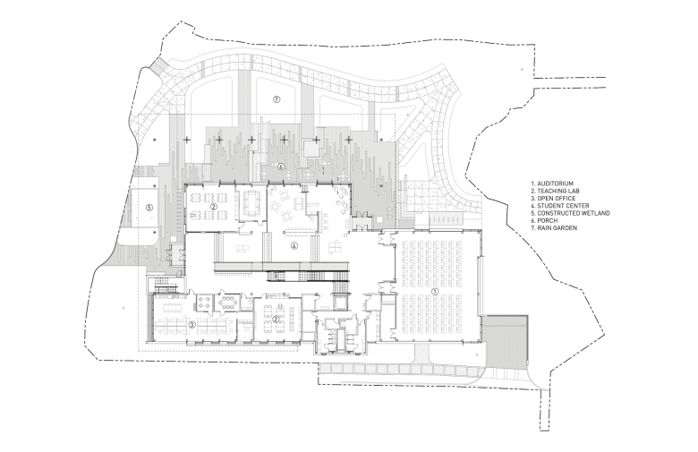
In addition to generating power, the large canopy captures rainwater for various uses, storing it in a 50,000-gallon cistern in the basement before it is treated. Any water used as a heat source and as a chilled water source from the campus chilled water loop is offset by water harvested from the rooftop over the course of a year via cistern overflow. Rainwater is brought to drinking water quality and is sent to drinking fountains, something the building is permitted to do. The permit was based on performance criteria for the cleanliness of the water. After building and testing the system without chlorine, it was determined that chlorine would be needed to conform to the criteria. Additionally, composting toilets nearly eliminate potable water use for sewage conveyance, human waste is turned into fertilizer for off-site use, and greywater is pumped to a wetland at the main entrance. This water descends through a series of rain gardens and detention structures aligned with the tiered exterior terraces and infiltrated at rates to emulate the site’s predevelopment hydrology.

Services are exposed beneath the wood structure. (Photo: Gregg Willett)

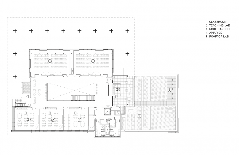
A sloping site of nearly two stories was accommodated by terracing the ground floor in three increments of 30 inches, resulting in four elevations. Those intervals align with the slope of the site and also correspond to the maximum vertical rise allowed by code before a transition is required on a ramp. The ramps connecting the levels mean the building has universal access and facilitates a strong pedestrian connection to the eco-commons lawn, an eight acre park surrounding the project. The two main points of entry are at the upper- and lower-most elevations, while classrooms connect the intermediate levels through large lift and slide doors in the exterior walls. A basement provides service access at the lowest point of connection to the site. An elevator connects the two ground floor elevations with the second floor and a basement, which connects directly to the lowest part of the site, but it is rarely used.

The circulation spaces are designed to also be social spaces. (Photo: Jonathan Hillyer)

Glue laminated queen post trusses with steel bottom chords are used throughout to achieve long spans; these hybrid trusses reduce the required quantity of wood and make the routing of building services more efficient. The gravity and lateral elements are fully exposed, one of many pieces that make the building a sustainability teaching tool. Material was salvaged from Atlanta’s Lifecycle Building Center, which sources the lumber from discarded film sets, off-cuts from lumber were assembled into the seat steps that descend the three tiers of the atrium, and wood salvaged from trees felled on campus was used for countertops and furniture. By eliminating 99% of construction waste and using reclaimed local materials, the project diverted more waste from the landfill than it sent to it. To build the ceiling panels and floor systems, the contractor partnered with Georgia Works!, a nonprofit helping homeless men. 

The trusses are visible to express tectonics and make the building a teaching tool. (Photo: Gregg Willett)

Because Georgia is challenged by flooding and drought, the design treats stormwater, conserves potable water, lowers the risk of flooding, reduces burdens on infrastructure, and saves money on utilities. The Kendeda building provides comfort to its occupants, connects them to nature, and exists within the water and energy means of the site. At $544 per square foot, the building was only 13% more expensive than a comparable recent lab building on Georgia Tech’s campus. However, this increase includes all of the power and water systems that cost zero dollars in post-construction building operations.

Miller Hull took the lessons learned from the Bullitt Center and adapted them, with Lord Aeck Sargent, to a new climate and a new building type. A technological and aesthetic advancement, it is Georgia Tech’s first timber building since the 1880s. Learning in a building that clearly expresses resiliency and sustainability, and that meets the most rigorous certification for green buildings anywhere, is a treat for Georgia Tech students. The likable yet avant-garde building has the potential to be a great pedagogic tool for current and future generations.

Drawing courtesy of Andropogon
Drawing courtesy of Miller Hull
Drawing courtesy of Miller Hull
Drawing courtesy of Miller Hull

Other articles in this category