The new Swiss Life Arena by Caruso St John Architects
Concrete Curtains
Swiss Llife Arena, host to the Zurich Lions ice hockey team, is the largest project to date for London’s Caruso St John Architects, the firm of Adam Caruso and Peter St. John. The Lions played their first match in the new arena in October. Ulf Meyer traveled to Zurich to see the building and sent us his impressions.
Ice hockey matches are — literally, by their nature — cool things. The temperature of arenas is cold but so are their designs. Giving a modern hockey arena a strong architectural expression is not an easy task, especially for an “artsy” architectural office like Caruso St John, who made their name with small, bespoke art spaces for Damien Hirst, Thomas Demand and other key people on the London scene. The duo’s branch office in Zurich is willing and able to do big — even giant — projects like the new Swiss Life Arena in western Zurich, where new bank buildings cluster around the Altstetten commuter railway station. The tracks that cut the district in half are crisscrossed by trains connecting Zurich to destinations in western Switzerland and beyond.
The number of allotment gardens that flank the busy rail corridor farther away from the station had to be cut in half to make room for the sizable arena on its rectangular site. On one side of the boxy hall, the remaining gardens give the surroundings a decidedly suburban feel, but on the other side the 12,000 fans that flock to the arena for a sold-out game have to walk past mundane storage halls and manufacturing plants on their way from the not-so-nearby station.
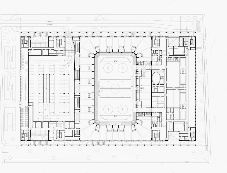
Back in 2013, Caruso St John won the competition to design Switzerland’s best venue for hockey largely because of their choice of material — concrete, always popular with the Swiss — and the unusual layout of the building. The rink in the middle of the plan is set perpendicular to the long sides of the site, where access to the main entrances is found — not expressed architecturally and thus hard to find.
Dark round concrete columns along the arcades on the long sides carry the beige-colored facades above that the architects call “a curtain cast in concrete.” This textile-like shell strives to appear playful, like Schinkel’s tent-architecture inside Charlottenhof Palace in Potsdam — a reference actually mentioned by the architects. In reality the hundreds of convex concrete parts look heavy, clumsy. Porthole windows that resemble pucks are punched into the facades on the short ends, behind which are offices and around which the concrete “fabric” bunches. A concrete curtain, it appears, may not be a recipe for architectural elegance.
The obvious element to put design effort into would have been a beautiful structure that spans the great hall, but the architects were either unwilling or unable to design a visually powerful system of trusses or beams in a space that is almost entirely devoid of natural light. The air ducts and pipes, too, were just jammed into the foyer’s ceilings as required, with no visible design intent. These oversights are surprising given the fact that both Caruso and St John used to work for architect Florian Beigel (where the future partners met each other, incidentally), whose work was all about innovative structures.
Gottfried Semper coined the term “Wand und Gewand” (the words for “wall” and “robe” are almost the same in German) in 1860. “The beginnings of architecture coincide with the beginnings of textiles,” Semper wrote. He considered the woven walls of the tent to be the original form of human habitat and “dressing” as the first principle of architecture, ahead of construction. Taking this into consideration, Caruso St John’s approach to the exterior comes across as a gimmick, at the expense of what should have been a beautiful structure inside.
The fluting of the prefab panels is a leitmotif the office has carried through from project to project: the Europaallee Building near Zurich HB has them, as does the St Jakob Foundation in Zurich West. In creating their largest project to date, Caruso St John wrapped the venue in a “theater curtain” and put a raised “stage house” in the middle. The Zurich Lions and their fans probably don’t care about this parti nor any nods to 19th-century architectural theory — they are just happy to play in their very own stadium for the first time.
Related articles
-
-
Jack C. Taylor Visitor Center at the Missouri Botanical Garden
Ayers Saint Gross | 09.12.2024 -
Children’s Art Laboratory St. Pölten
Schenker Salvi Weber Architekten | 25.11.2024










