Ceramic 'Smiles'

John Hill | 2. December 2020
Photo © LOOP Audiovisual
Project: Maida Smiles Clinic, 2019
Location: Maida Vale, London
Client: Dr. Pedro Gutierres
Architect: Pedra Silva Arquitectos
Product: Custom ceramic discs
Floor Area: 85 m2
Photo © LOOP Audiovisual

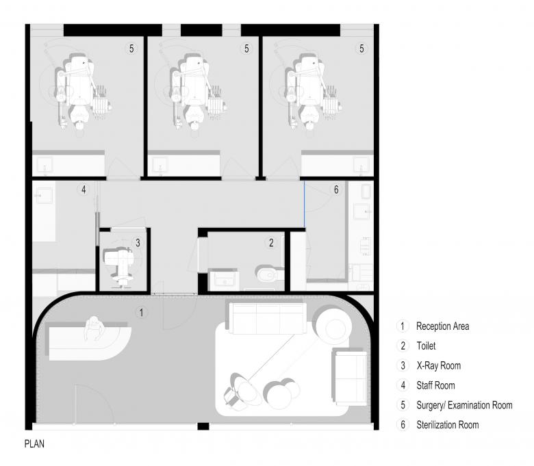
Most of the footprint of Maida Smiles is devoted to exam rooms, an X-ray room, and other spaces needed to run a dental clinic. But it's the reception area that stands out the most, in part because it faces the area's high street through storefront glass, but mainly because of the ceramic discs wrapping three sides of the space. Maida Smiles was designed by Lisbon's Pedra Silva Arquitectos (PDA) "to be visually engaging while promoting the personality of the clinic," in the words of Luis Pedra Silva, PDA's founding partner. Ceramic dental implants fittingly inspired the ceramic discs.

Photo © LOOP Audiovisual

One of the most intriguing parts of the "wrap-around" ceramic wall with curved corners is the way the door leading to the exam rooms is hidden within the honeycomb pattern of the discs. Although the opening is rectangular, a standard door with straight verticals wouldn't work with the pattern, so the door's vertical edges follow the discs, tracing an undulating line between them. The undulations can be glimpsed behind the discs, but just barely.

Photo © LOOP Audiovisual
Photo © LOOP Audiovisual
Photo © LOOP Audiovisual

The biggest hint at the presence of the door is the single unglazed disc that serves as the pull but also reveals some of the process behind the pieces that were fabricated in Caldas da Rainha, the Portuguese city known for its glazed ceramic pottery. As the below photographs and short film reveal, the discs were made from reusable forms then finished by hand before being fired and glazed. The results are stunning — as stunning, no doubt, as the smiles that leave from Maida Smiles after treatment.

Photo: Pedra Silva Arquitectos
Photo: Pedra Silva Arquitectos
Drawing: Pedra Silva Arquitectos
Drawing: Pedra Silva Arquitectos
Drawing: Pedra Silva Arquitectos
Drawing: Pedra Silva Arquitectos

Other articles in this category