The Learning Architecture for Learners
VUILD, Neoplus Sixten Inc. | 27. October 2023
All photos by Neoplus Sixten Inc., unless noted otherwise
The Learning Architecture for Learners is a new building at Tokyo Gakugei University that is part of the Explayground Project. It was designed by VUILD, the studio headed by Koki Akiyoshi that specializes in digital fabrication. Here we present a report on the project from Japan-Architects.
Tokyo Gakugei University (TGU) is a university with a faculty of education that specializes in teacher training and educational research. In a discussion about what kind of education would be appropriate for the Society 5.0 era, we asked: “Shouldn't people develop the ability to create something that has never existed before?” The positive answer was that “learning must come from things like play.” So, in 2018, the TGU and Mistletoe Japan Inc., headed by Taizo Son, established the Tokyo Gakugei University Explayground Promotion Organization.
In the Explayground Project, citizens, everyone from elementary, junior high, and high school students, to university students, faculty members, university staff, administrators, and companies, can participate and practice innovative “things they want to do” — things that will shape the future. Participants will independently propose themes of their own interest and form a “LAB” project with others who share their interests. Currently, there are nearly 40 LABs for creating things, making things, and so on. This project serves as the base for these LAB activities.
Project: The Learning Architecture for Learners, 2023
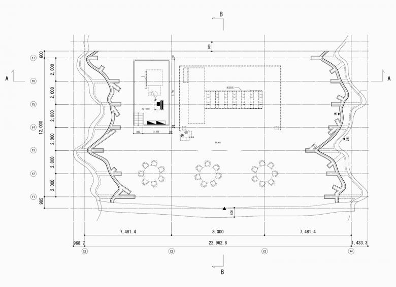
Location: 4-750-2 Nukuikitamachi, Koganei-shi, Tokyo
Design and Supervision:
VUILDStructural Design: Jun Sato Structural Design Office
Facility Design: Arup
Construction: Atelier Umi
Structure: Reinforced concrete
Building Area: 251 m
2Total Floor Area: 296 m
2 Text by Neoplus Sixten Inc.
The work underwent schematic design review in 2019 and was presented at two exhibitions in 2020; it took four years to complete.
The site is a corner of the TGU grounds, adjacent to Explayground Building 1, which was completed in 2019 and is equipped with 3D printers, small-machine tools, and other tools.
The new Learning Architecture for Learners building, the second component of the new base and workshop of Explayground, will be equipped with a large 5-axis CNC machine.
The structure is approximately 23m wide, 13m deep, and has an average ceiling height of approximately 3.3m (peak is 6.5m). The project was larger in the planning stage, with glass on the sides and air conditioning. However, the client did not want a space that was pre-made or ready-made, but rather a space that would allow the them to work through trial and error with tools and margins. So it was decided to limit it to production facilities and a minimal roof.
Although it is only a roof, climatic considerations were taken into account. The south side (right) is lower to avoid solar radiation, while the north side has a large two-meter-high opening for increased natural light.
As one gets closer, one can see the powerful sculptural details of the structure. It is quite large compared to a human, but the author also felt it was larger than the impressions he gained from sketches and photographs seen beforehand.
What appears at first glance to be a CLT (cross-laminated timber) structure is actually a reinforced-concrete (RC) structure. The following is an explanation of the process of how this building was constructed.
First, a block of CLT was machined into individual parts on a 5-axis CNC machine at VUILD's factory. (Photo: VUILD)
Curiously, since this processing machine will be installed in the new Explayground workshop, the machine was actually making its future home. (Photo: VUILD)
1:1 mock-up assembly: although it was called a mock-up, it was actually used for construction. (Photo: VUILD)
Jun Sato, the engineer in charge of the structure, wearing VR goggles to check the construction against the design. (Photo: VUILD)
As many as 963 factory-made parts were assembled on site. (Photo: VUILD)
The complex shape was a new experience for the craftsmen. (Photo: VUILD)
The assembled structure, resembling a leaf, has a concave shape with reinforcing arranged in the leaf's “veins.” (Photo: VUILD)
After the CLT beams were in place, the mesh reinforcing for the concrete was laid out on top. (Photo: VUILD)
Concrete was poured on top to a depth of 80mm; one of the pins marking the slab thickness can be seen in the left foreground. (Photo: VUILD)
The concrete was finished by applying waterproof paint and spraying the roughest Jollipat coating on top of it. It looks like Uluru / Ayers Rock in Australia.
Put another way, the CLT visible inside is both formwork and interior finish. The “Ex” in “Explayground” comes from both “Extreme” and “Experimental,” so VUILD was asked to create an architecture that has never been seen before. “If a processing machine is going to be placed here,” they were also told, “I want the building to be built using that machine, and I also want it to be able to be expanded.” If the building does expand in the future, it must be an RC structure (fireproof building), and since RC construction requires wooden formwork, VUILD thought that extending the possibilities of formwork would lead to a new RC structure. The undulating shape helps to increase the structural strength of the building.
The application for building confirmation was submitted as an RC structure without CLT, but the CLT section alone is said to be strong enough on its own. “I would like to try pure wood construction in the future so the CLT alone will be sufficient,” said Mr. Akiyoshi.
The half-basement area in the back houses the power supply facility; the 5-axis CNC machine that carved out this building will be installed to the right of it, with workbenches and other equipment in the front.
The shape of the roof is tempting to climb, but doing so is prohibited. (The author was allowed to climb the roof for the purpose of photo documentation.) The surrounding area is scheduled to be planted with trees, including fruit trees, and, like Meiji Shrine, will slowly fill in over time — the latest machine tools in a shrine nestled in the forest.
Koki Akiyoshi, VUILD CEO
“We explored and played with all our might, worthy of the name Explayground. The road to realization was very steep: we had to go through the basic design from scratch three times; and for various reasons the estimate was three times the budget. In the end, it took four years to complete the project, but I am glad that I was able to persevere and did not give up. I am also happy that I was blessed with a strong and resilient group of people who were willing to take on this challenge. It feels like I built a building rather than designing one. The fact that we were able to create such a large building by making full use of digital fabrication gave us a sense of confidence. It feels like we made it with our own hands. No matter how big the building becomes, we will be able to touch it and say that we made it. I feel like we have opened the door to the next stage. Based on the knowledge we gained from this 300-square-meter building, we are now taking on the challenge of building a 1,000-square-meter building with a similar team structure.”
This article was first published as “「学ぶ、学び舎」東京学芸大学EXPG棟” on Japan-Architects. English translation edited by John Hill with Japan-Architects.