From Watercolor to Stone

John Hill | 18. August 2017
To check for any inconsistencies the floor slabs were installed off-site before installation in the restaurant. (All photos courtesy of Neolith)

Project: ENIGMA Restaurant
Client: Chef Albert Adrià
Location: Barcelona, Spain
ArchitectRCR Arquitectes, Pau Llimona
Project management: RCR Arquitectes, Nos-Altres Aquitectures, SGA Arquitectos
Project scope: Kitchens, restrooms, furniture, dining room accessories, facade, changing room and graphic design
Manufacturer: Neolith by TheSize
Product: Custom Sintered Stone

Diners at Enigma pass through six spaces during a three-hour experience where they eat a 40-course meal.

Chef Albert Adrià worked for 23 years as the pastry chef at the world-famous El Bulli, which closed in 2011 and left a void in the Catalan dining scene. Subsequently he worked for years developing the concept for Enigma, his new restaurant that opened on Barcelona's Sepúlveda Street in January. With 40 courses, only 24 diners per evening, six successive spaces that diners move through in the 700m2 space, and a price tag of €220, a visit to Engima should be a special experience. The design of the space by RCR Arquitectes (Rafael Aranda, Carme Pigem, Ramón Vilalta) and Pau Llimona heightens the experience, fulfilling Adrià's vision to create an "enigmatic" restaurant.

The designers used "the cloud" as a concept for the space; it finds reality in the illuminated ceiling, the glass walls, and the sintered stone surfaces.

The designers started with the site they were given: a raw ground floor space in a corner office building northeast of Plaça d'Espanya. Confronted with a grid of structural columns in the space, the designers objective was to "transform this industrial space into a flowing, evanescent, profound and timeless landscape so people can disconnect from the world around us and be taken away to Albert’s world of creativity." The building's walls and columns were covered in translucent textured glass to demarcate the route for the diners but also to conceal these elements. These icy glass walls, the cloud-like metal mesh ceiling, and the sintered stone flooring work together to create the immersive environment aligned with Adrià's innovative menu.

Enigma features an open kitchen, where sintered stone covers just about every surface to create an otherworldly feeling.

A pivotal moment for Adrià involved a large watercolor drawing (below) that the designers decided to scale up and apply to the floor covering the entire space. Like a hurricane seen from a satellite, the watercolor's apparent circular movement serves as a means of orienting the walls and furniture in the space. The designers worked with Neolith, a sintered stone product made by TheSize, to create a replica of the drawing across the whole floor as well as to walls, bathrooms, kitchen worktops, cabinetry, and kitchen hoods. Sintered stone slabs are made up of clays, feldspar, silica and mineral oxides that are produced through a high-temperature/high-pressure sinterization process. Although fairly common in the industry today, the green and blue tones of Enigma are unusual hues for sintered surfaces. In order to match the watercolor's colors and the other materials on the project, Neolith used their proprietary diginal printing decoration technology.

The photographs here illustrate the floor's fairly seamless appearance. Although joint lines are evident, they are narrow enough so as not to interrupt the flow of the image across the slabs. This effect was ensured by installing the entire floor off-site and using a drone to take images from above (photo at top). This process ensured there were no inconsistencies, that the puzzle-like interior could be fitted together easily on-site, and that the surfaces would, in the words of the designers, "take the spectator to a world without references or limits [and] bring people into a culinary and sensorial dreamy state."

The immersive material palette extends to the dining chairs made of fiberglass.
Even the restaurant's uniforms fit the concept. Left to right: Enigma's Oliver Peña, Cristina Losada, and Marc Álvarez; Pau Llimona; Chef Albert Adrià; and RCR's Rafael Aranda.
The designers standing over the original watercolor. Left to right: RCR's Ramón Vilalta, Rafael Aranda, and Carme Pigem; Pau Llimona.
The watercolor scaled up to be applied to the plan of the restaurant.
The scaled-up watercolor drawing and the flooring's unique slabs of sintered stone. (Drawing: RCR Arquitectes/Pau Llimona)
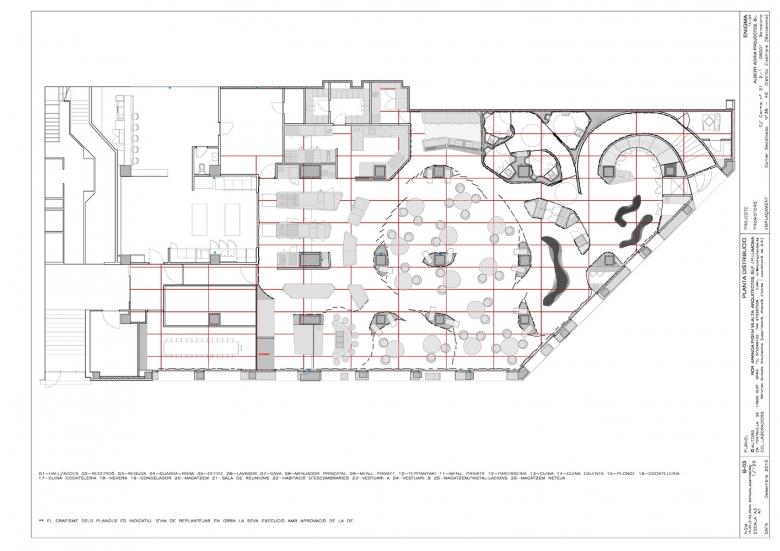
Floor plan with entrance from the street at top-right, open kitchen at left, and dining spaces amongst the forest of columns in between. (Drawing: RCR Arquitectes/Pau Llimona)

Other articles in this category