Robots of London

John Hill | 16. July 2019
Photo: Paul Tyagi
Project: Islington Residence, 2019
Location: Canonbury, Islington, London
Client: Private
Architects: Evonort, London, and Bernhard von Erlach Architekt ETH SIA, Bern
General Contractor: John Perkins Projects Ltd, London
Manufacturer: ROBmade by Keller Ziegeleien, Pfungen, Switzerland
Product: Robotically produced facade panels
Bricks: Kelesto clinker bricks, volcano
The gray-brick addition is easily missed by passersby. (Photo: Paul Tyagi)

Islington, like many residential districts in London, is serious about its heritage. Residents cherish the streets lined with Georgian and Victorian townhouses — so much that a small two-story addition in the Canonbury area was met with resistance on par with a new tower rather than a brick box barely glimpsed over a stone wall. According to Adam Howard of Evonort, the architecture firm that was hired to gain planning permission and then took the project through to tender and construction, the project had to go through two rounds of approvals. With brick walls in a contemporary rather than traditional expression, the project was rejected in the first round. While the design of the brick walls stayed the same after that, its height was lowered by half a meter; it was enough for the project to gain approval by a committee that enthusiastically embraced the design. From start to finish, the project — the 100m2 addition and the refurbishment of the 320m2 main house — took five years, a long period for a single-family residence but clear evidence of resistance to cutting-edge design.

The addition bends in plan (visible in the wall at left) in response to required setbacks. (Photo: Paul Tyagi)

The clients moved to a quiet residential street in Canonbury only to eye a townhouse right across the street that was blessed with a side yard available for expansion. They purchased the house and then were able to renovate its interior and erect the brick-and-glass addition, all the while watching the construction from the comfort of their interim house across the street. They brought in their cousin, architect Bernhard von Erlach from Switzerland, to develop the initial pavilion concept, at one point seeing a project in a coffee table book that was built with ROBmade brick panels. The company, also based in Switzerland, produces prefabricated facade panels composed of bricks and horizontal adhesive joints; the "ROB" in their name refers to the robots that do the production and are capable of achieving panels with complex geometries. Most likely unaware in those halcyon early days of the eventual time commitment, the owners were determined to realize their own version of one of the company's striking brick walls.

The brick panels sits on steel shelves over low windows bringing light to the lower level. (Photo: Paul Tyagi)

Required three-meter setbacks on multiple sides dictated the addition's footprint, which resembles a slightly asymmetrical coffin. The brick panels on the ground floor wrap a kitchen and eating area while the lower ground floor — sunken into the ground when the height was reduced — serves as a playroom for the owner's children. A double-height glass wall with sliding panels faces the verdant yard, meaning the brick is used for privacy, not just architectural expression. Solid on the long side, the ROBmade panels sit partially in front of a glass window that faces the street and frames a rectangular opening for the kitchen. Gaps between the bricks mean dots of light enter from this side during the day and glow from inside at night. The panels sit on a steel angle that is the header of horizontal windows that wrap two sides and brings light to the playroom downstairs.

Seams between panels are invisible. (Photo: Paul Tyagi)

Though small and with only 17 panels weighing around 850kg each, the project was not without its design and construction issues. While the bricks are free to undulate in a feather-like pattern in the middle of the wall, they have to return to straight lines at the base and the top: at the base so the panels do not put any asymmetrical loads on the steel angles supporting them; and at the top so the parapet coping can wrap over the brick. Evonort's Howard worked with the client and coordinated with von Erlach and ROBmade to resolve these and other details, such as sizing of the panels so they could fit on London trucks and be lifted into place by whatever crane could fit in the yard. Every detail, no matter how minor, had to be resolved before the button could be literally clicked on the robot in Zurich. Once that happened, it took just six weeks for production and delivery, and only three days to lift the panels into place.

Large sliding glass walls open up the kitchen and playroom addition to the yard. (Photo: Paul Tyagi)

Once the panels were lifted into place, the feather-like pattern crafted by ROBmade was broken up by zipper-like gaps (see photo at bottom). With the tight tolerances of robotic fabrication, it was impossible to lock the panels together on site. So the gaps were sealed in place by placing individual bricks and gluing on one side to allow for movement, thereby meshing the panels together into a seamless composition. 

The brick panel overlaps with the kitchen window on the facade overlooking the street. (Photo: Paul Tyagi)

Those gaps were trivial compared to the erection of the street-facing window, which sits behind brick panels. In the construction sequence, the installation of the glazing came after the brick but also after the structural cross-bracing needed for the opening. So when it came time to glaze, the contractor had to temporarily brace the building, reduce tension on the structure, remove the bracing at the window, and then install the glass from the inside. With the window in place, the reverse had to happen: re-tension the structure, put the structural bracing back in the opening, and then remove the temporary bracing. A convoluted process, to be sure, but hopefully one the clients won't have to repeat in the future. 

Seen from the street in the evening, gaps between the bricks create points of light in front of the glass. (Photo: Paul Tyagi)
The ROBmade panels were produced by robots in Zürich. (Photo courtesy of ROBmade by Keller)
The panels lined up on the street ready to be installed. (Photo courtesy of Evonort)
The panels were lifted into position and then individual bricks were fitted into the seams to "mesh" the panels together. (Photo courtesy of ROBmade by Keller)
Site Plan (Drawing: Evonort)
Lower Ground Floor Plan (Drawing: Evonort)
Ground Floor Plan (Drawing: Evonort)
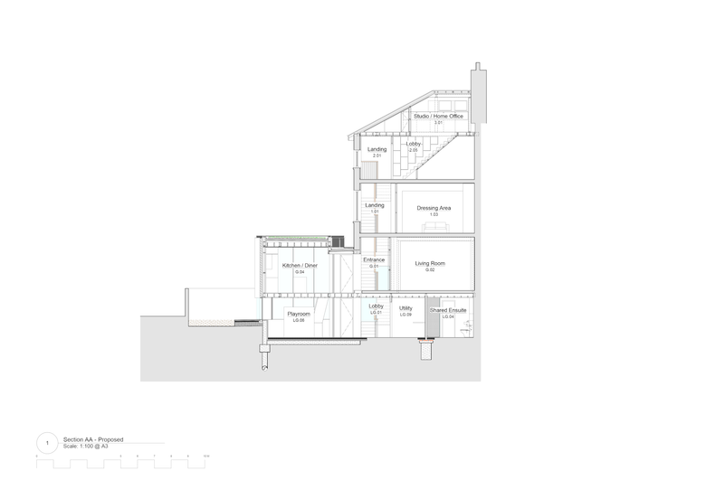
Section A-A through addition and refurbishment (Drawing: Evonort)
Section B-B through addition (Drawing: Evonort)

Other articles in this category