The Niemeyer Sphere

John Hill, Katinka Corts | 3. September 2020
Photo: Margret Hoppe / Sebastian Stumpf
Project: Niemeyer Sphere, 2020
Location: Leipzig, Germany
Client: Kirow-Werke
Architect: Ana Niemeyer Arquitetura e Consultoria LTDA
  • Design: Oscar Niemeyer
  • Management: Jair Valera
Executive Architect: KERN Architektur UG (Harald Kern)
Lighting: LICHT KUNST LICHT AG
Structural Engineering: Förster + Sennewald Ingenieurgesellschaft mbH
Built Area: 218 m²
Photo: Konstantin Klaas / LICHT KUNST LICHT AG

The project's beginning is a story anyone would want to tell: Ludwig Koehne, director of Kirow, which manufactures railway cranes, reached out to Oscar Niemeyer in 2011, when the architect was 103. In the letter he explained that he wanted a special room for world-class cuisine and small parties as part of the company's popular canteen run by a chef with a knack for extraordinary recipes. He had a building in mind, one that would handle the kitchen and sanitary facilities, leaving Niemeyer's addition to be used strictly by patrons for drinks and culinary delights. "Your architecture, "Koehne explained, "is simply well-suited to this construction project."

Photo: Margret Hoppe / Sebastian Stumpf

Niemeyer took on the project but died the following year. However, he left behind numerous sketches and details depicting how the shell, made of light-colored concrete and glass, could be docked on the side of the historic boiler house. The project was developed over the next few years by Jair Valera, the office manager of Niemeyer's studio, in collaboration with Leipzig architect Harald Kern. In particular, it took time to find companies both specialized and confident in handling the attached, partially glazed concrete ball. With its 12-meter diameter, the Niemeyer Sphere now crowns the two-story brick building and rests on a brick-colored support that blends into the existing building. The sphere is reached from behind via a staircase or an elevator, while a sweeping stair following the curve of the sphere unites the bar and restaurant.

Photo: Margret Hoppe / Sebastian Stumpf

Inside the sphere, the bar sits above a technical level and on top is the restaurant, which leads to a roof terrace atop the existing building. From here — as well as from the sphere itself — are views to the west of Leipzig. The sphere's lighting, handled by Licht Kunst Licht AG, is particularly noticeable at night, when the ball seems to float, as if standing out from the rest of the world. The white concrete dominates during the day, when the triangular glass surfaces appear dark; liquid crystals mean the glass can be darkened to different degrees to shade the restaurant. Like one of R. Buckminster Fuller's famous geodesic domes, the triangulated frames evenly distribute the loads from the glass surfaces to the concrete structure. 

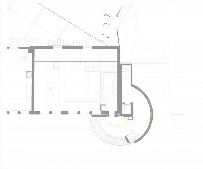
First floor plan (Drawing: Ana Niemeyer Arquitetura e Consultoria LTDA / KERN Architektur UG)
Second floor plan (Drawing: Ana Niemeyer Arquitetura e Consultoria LTDA / KERN Architektur UG)
Top floor plan (Drawing: Ana Niemeyer Arquitetura e Consultoria LTDA / KERN Architektur UG)

A version of this article originally appeared as "Alles für den Koch" on German-Architects.

Other articles in this category