David Baker Architects
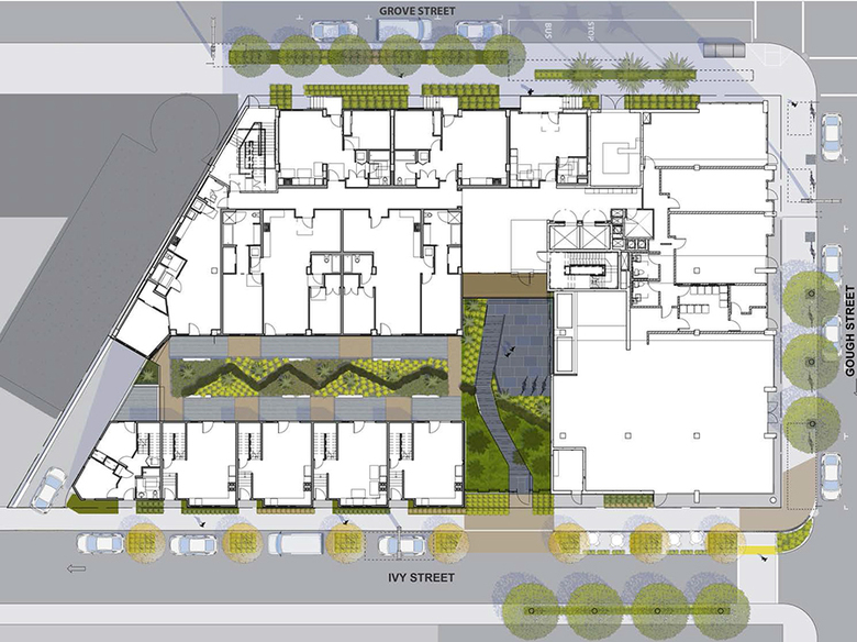
300 Ivy Street
This mixed-use development of urban market-rate homes, restaurants and shops continues the repair of the neighborhood fabric damaged by the removal of the Central Freeway.
The design was developed as a balance of inside and out: equally addressing the needs of residents for high- quality, modern, peaceful homes with the needs of the community for vibrant retail, a place for pedestrians, and a texture and scale that respects the surrounding buildings.
The beginning basis of the design was a consideration of how the building would touch the public space, and the strategy used throughout is the ju- dicious “drawing back” of the building from the property line, effectively re- turning space to the public realm to create the comfortable, human-scaled edges. This building maximizes the site edge with lively uses, widened sidewalks, and a gracious entry sequence, encouraging retail spaces and residential stoops to connect outward to the street.
An emphasis on the corner bays creates a gateway feeling as the busy one-way traffic approaches the heart of Hayes Valley. At a smaller scale, transom windows line the retail arcade, referencing the common typology of the neighborhood and bringing daylight into the shops.
The main entrance is around the corner from the building’s most public face, on the smaller and quieter Ivy Street. The approach to this entrance has been arranged as a “decompression” sequence that guides residents from the bustle of Gough Street towards the sanctuary of the building.
Inside, units are designed with modern simplicity, maximizing views with floor-to-ceiling windows and continuing the connection to outside. Just as the ground floor of the building has been pulled in away from the edge to create additional public space, the units above extend, pushing private space out over the busy sidewalks. The neighborhood-inspired pattern of bays creates unique edges for the units, adding interest. The rooftop has an outdoor entertaining kitchen, a lavish protea garden, and a patio for lounging. A perimeter of bamboo defines the common space, which is lined with planters available to residents for gardening.
On the smaller scaled Ivy Street, as height limits drop, the building chang- es tone and becomes a row of three-story townhouses. By moving the trees into planters between the street parking, pulling the building a few feet back from the property line, and lifting the first living floor off street level via indoor stoops, the design widened the sidewalk for pedestrians and buffered the townhouses from the fully public realm.
PROJECT TEAM
Architect: David Baker Architects
Developer: Ivy Grove Partners
Contractor: Cahill Construction
Landscape: Fletcher Studio
Structural Engineer: Murphy Burr Curry
Civil Engineer: Sandis
Lighting Designer: Horton Lees Brogden
MEP: Robison Engineering
Design/Fabrication: Pacassa Studios
Outdoor Furnishings: OHIO Design
Photographer: Bruce Damonte









