ABC – Autonomous Building for Citizens

Valode & Pistre | 8. January 2021
 Photo: Philippe Chancel
Project: ABC – Autonomous Building for Citizens, 2020
Location: Grenoble, France
Client: Linkcity
Architect: Valode & Pistre
Collaborators:
  • BBSE: Concrete structure engineering firm 
  • NERCO: Fluids engineering firm
  • ETI: Metal engineering firm 
  • Ma ville verte: Landscape contractor 
  • BIM-ING: Economist 
  • EXACT: Acoustics engineer 
  • SUEZ: Water treatment
  • ELAN: AMO certifications 
  • HESPUL: AMO energy 
  • Grenoble habitat: Social landlord
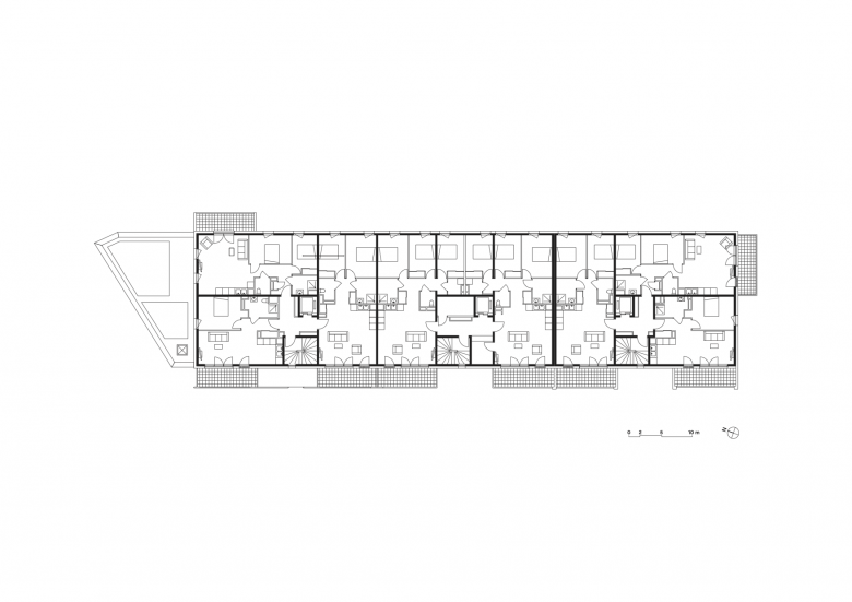
Program: 62 dwellings including twenty social, communal hall, educational showroom, vegetable gardens
Building Area: 5,000 m2
Living Area:  4,350 m2
 Photo: Philippe Chancel
A For Autonomous

The ABC concept targets energy (electricity, heat, etc.) and water self-sufficiency and optimized waste management. By mixing renewable energy production, energy storage and better- controlled consumption, ABC suggests another way of thinking and living the habitat, very well integrated into its natural environment from which it draws the necessary resources to function (water, heat, etc.).

 Photo: Philippe Chancel
B For Building

The ABC concept breaks new ground with its construction processes. By incorporating a certain amount of standardization to build faster while maintaining a very high level of quality.

 Photo: Philippe Chancel
C For Citizens

ABC goes beyond a purely technical approach; an essential issue is to involve residents throughout the process so that they can take on board the specific features and innovations of the project. The ABC concept places the resident at the heart of the structure to meet his current expectations and changes in society: pooling of facilities, information and control system, modularity of certain spaces.

 Photo: Philippe Chancel

The area Presqu’île is an ideal context for applying the ABC concept to an actual project. The project involves creating a built complex capable of capturing a maximum of solar energy while becoming an integral part of the architecture of the joint development zone (ZAC).

The morphology of buildings has been worked to fall in line with the site. The emblematic silhouette that can be seen from the railway is reminiscent of the surrounding mountains and can accommodate the photovoltaic roofs that characterize the project. This mountain staging is accentuated by a perforated metal base alongside the heart of the island and protruding boxes that seem hooked onto a cliff.

 Photo: Philippe Chancel

The projects offers a bike park space for each resident. A large communal hall and vegetable gardens provide the residents with convivial moments.

Large technical rooms (water and batteries room) are planned for storing the resources, water and energy; rainwater is made safe to drink. Innovative recycling showers can limit the use of water resources even further. Every resident knows and controls his consumption.

The residents will monitor the project's performances and appropriation for five years to make a precise assessment.

Image: Valode & Pistre
Image: Valode & Pistre
Image: Valode & Pistre
Image: Valode & Pistre
Drawing: Valode & Pistre
Drawing: Valode & Pistre
Drawing: Valode & Pistre

Related articles 

Other articles in this category