World Building of the Week
D-Day Museum
The D-Day Museum in Arromanches, France, was inaugurated on June 6, 1954, on the tenth anniversary of the D-Day Landings. Fast forward 65 years and this first museum to commemorate the landings was in need of larger facilities, leading to a design competition. The winning scheme by PROJECTILES, the architecture studio founded in Paris in 2005, was fully complete by last month's 80th anniversary of D-Day. The architects answered a few questions about the project.
What were the circumstances of receiving this commission?Inaugurated in 1954, the Musée du Débarquement d'Arromanches had become outdated and cramped for its 300,000 annual visitors. In 2019, the village of 500 inhabitants launched an architectural and scenographic design competition for the construction of a new museum that would double the area of the existing and for the development of its surroundings, to be carried out in two phases. Despite studies carried out in the midst of Covid confinement, the challenge of opening for the 80th anniversary of the D-Day landings was met. Four years were needed between the competition and the reopening of the first phase of work, on April 1, 2023, followed by a further year to complete the project in May 2024, one month ahead of the anniversary.
"When the remains are gone, the museum will remain.”
This sentence, taken from the program, is very powerful. It speaks volumes about the major issues at stake in this project, namely the remembrance, knowledge, and transmission of this shared history, as well as our duty to remember beyond the certain disappearance of the remains of the artificial harbor in the near future. Born of Winston Churchill's fabulous intuition, the artificial harbor is the symbol of a technical feat and an extraordinary human adventure.
Whether for everyday use or for special commemorative days, the primary aim of the Place du 6 June 1944 is to be a place that can welcome as many people as possible. This space is both a forecourt to showcase the museum housed there and a public space where you can sit on the bleachers to enjoy the spectacle of the tide as it uncovers the remains.
To the east, a new public space has been created in connection with the slip. This tree-lined area complements and continues the Place du 6 June 1944. Additional terraces complete the layout, helping to manage the change in elevation. Their diagonal orientation expands the coastal promenade and connects it directly to the slip and adjacent streets.
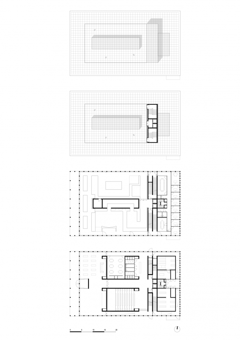
The project is characterized by its relationship to the site, its simple volumetrics and its constructive rigor. It is a museum-horizon, in which the many visual openings from inside to outside (and vice versa) are of the utmost importance.
On the first floor, the public space of the square and street extends into the museum. On the second floor, on the collections plateau, maps and objects come face to face with the wider landscape, allowing visitors to observe and understand it more closely. Finally, on reaching the roof, structures, facades, picture rails, and projections disappear. The face-to-face encounter with the site is absolute: observation becomes contemplation, history becomes memory.
A 4-meter (13-foot) deep, 8.4-meter (27.5-foot) high canopy extends across the entire width of the museum, clearly marking its entrance from the Place du 6 June 1944. Prefabricated posts in light-colored concrete form the periphery of the building, following differentiated grids. Their use echoes the engineering genius of the modules that make up the artificial harbor. Built on the other side of the Channel, the Phoenix caissons, quays, floats, and floating road decks were then transported to Arromanches-les-Bains for assembly. The filling between the elements of this concrete exoskeleton consists of large glass frames.
A large, 16-meter-long, 4-meter-wide longitudinal rift structures the floor plan of each level (its dimensions have the same ratio of proportions as the largest Phoenix caissons). A walkway seems to float in this volume, but visitors will only really discover it when they enter the museographic tour. The prefabricated structure continues inside the museum. Transverse beams spaced at 2-meter (6.5-foot) intervals span the 12-meter (39-foot) length from the fault line to the columns on the north and south facades. At each level, these beams free two large floors, each with a surface area of 360 m2 (3,875 sf), from all load-bearing points.
A transverse strip groups together all the vertical circulation routes for the public, while keeping them separate. Wide interior walkways, sized to accommodate the large number of visitors, run along the facades, encouraging visitors to stroll around the perimeter of the spaces. From the outside, the museum appears livelier and more animated.
In this very open landscape, everything is a horizon. The relationship with the land is fundamental and self-evident. Positioned as it is, this museum is in fact an observatory.
Arromanches-les-Bains stands apart from all the other sites linked to the Normandy landings. Beyond its symbolism and history, the landscape it forms with its site is exceptional. A stroll along the cliffs reveals a place where geology — like the geography of this natural cove — has shaped history. Thanks to this specific configuration of the shoreline and its surroundings, it was possible to determine the location of the artificial harbor Mulberry B!
This landscape museum is conceived as a "whole" belonging to a much larger museum system, stretching from east to west (from cliff to cliff) and from north to south (from horizon to village). From the square and the hillside, the museum is visible from all five sides, contributing to the diversity of views of the landscape by offering different framings and dialogues with different scales.
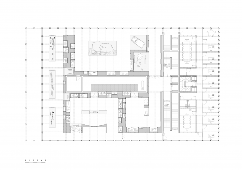
Straddling the maritime territory, the public space and the interior of the museum, the museographic tour begins at Place du 6 June 1944 and the coastal promenade. The remains are omnipresent, and will remain so throughout a visit to the museum.
The exhibition rooms are gradually being opened up to the outside world, in line with the evolution of historical periods and themes (from the outbreak of war to the liberation).
On the first floor, an introductory film projected in a stepped room with a hushed ambience sets the scene and reminds visitors of the events leading up to the Second World War. The tour continues on the second floor, with a direct visual link to the maritime skyline and the remains of Mulberry B. Visitors end their visit with a 1/750 scale model of the port. The scale, layout, detailed operation, organization, and activity of the port in the summer of 1944 are all explained. Video-projector mapping highlights key elements and landscape features: breakwater caissons, ships, waves, tides, barge and tank landings, breakwaters, jetties, tank and military flows, signal lighting, etc.
The relationship between the project management group and the client was magnificent! For over eighty years, this small village of 500 inhabitants, the scene of a turning point in our shared history, has welcomed over 20 million visitors to its museum. The political will of the commune's main elected representatives, supported at all levels (Ministry of the Armed Forces / DRAC / Region / Commune), has enabled this major project to emerge, with the aim of rebuilding community life through culture and boosting the attractiveness of the area.
The team we represent boasts a multi-disciplinary approach (architecture / scenography / design) that enhances our ability to offer a visitor experience that is both spectacular and respectful of the collections and themes addressed. It reinforces our ability to design a variety of layouts and mediation devices accessible to all people, but also to take into account preventive conservation requirements.
The architectural and scenographic treatment of the new museum, as well as the landscaping of its surroundings, contribute not only to further marking the museum's presence within the site and to offering better reception conditions to all visitors, but also, above all, to establishing a closer relationship between the remains, the machines, and the collections presented in the exhibition rooms. Raising awareness of this major event in the history of World War II draws its coherence from this close relationship between the different museographic scales.
The tertiary synthesis of landscape, architecture, and scenography forms an indissociable whole. It's not simply a matter of proposing a beautiful scenography, then a beautiful building, and finally a beautiful public space. Each of these ingredients is a sine qua non for the success of the project. In other words, the architectural massing is conceived in terms of the museographic sequencing, and the landscape is conceived in terms of its ability to enhance the collection.
Email interview conducted by John Hill.
Location: Place du 6 Juin 1944 – 14117, Arromanches-les-Bains (14), France
Client: Commune d’Arromanches-les-Bains
Architect: PROJECTILES, Paris
- Project Architects: Daniel Mészáros, Reza Azard, Hervé Bouttet (associates)
- Project Manager: Colas Saint-Martin (architect)
- Project Team: Quentin Clermont (architect), Lucie Leblanc (scenography project manager)
MEP/FP Engineer: TPFi
Landscape Architect: Emma Blanc
Lighting Designer: ABRAXAS
Economy Engineer: BMF CONSEIL
Acoustics: ALTIA
Graphics and Signage: WA75
Multimedia Designer: LUNDI 8
Model Designer : VEROLIV
Floor Area: 2,220 m2

















