Kennerly Architecture & Planning
Albion Street Residences
A local developer asked Kennerly Architecture and Planning to design three new condominiums on a formerly empty lot that once housed San Francisco’s original Mission Dolores.
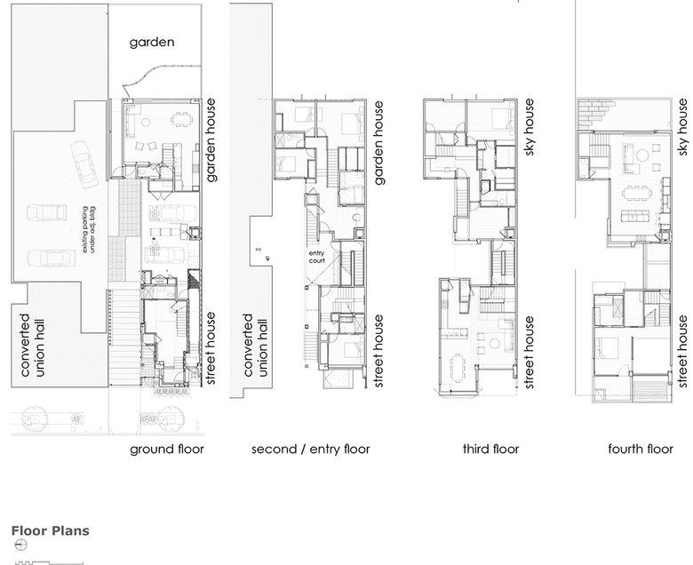
The site is located at the T intersection of two smaller streets, where it terminates a block-long vista and commands views up to the towers of the present-day Mission Dolores and Twin Peaks in the distance. The building reinterprets San Francisco’s fine-grain urbanism as a sequence of figural urban spaces leading from street to court through transparent multilevel townhomes to midblock gardens and patios.
The primary design constraint was the need to remain sensitive both to the converted historic Union Hall that shares the same parcel and to the shared-access driveway that leads to parking beneath it. The solution co-opts this in-between space as a common entry promenade and court, while the building extends out and over with a broad cantilever, emerging as an exuberant bay window that reinterprets Union Hall’s traditional bay window in a contemporary manner.
Windows are deeply recessed to give the facades depth and texture and relate to the historic building next door. Ribbed glass provides privacy where needed. The volumes are clad in a highly durable white plastic decking material, counterpointed by the extensive use of stained wood, including mahogany doors at the entries. The exterior walls fold up and over to become a roof element. A large steel trellis at the roof level provides shade, while generous plantings in the courtyard and along the street create a tropical feel. Ornamental metal gates provide access to the exterior stairways.
The project occupies a transit-rich mixed-use neighborhood where walking or biking is the preferred mode of transportation. The courtyard provides multiple light aspects and cross ventilation and minimizes conditioned common space. The sidewalk, driveway, and inner court are pervious, allowing water to percolate into native sandy soils. Planters and green roofs detain rain water as well. Extensive shading of windows allows access to views without active cooling. Other sustainable design elements include radiant underfloor heating, flooring manufactured from rapid-growing woods, low-VOC finishes, water-saving fixtures and irrigation systems, and energy-efficient lighting.
Related articles
-
-
The Three-Body Problem: Trapped in a Wave Sandwich
Eduard Kögel, Scenic Architecture Office | 13.04.2026 -
-












