h2o architectes

Arsenal Flat

h2o architectes | 30. July 2015
Photo: Stéphane Chalmeau (All images courtesy of h2o architectes)
Photo: Stéphane Chalmeau

The project is articulated around three connected and sequenced living spaces which are defined in function of uses, light and multiple views. Each one of these spaces is characterized by its solar orientation: east, west or south.

Photo: Stéphane Chalmeau

Each child has its own independent bedroom; the common living space is open and partitioned by elements of furniture which have all been designed so as to follow the sloping games of the roof-line, forming a landscape of “totems”. They include bookshelves and diverse storage spaces. A diagonal opening is thus drawn throughout the principal living room of which one forgets the rather tight initial dimensions. This reading of the apartment is further enhanced by the use of white paint on wood or plaster for the principle surfaces underlined by wood (oak) along the floor and for the “totem” elements.

Photo: Stéphane Chalmeau
Photo: Stéphane Chalmeau
Photo: Stéphane Chalmeau
Photo: Stéphane Chalmeau

PROJECT CREDITS

Program: Housing
Location: Paris (75)
Commission: Private
Architects: h2o architectes
Construction: Sarl Poluks
Specificity: Wood furnishings
Area: 70 m 2
Cost of works: 70 000 € TTC
Date: Spring 2015

Axonometric (Drawing: h2o architectes)
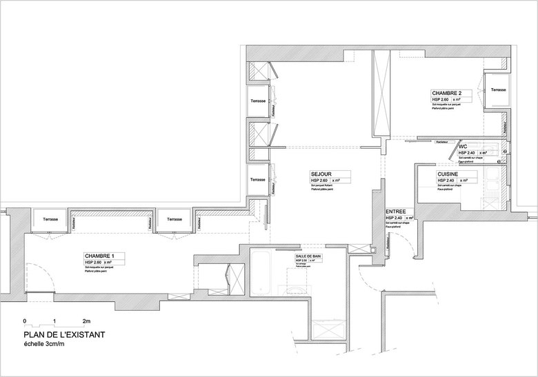
Existing floor plan (Drawing: h2o architectes)
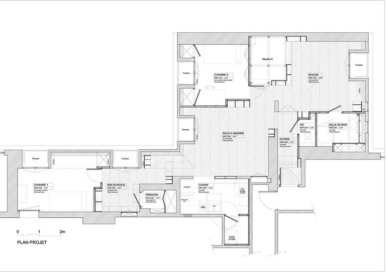
Project floor plan (Drawing: h2o architectes)
Sections (Drawing: h2o architectes)

Other articles in this category