Dixneufcentquatrevingtsix

Benoît & Roselyne

Dixneufcentquatrevingtsix | 29. March 2017
View of extension from the garden (Photo: Florian Kleinefenn)

The extension added to this house, which until recently only served as second home, had to enable Benoît and Roselyne to host their children, grandchildren and friends.

View of south facade (Photo: Florian Kleinefenn)

A monolithic and sculptural concrete volume rises from this landscape of greenery and limestone, resonating with the genius loci of this place, a former quarry. 

Zoom on the southeast corner of the extension (Photo: Florian Kleinefenn)

This volume has been designed to allow the interplay of light and shadow to reveal its faceted form and to assert its presence and contemporary look without negating its kinship with the house it adjoins.

View of the south facade (Photo: Florian Kleinefenn)

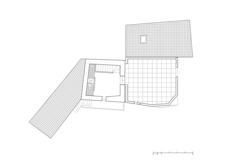
Like the existing farmhouse, the extension is laid out in two main, contiguous structures: the first is in the form of a square, approximately 5 meters by 6 meters (within the range of current dimensions for small farmhouses in this region); the second is rectangular and on a single level. 

Axonometric of existing project + extension (Drawing: Dixneufcentquatrevingtsix)

Narrow openings analogous to the farmhouses of the Usège region are positioned on the east and south façades to protect the interior from intense heat in summer and cold in winter.

Opening - Bedroom - First floor (Photo: Florian Kleinefenn)

The wind known as the mistral only allows for a few apertures on the north side, apart from the ones on the terrace, which recall the little openings traditionally found on the attic level placed there for the purpose of observing the migration of thrushes.

Terrace (Photo: Florian Kleinefenn)

Given the dimensions, orientation, opening and physicality of the project, it blends right into the logic of the existing construction. Its design transposes the archetypal codes of Provençal farmhouse architecture while reinterpreting the typological characteristics of the original house in a contemporary architectural style.

Existing farmhouse and extension during construction (Photo: Dixneufcentquatrevingtsix)

This house is a shelter that conveys a feeling of safety and protects its occupants from the climate, intense sunlight but also violent storms.

Entrance and living room - ground floor (Photo: Florian Kleinefenn)

Thus there is no or very little porosity between the interior and exterior and the openings are like screens, or photographic frames of the landscape. They create the sequence of the movements of the inhabitants, from private spaces to common areas and on to the terrace and gardens.

Framing, first floor (Photo: Florian Kleinefenn)

The additional spaces inside (bedrooms, bathrooms, living areas) and outside (pool, lower garden, levels of terraces, upper terrace on level 3) maintain privacy and the pace of life of each of the three generations gathered under the same roof.

Living room - ground floor (Photo: Florian Kleinefenn)
Parental suite, ground floor (Photo: Florian Kleinefenn)
Plan R+1 (Drawing: Dixneufcentquatrevingtsix)
Plan R+2 (Drawing: Dixneufcentquatrevingtsix)
Plan RDC (Drawing: Dixneufcentquatrevingtsix)

Other articles in this category