Bricks on The Move

Ákaran Architects | 19. January 2022
Photo: Parham Taghioff (All images courtesy of v2com)
Project: Bricks on The Move, 2020
Location: Tehran, Iran
Client: Golshirazi Charitable organization
Architect: Ákaran Architects
  • Lead Architects: Moeen Afzalkhani , Zahra Azizi
  • Design Team: Ali Frughi, Mohammad Arefian, Hanna Mobaraki, Reza Ghorashi
Gross Built Area: 10,400 m2
Photo: Parham Taghioff

The one-way street it overlooks on the south elevation connects two of Tehran's main north-south arteries; therefore the nature of the site's impact on the passer-by is affected by speed and haste. The architecture has aimed for the drivers and pedestrians to pause, even in passing, and perhaps reminisce through a modern structure with ties to the culture's past. In line with this aspiration, the building is rather still from street level, where all the rushing takes place up to the third floor, which is also the height of the neighboring buildings. Up to that point, the brick modules are static, which also limits views towards the neighboring sites.

Photo: Parham Taghioff

From the third floor to the sixth level, these modules become mobile as it rises higher and distances itself from the freneticism of the enveloping streets, with views opening up to the mountains and the city scape. Bricks screwed together, framed, and moving on rails along the glazed elevation of the building help the architecture to improvise an impression of the speedy surroundings of the street scape, while also expanding views towards the city from the inside.

Photo: Parham Taghioff

The mobile brick panels not only provide an ever-changing image of the building on the outside, they also enable the user to control the amount of sunlight that flows into the office spaces. Each panel weighs around 1000 kg but is nevertheless very easy to push along the rails fitted into the flooring. The mobile modules are designed and engineered to make them as lightweight as possible, using custom made hollow bricks screwed together.

Photo: Parham Taghioff
Photo: Parham Taghioff
Commercial entrance (Photo: Parham Taghioff)
Ground-level commercial space (Photo: Parham Taghioff)
Office interior with brick modules on rails (Photo: Parham Taghioff)
Office interior with brick modules on rails (Photo: Parham Taghioff)
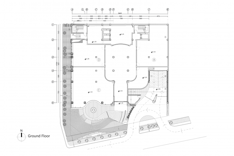
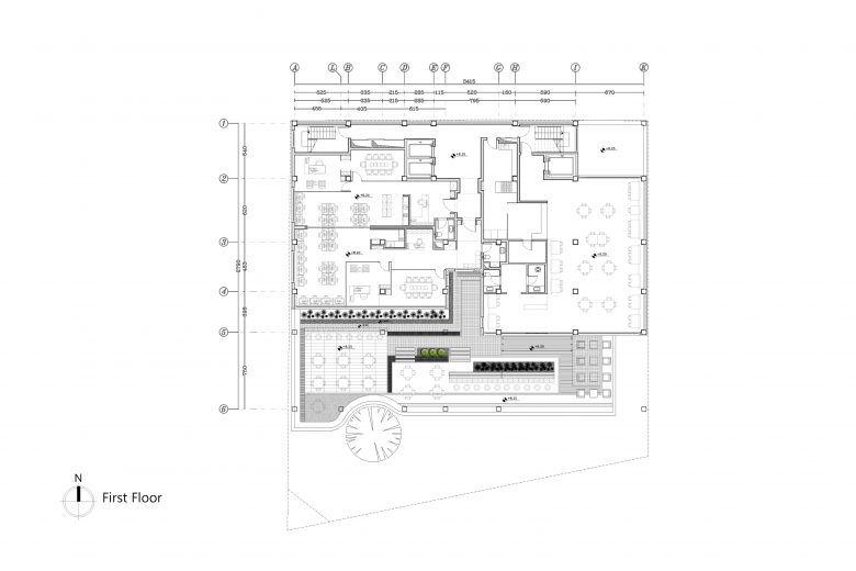
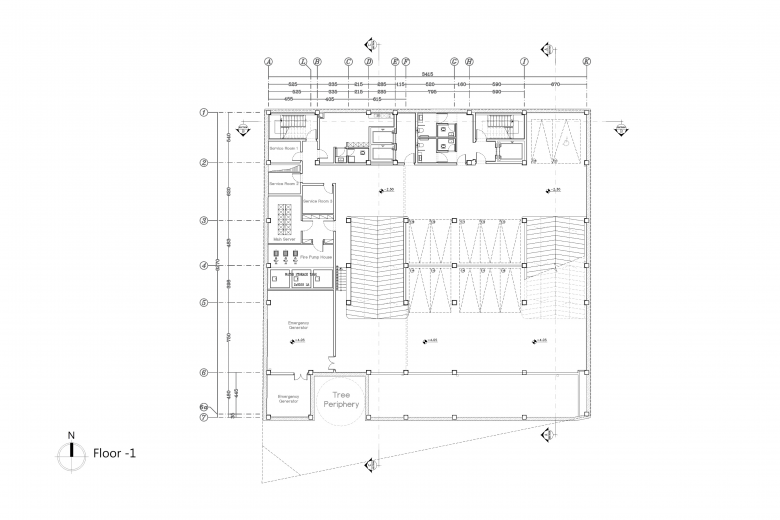
Drawing: Ákaran Architects
Drawing: Ákaran Architects
Drawing: Ákaran Architects
Drawing: Ákaran Architects
Drawing: Ákaran Architects
Drawing: Ákaran Architects
Drawing: Ákaran Architects

Other articles in this category