Pedra Silva Architects
Care Implant Dentistry
What if...we made magic in Sydney? On one of Sydney’s high-end retail streets we were invited to design a high-level state of the art dental clinic.
The actual space and the brief provided by the client posed a few challenges that got us thinking. An aesthetic is something that may be mistaken as an additional almost cosmetic layer to a design, but in our projects, the aesthetic is a clear response to problem solving.
In this particular case the client requested two receptions with two entrances that could function separately but without compromising the sense of spaciousness and its relationship with people passing by. In the same space we also had a stubborn structural column that seemed to impose itself in all the attempts of trying to integrate it into the design. The solution? Answering the brief and magically making the column disappear!
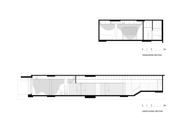
To achieve this we created a sculptural wooden element that serves as a filter between the two reception areas. This element serves a dual function: allowing for partial vision between spaces by separating them and at the same time making the concrete column vanish! Built from suspended wooden planks that start with narrow elements that then widen to engulf the existing column, this element was a response to a premise and became the predominant feature working as a space generator, influencing the ceiling and other elements.
The public accesses the clinic from Archer Street, leading towards the appropriate reception desk and waiting area. The waiting areas are composed of two lounges, one for general dentistry and the other for dental implant practice.
The remaining space of the clinic is arranged around a central corridor that starts in the reception area that connects all the intricate parts of the dental clinic, from examination areas, surgeries, client areas and technical spaces. In the middle of this corridor you find a transparent central core made of glass allowing for natural light to penetrate the interior of the space. At the far end of the clinic you find the main surgery where advanced oral procedures are performed. As a national reference in the dental arena, the client Dr Christopher Ho requested that this space be designed in a way that would allow for these complex procedures be seen by piers sharing the experience and knowledge. This was achieved by placing an observation room on a higher level with a large window towards the surgery and connected with a camera allowing for fellow surgeons to view procedures from close-up on a large screen.
In summary this is a space where complex procedures are performed and we tried to create a corresponding space that communicates this level of sophistication leaving a positive and memorable impression on the patients who used it.
PROJECT DATA
Area: 402 m2
Date: 2014
Architect: Pedra Silva Architects, Luis Pedra Silva & Dina Castro
Team: André Góis, Hugo Ramos, Hugo Ferreira, Maria Rita Pais, Ricardo Conceição
Contracts Manager: Alex Smallbone
Project Manager: Andrew Stewart
Contractor: Renascent
Photography: Fernando Guerra











