jones | haydu

Coffee Bar Kearny

jones | haydu | 15. June 2015
Photo: Art Gray (All images courtesy of v2com)

Coffee Bar serves as a workshop to explore, experiment, and embrace the trends of the coffee industry.

Photo: Art Gray

The cafe sits at the entrance to Saint Mary’s Garage, located centrally on the block of Kearny Street directly across from the Bank of America plaza. This stretch of sidewalk has been plagued by vacancy: adjacent lies a neglected lot, and the space itself has been empty for at least twenty years. After the Loma Prieta earthquake, the garage underwent seismic upgrades. This placed a large concrete shear wall between the space and the sidewalk, effectively making it undesirable for retail. In an effort to bring life back to this crucial pedestrian zone, the concrete shear wall was opened, connecting the space to the sidewalk. In order to reduce waste, materials were used sparingly. Instead of covering up an othewise rough shell, existing concrete and piping were refreshed and left exposed, celebrating their industrial character.

Photo: Art Gray

Utilizing the Japanese Shou Sugi Ban technique, the exterior wood siding is scorched, a process which inherently prolongs the life of the wood. Above the opening, the scorching fades into the wood’s natural color. On the left, at pedestrian level, the scorched wood wraps to the interior, becoming the main intervention: a black frame surrounding the baristas. This black frame becomes a room within a room, emphasizing the artistry of the barista through a minimal use of materials and high efficiency lighting. The blackened steel counter provides a stark backdrop for the finished product, and will patina over time.

Photo: Art Gray
Photo: Art Gray
Photo: Art Gray
Photo: Art Gray
Photo: Art Gray

jones | haydu won a Merit Award for Interior Architecture from the American Institute of Architects San Francisco for their work on Coffee Bar Kearny.

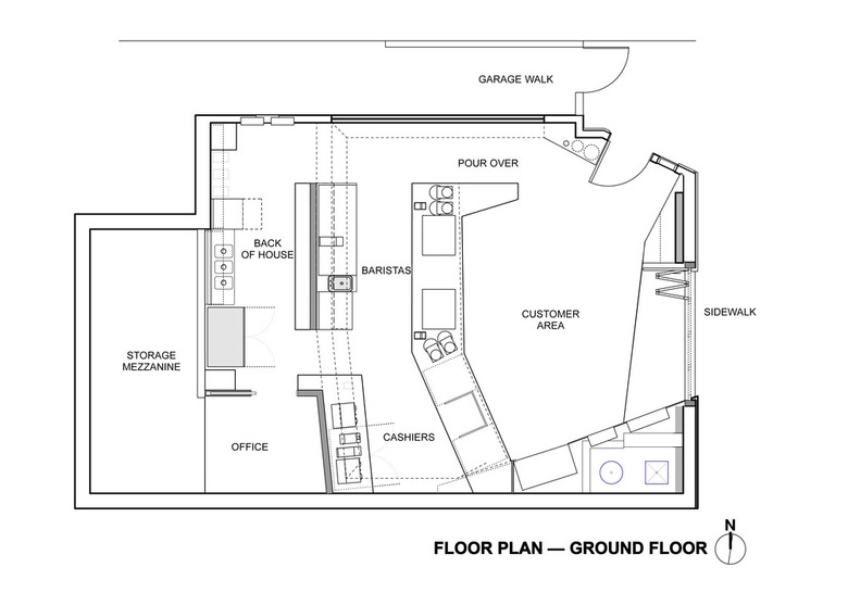
Drawing: jones | haydu
Drawing: jones | haydu

Other articles in this category