architectenbureau cepezed

Creative Cluster

architectenbureau cepezed | 6. April 2015
All photographs courtesy of architectenbureau cepezed

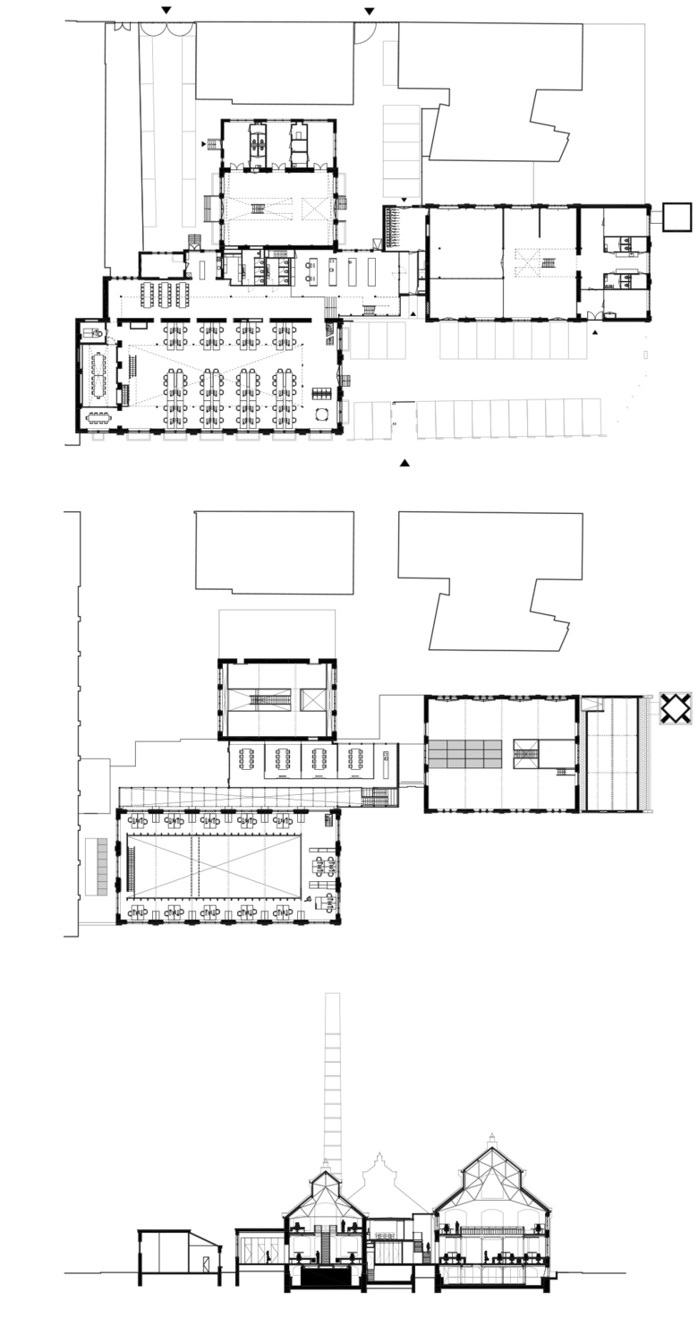
Now, the office has moved moved to a listed property more than a century old on the south side of the city’s heart. The three halls on the Ezelsveldlaan were built at the start of the twentieth century as a laboratory for the department of Mechanical and Marine Engineering at what was then the College of Technology. For years on end, the students carried out tests here with various types of engines and turbines. After Mechanical Engineering moved to the new college district in phases during the second half of the 1950s, the complex changed function several times. From 1993 to 2008 the halls housed the Technology Museum whereupon cepezed became the owner of three halls and a 38-metre-high chimney. The largest hall is in use by cepezed itself; the other two are rented to companies in the creative sector. The middle-sized hall is now in use by a company involved in sustainable transport; the smallest one houses a company that specializes in multimedia productions for museums and exhibitions.

The three halls that together make up the ensemble were built between 1905 and 1911 to a design by the architect Jan Vrijman (1865-1954), who, as Chief Government Architect, also fulfilled the function of ‘Government Building Engineer for Education’. The building style was described by the Cultural Heritage Agency – the complex has been a listed building since 2003 – as ‘Neo-Dutch Renaissance’. Characteristic elements are the façades rich with springstones and bands of different colours and the pitched roofs covered with blue slates, which are interrupted by a clerestory with continuous strips of glass. Together with the large windows, this allows a great deal of natural light into the interior.

In architectural terms, the halls are strongly akin to each other; their main difference is size. The middle hall, directly next to the chimney, functioned as the boiler house; the open slats in the roof still serve as a reminder. The steam that was used to drive the machines was produced in the boiler house. These machines stood in the largest hall, directly alongside the Ezelsveldlaan, where they could be relocated using a lifting installation with a capacity to lift 6000 kg; it is still in working order. Connected to each hall is an annex, which had a specific function. The boiler house annexe was used to store coal, while the annex to the smallest hall on the Nieuwelaan side functioned as an auditorium.

Inside, one of the features that makes the halls so beautiful is the contrast between the massive walls and the light, elegant roof construction with the characteristic ‘Polonceau trusses’, which each consist of two segmented triangles connected by a tension rod. The construction of the halls was such that in the event of an explosion, only the roof would be blown off; the walls would remain standing.

Although cepezed’s various transformation assignments differ greatly from each other, in principle the office ultimately employs the same approach for all of them. It begins with a thorough analysis of the existing situation – aspects relating to architecture, construction, building performance and installation engineering, but also elements such as spatial quality, functionality, routings, orientation and integration within the context. Bringing things back to the essence almost naturally leads the way to innovations that result from the individuality of the existing buildings. The approach is always to achieve the greatest possible effect and end result with minimal interventions. That also includes preserving and utilizing the existing situation as much as possible. After all, excessive ‘pruning’ diminishes the authentic character of a building, while existing features actually emphasize its nature. In addition, it is often possible to turn any disadvantages into advantages. cepezed adds new value by means of, for instance, more natural light, improved view, spatial diversity and a pleasant internal climate. And naturally a good functional organization. An important feature of cepezed transformation projects is the sharp contrast between what was already there and what is being added.

PROJECT DATA

Project: Creative Cluster
Address: Ezelsveldlaan 61, Delft
Client: Made in Delft, Delft
Users: cepezed architects, Kiss the Frog, Connekt
Architect: cepezed architects, Delft
Structural: Smitwesterman, Gouda IMD, Rotterdam
Installation Techniques: Linssen, Amsterdam
Construction Physics and Acoustics: DGMR, the Hague
Building Coordination: cepezed architects, Delft
General Works: Bouwlinq Haaglanden, the Hague
Steel Construction: Klein Poelhuis Konstruktie, Winterswijk
Glass Constructions: BRS Building Systems, Moerkapelle
Mechanical Installations: Schulte & Lestraden, Lisse
Electrical Installations: Schoonderbeek Installatie, Hillegom
Interiors: Smeulders Interior Group, Neunen
Realization: 2014
Gross Floor Area: 3.750 m2
Photography: Jannes Linders, Léon Van Woerkom
Text: Olof Koekebakker

Other articles in this category