World Building of the Week

Heerlen City Hall and Municipal Offices

Mecanoo | 24. February 2025
Photo: Ossip Architectuurfotografie
What were the circumstances of receiving this commission?

Mecanoo, as part of the consortium Jongen-Mecanoo-ABT-Dijkoraad, secured the commission for the new City Hall of Heerlen through a tender process. The project involved not only designing a new municipal office building but also renovating and integrating the existing Town Hall, a 1942 landmark by architect Frits Peutz.

Photo: Ossip Architectuurfotografie
What makes this project unique?

This is not just another public building — it is a place where the past and future come together in a meaningful way. With this project, we weren’t simply designing a new government office; we were continuing a story that began with Peutz’s City Hall. The Raadhuis, a national monument since 1999, has a strong, distinct identity, and instead of overshadowing it, our goal was to create a dialogue between old and new. The new Municipal Offices don’t compete with the historic structure; they complement it — like siblings, different yet equal.

We embraced contrasts. Peutz’s architecture is monumental and grounded, while the new building appears to float above the landscape. We also played with materials in a way that respects history while creating something fresh — we inverted Peutz’s approach, placing white limewash on the exterior rather than the interior.

Photo: Ossip Architectuurfotografie
What is the inspiration behind the design of the building?

As someone from Limburg, I’ve always been fascinated by the city’s architectural heritage, especially from the 1950s and 60s when Heerlen embraced modernity. Peutz’s original City Hall is a landmark from that era, and we wanted to honor that legacy while designing for the future.

In addition to its historic heritage, Limburg’s rolling landscape played a significant role in our design. We extended this natural topography into the site, and with the transparent plinth, we created a floating architectural concept that makes the building feel elevated, light, and integrated with the landscape.

Most importantly, we wanted the building to be open and welcoming. The public hall serves as a central meeting space for Heerlen’s citizens. Inside, we used warm materials and natural light to create an atmosphere that feels more like a home than a government office. Whether people are here for official matters or simply enjoying a coffee, we want them to feel at ease.

Photo: Klaus Tummers Fotografie
How did the site impact the design?

The level differences between Geleenstraat and Raadhuisplein played a crucial role in shaping our design. We saw these topographical variations as an opportunity to create a seamless connection between the existing City Hall and the new Municipal Offices. By accentuating these levels, we were able to integrate the buildings into the landscape, making the site feel more connected to the natural surroundings.

The lower level of Geleenstraat allowed us to position certain functions of the new Municipal Offices below ground, while the elevated nature of Raadhuisplein created a dynamic view of the building as it almost appears to float above the landscape. This interplay between the different levels not only gave us the chance to create a unique architectural form but also enhanced the public accessibility and experience of the space.

Photo: Ossip Architectuurfotografie
To what extent did the owner, client, or future users of the building affect the design?

From the beginning, the Municipality of Heerlen emphasized the need for a future-proof, sustainable, and welcoming building. They wanted more than just an office — they envisioned a public space that embodies transparency.

This vision directly shaped key aspects of the design. For example, the double-height public hall was created in response to their desire for a civic space that feels like a “living room” for Heerlen’s residents. Similarly, the inclusion of flexible office clusters reflects the need for adaptable workspaces that can evolve over time.

Security was also a major consideration, but the client preferred a subtle approach over visible barriers. We achieved this by integrating natural zoning elements, such as level changes, instead of rigid physical divisions.

Their commitment to sustainability resulted in an energy-neutral building featuring photovoltaic panels, green roofs, and deep window recesses to optimize daylight. Every decision was a collaboration — ensuring the building will serve Heerlen not just today, but for generations to come.

Photo: Ossip Architectuurfotografie
Were there any significant changes from initial design to completion?

At the start of the project, our goal was to restore the existing City Hall while seamlessly integrating the new Municipal Offices. However, during the renovation, we discovered asbestos within the Council Chamber walls, requiring a more extensive redesign than originally planned.

Rather than simply upgrading the technical installations, we took the opportunity to reimagine the space — enhancing its acoustics, accessibility, and flexibility. The new design now accommodates both large council meetings and smaller committee gatherings, featuring updated AV technology and an improved public gallery.

Another key refinement was in the facade detailing of the new building. Inspired by City Hall’s materiality, we designed a facade with white limewashed brick. During the process, we carefully adjusted the depth of the facade openings and window frames to achieve an optimal balance of daylight, views, and solar control.

Photo: Ossip Architectuurfotografie
How does the building relate to other projects in your office?

At Mecanoo, we always aim to create buildings that balance heritage and transformation, ensuring that they evolve with the needs of the future while respecting their history. The Heerlen City Hall reflects this approach, much like our other projects, where we preserve the essence of iconic buildings and adapted them for modern use.

For instance, at the Stavros Niarchos Foundation Library on New York's Fifth Avenue, we revitalized a historic building by creating new spaces for community engagement, preserving its legacy while inviting the public into a modern, welcoming environment. Whether in Heerlen or in New York, these spaces, aim to create a connection between the building and the community, transforming institutional spaces into places where people feel welcomed.

Sustainability also remains a key factor in our designs. Like the Eurojust Headquarters in The Hague, the Heerlen Municipal Offices incorporate green roofs, passive design strategies, and photovoltaic panels to create an energy-neutral building.

In each of these projects, the goal is the same: to design buildings that feel human, accessible, and reflective of their community's identity, while ensuring they stand the test of time.

Email interview conducted by John Hill.

Photo: Ossip Architectuurfotografie
Project: Heerlen City Hall and Municipal Offices, 2023
Location: Heerlen, The Netherlands
Client: Municipality of Heerlen
ArchitectMecanoo, Delft
  • Design Principal: Francine Houben 
  • Project Architects: Francine Houben, Luuk van Wijlick, Seger Bekkers
  • Project Manager: Luuk van Wijlick
Structural Engineer: ABT B.V.
MEP/FP Engineer: ABT B.V.
Landscape Architect: Mecanoo
Interior Designer: Mecanoo
Contractor: Aannemersbedrijf Jongen, Landgraaf
Construction Manager: Volker Wessels
Site Area: 16,000 m2
Building Area: 6,900 m2 (renovation of the existing landmark City Hall by Peutz, 1942) and 9,100 m2 (new Municipal Offices)
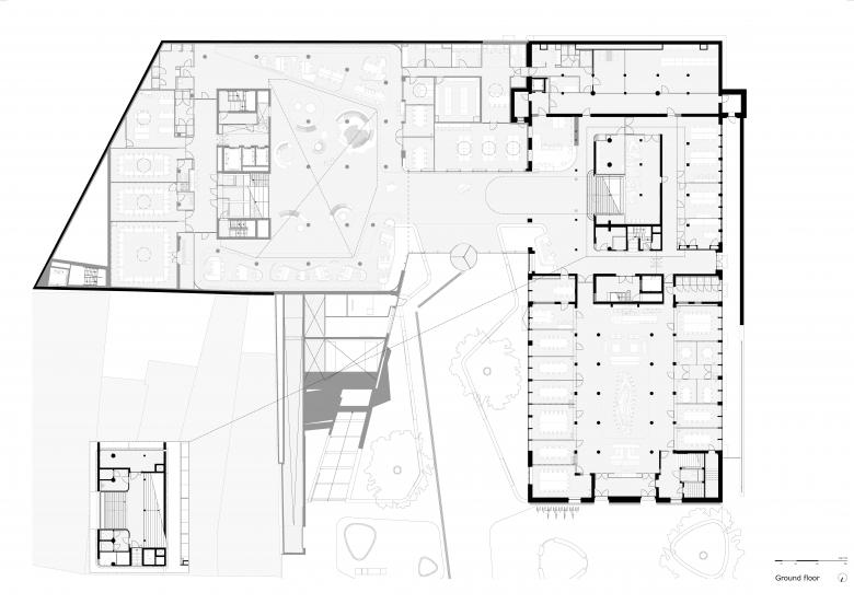
Ground Floor Plan (Drawing: Mecanoo)
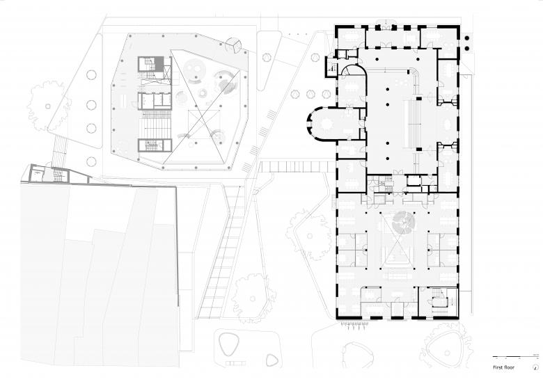
First Floor Plan (Drawing: Mecanoo)
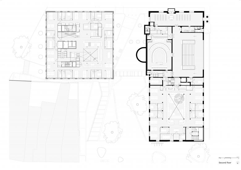
Second Floor Plan (Drawing: Mecanoo)
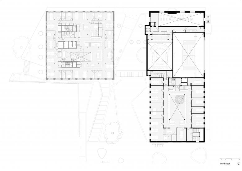
Third Floor Plan (Drawing: Mecanoo)
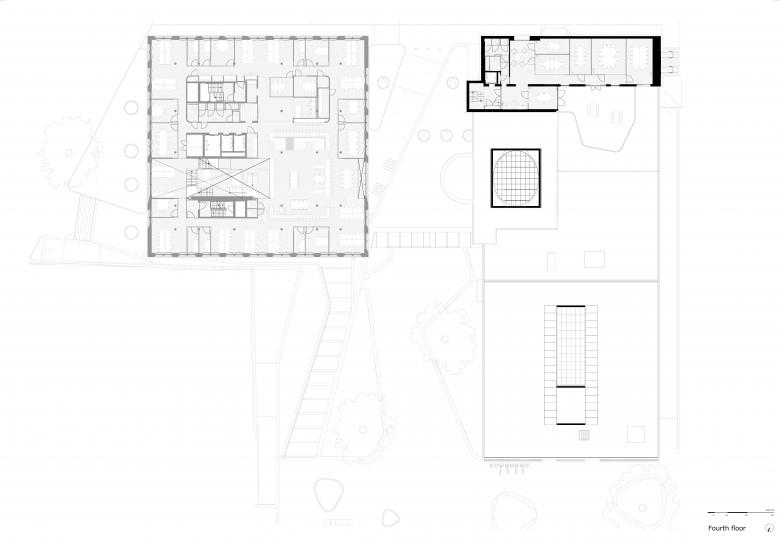
Fourth Floor Plan (Drawing: Mecanoo)
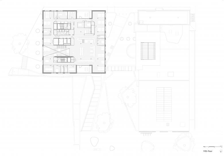
Fifth Floor Plan (Drawing: Mecanoo)
North and South Elevations (Drawing: Mecanoo)
East and West Elevations (Drawing: Mecanoo)
Building Sections (Drawing: Mecanoo)

Related articles 

Featured Project 

Atelier KI JUN KIM

House by the Wall

Other articles in this category