Cube Gallery

CLOU architects | 12. August 2020
Photo: Wuqingshan (All images courtesy of v2com)

By fusing two types of common retail design, retail street, and retail villa, CLOU provides a commercial design that hosts multi-scale, multi-type of business programs with various public social space.

Project: Cube Gallery, 2019
Location: Hangzhou, China
Client: Vanke
Architecture Design: CLOU architects
  • Design Director: Jan F. Clostermann
  • Design Team: Lin Li, Sebastian Loaiza, Mar Garrido, Ally Yan, Tiago Tavares
Construction Drawings: HSArchitects Façade
Consultant: Zhejiang Zhongnan Architecture and Façade Design
Construction Area: 21,000 sm
Photo: Wuqingshan
Multi-scale, Multi-type of Commercial Programs, Flexible Operation

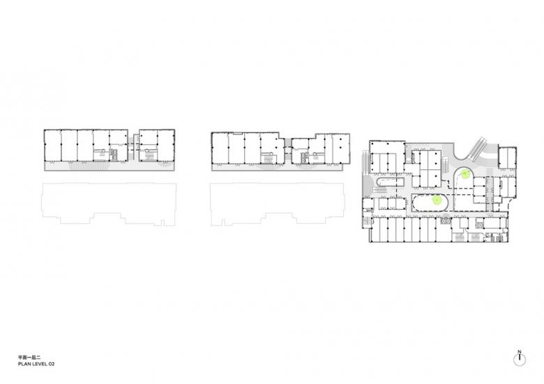
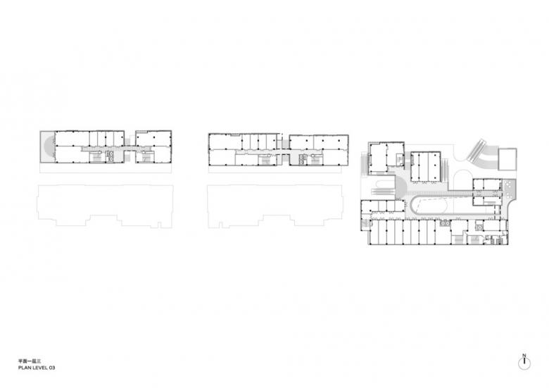
Targeting specific groups of people, it is the first attempt for Vanke and CLOU to establish a centralized retail center that caters to refined business formats. Through the assumption of the plan on the integration of retail types, shopping street and mall, CLOU decides to retain the strategy of expanding public space from indoor to outdoor, meanwhile adding the advantage of another retail type, retail villa, to finally form a commercial project that’s a fusion of retail street and retail villas. The resulting arrangement is a composition of three-story individual cubes available for anchor tenants setting on top of two levels of retail terraces for compact community shop units.

Photo: Wuqingshan

Multi-scale, multi-type of commercial programs are fully integrated into different scales of space. The lower level is suitable for small-scale retail programs that guarantee rental/sales efficiency and fulfills the need for community amenities. The higher level is suitable for businesses with large special requirements, which fulfills the local demands of large dining space, entertainment/leisure activities, and education/cultural centers. The distinct vertical divisions and various commercial spaces help drive the overall business vitality.

Photo: Wuqingshan
Multiple “ground floor”, 24-hour Public Social Space

This hybrid of two retail types not only offers the flexibility for a mix of small and large tenants but also opens up layered outdoor terraces and courtyard landscape, all together form a large area of public space. The balance between commercial operation and the quality of public social space is being realized with limited site area.

External pathways, outdoor steps, the multiple “ground floor” strategy is being applied into 24-hour outdoor circulation, which connects the main street corner plaza at ground level and outdoor terraces into a three dimensional social and cultural hub.

Photo: Wuqingshan
Façade Features

The exterior façade of the Cube Gallery adopts the structure of the glass curtain wall with white aluminum grille. It provides shelters for different commercial programs’ logistics such as dining and entertainment, also guarantees indoor natural lighting. On the other hand, the entire visual from the exterior is integrated and varied, maximizing the public visibility of the street, and providing a buffer between the vertically dense residential area and the main street.

Photo: Wuqingshan

To fully explore the possibilities of public space in retail design, and stimulate the vitality of a community social hub, Cube Gallery of Vanke Xiaoshan is an opportunity turned from a challenge and finally offers a distinctive character to the city via architectural format.

Photo: Wuqingshan

Cube Gallery was selected as the 2020 Architizer A+Awards Jury Winner in the Shopping Center Category.

Photo: Wuqingshan
Photo: Wuqingshan
Photo: Wuqingshan
Photo: Wuqingshan
Drawing: CLOU architects
Drawing: CLOU architects
Drawing: CLOU architects
Drawing: CLOU architects

Other articles in this category