MU Architecture

Estrade Residence

MU Architecture | 11. January 2017

PROJECT DETAILS

Location

St-Adolphe d'Howard, Quebec

Architects
MU Architecture

Project Team
Jean-Sébastien Herr, Charles Côté, Jean-Philippe Bellemare, Pierre-Alexandre Rhéaume, Floriane Deléglise 

Contractor
Paul Lalonde et fils

Construction
December 2015

Project Area
3,600 sf

Photos
Ulysse Lemerise Bouchard (YUL Photo)

Photo: Ulysse Lemerise Bouchard (All photographs courtesy of v2com)

It is by studying the steep and rocky topography of the place that MU Architecture decided to highlight the peculiarities of this site with an adapted and captivating architectural intervention. The first objective was to design a house in total harmony with its environment.

Photo: Ulysse Lemerise Bouchard

The singular topography of the project takes the form of a rocky crest that plunges into the lake. In order to create a discovery path, a series of animated volumes come to anchor, skirt or levitate on this unevenness. Their staggered and superimposed layout generates a multitude of terraces that embrace the site. This deployment creates a rich dialogue between architecture and the wild landscape.

Photo: Ulysse Lemerise Bouchard

The Estrade gives birth to long walls of natural stones which seem to be born from the depth of the ground. As they seem to project themselves towards the landscape, these long walls generate and protect the apartments on the ground floor while giving users direct access to the land bellow. The rocks extracted during excavation were reused in the landscaping around the house, becoming also actors of this architectural narrative.

Photo: Ulysse Lemerise Bouchard
Photo: Ulysse Lemerise Bouchard

Discreet and intriguing thanks to its blind masses; the Estrade Residence is revealed slowly, volume after volume. A wide recess under what seems to be a floating cube invites us to penetrate into the place. From the entrance, an aerial and magisterial staircase welcomes the visitor and unfolds in a vast luminous space. Lined up precisely on large openings, it connects all levels in asymmetric flights. The absence of columns in the design makes the glass railings levitate, thus giving the impression of great lightness. Minimalism and attention to detail bring to the residence a certain purity and comfort that immediately gives the tone to the project. Each corridor leads to a luminous opening and makes us discover a larger and more complex residence than at first sight. The spaces offer both conviviality and intimacy through a different atmosphere at each level.

Photo: Ulysse Lemerise Bouchard

At ground floor level, the open space is well defined and offers breathtaking views of the lake. Bathed in natural light the main floor ends with a veranda that extends the kitchen to the outside. This large volume of the ground floor stretches perpendicularly to the natural ridge so as to maximize the panorama over more than 60 feet in length. The black ash coloured kitchen and integrated furniture contrasts with the whiteness of the walls and breaks the monochromy. In addition, the double-sided fireplace located in the center of the common room accentuates the warm feel of the place. The floors, covered with natural wood as well as the terrace allows for a seamless and subtle transition from the interior to the exterior. This main volume cladded with natural cedar forms the heart of the project and brings the family together. It marks the transition between the activity of the lower spaces devoted to children and the calm of the parental suite upstairs.

Photo: Ulysse Lemerise Bouchard
Photo: Ulysse Lemerise Bouchard

At the top, a second black cedar mass dramatically overlooks the entrance and dominates the surroundings. It houses the master’s apartment, complete with a bathroom and a large walk-in.

Photo: Ulysse Lemerise Bouchard

The volumetric and vernacular aspect of the Estrade residence combined with its materiality testifies to an architectural writing that composes with its environment. This tripartite composition, spread over several levels, blends with nature following the seasons. Moreover, the articulation of its areas within its masses integrates the house softly and reduces the impact of its 3,600 square feet. Its spatial quality is due to the comfort and feeling of well-being, reflecting the image of the tranquility of the place.

Photo: Ulysse Lemerise Bouchard
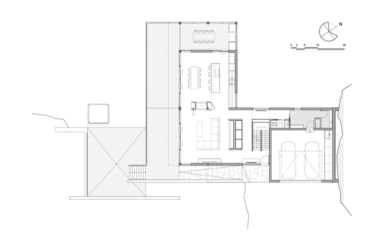
First floor plan (Drawing: MU Architecture)
Basement plan (Drawing: MU Architecture)
Section (Drawing: MU Architecture)

PROJECT DETAILS

Location

St-Adolphe d'Howard, Quebec

Architects
MU Architecture

Project Team
Jean-Sébastien Herr, Charles Côté, Jean-Philippe Bellemare, Pierre-Alexandre Rhéaume, Floriane Deléglise 

Contractor
Paul Lalonde et fils

Construction
December 2015

Project Area
3,600 sf

Photos
Ulysse Lemerise Bouchard (YUL Photo)

Other articles in this category