Anonym

Flower Cage House

Anonym | 30. August 2017
Photo: Ketsiree Wongwan

Project: Flower Cage house
Location: Bangkok, Thailand
Architect: Anonym (Phongphat Ueasangkhomset, Parnduangjai Roojnawate)
Area: 300m2
Year: 2017
Ceramic Artist: Aor Sutthiprapha
Photographs: Ketsiree Wongwan

Front facade (Photo: Ketsiree Wongwan)

On the ground floor, at the main living area, we removed most of the solid wall and introduce steel-framed glazing panels. This created extra space behind the house to meet the increased demands pulled natural light into the house. Because it's located on the north side, we only bring the light but not the heat; with extra windows we enhanced the natural ventilation. The main entrance has been adjusted to the pace of walking home and to make it more interesting.

Grid of ceramic tree (Photo: Ketsiree Wongwan)

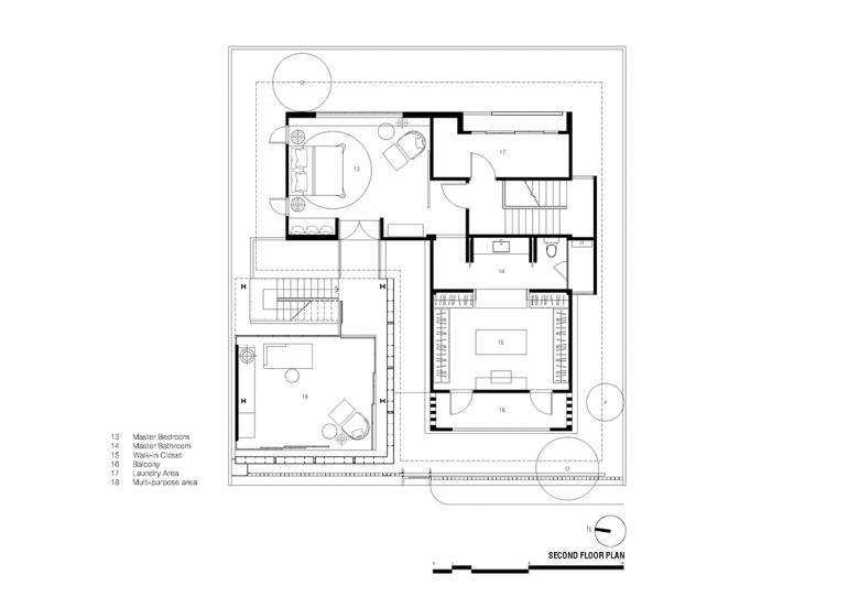
The garage area was improved by removing the old pole structure. We then built a new steel structure over it to have a multipurpose area on the second floor, which can be connected to master bedroom. Underneath, area has been refreshed by creating fish ponds. The iron stairs above the pond lead to the multi-purpose area and act as the area's main feature.

Car park area (Photo: Ketsiree Wongwan)
Steel stair (Photo: Ketsiree Wongwan)

The upstairs interior was collapsed and transformed into a penthouse. This floor is truly a private residence, consisting of a master bedroom, living area, dressing room and connecting bathroom.

Living area (Photo: Ketsiree Wongwan)
Dining area (Photo: Ketsiree Wongwan)

The new building represents the character of the owner, who is strong, energetic, yet gentle and sensitive at the same time. It is reinforced with an aggressive steel structure that still feels light. Tenderness is increased with the olive tree pots that are specifically designed by ceramic artists – the symbol of freedom placed between the space of the entire frame of 102 trees to enhance the uniqueness of this house.

Multipurpose area (Photo: Ketsiree Wongwan)
Steel stair with pond feature (Photo: Ketsiree Wongwan)
First Floor Plan (Drawing: Anonym)
Second Floor Plan (Drawing: Anonym)
Section (Drawing: Anonym)

Other articles in this category