World Building of the Week
Harudot Chonburi
Multiple A-frame structures define IDIN Architects' design for the new Harudot café in Chonburi, Thailand. Undulations in the structure result in openings that bring light to the interior but also provide space for trees to grow from inside to outside, to eventually meld building and landscape. The architects from Bangkok provided us some text and images for the project.
Harudot is a stand-alone café in Chonburi, a famous beachside town in Thailand. This café is a result of a collaboration between the Nana Coffee Roasters brand owner and the landlord who has a particular interest in plants with unique forms.
The name “Haru” translates to “Spring” in Japanese, referring to a “new beginning” and “growth,” while “Dot” symbolizes a “starting point.” The two main requirements for this café are to, firstly, design a "destination" with an interesting experience that is able to attract visitors, and, secondly, to include the landlord's identity in the design in order to signify this unique collaboration. The architect chose to focus on the concept of new beginnings and growth by including trees in the heart of the design. A bottle tree (baobab) has been placed in an inner court, where the gable form of the architecture is pulled apart to allow for its growth towards the sky, thus making it appear as if the seed of the baobab was planted long before and has grown out through the architecture as time passes.
The café brand’s identity is strongly inspired by Japanese culture, hence the architect interprets this as humble simplicity but with attention to detail. This is represented through the exterior, using three simple gable forms in black color for a subtle look that contrasts with the natural warm pine wood walls of the interior space. As visitors enter the café through the gable, the space morphs and bends with curves as it leads guests further into the café, where the space becomes more dynamic and memorable.
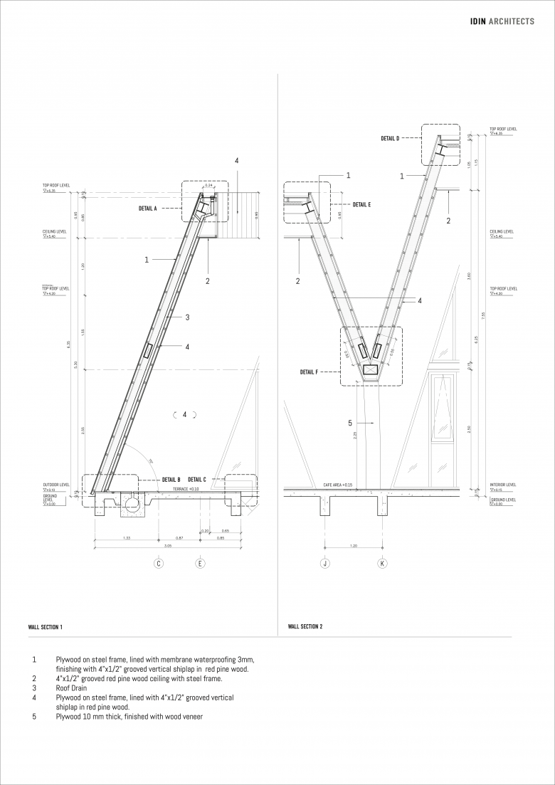
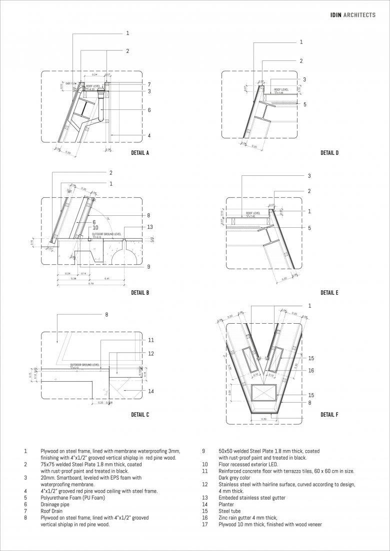
The building is separated into smaller masses to make it more human-scale, which establishes different zones such as the bar, coffee drinking zone, a lounge, a meeting room, and the restrooms. The giant gable roof form of each mass is pulled apart at certain parts, allowing the tree to penetrate through a void to the sky, creating a semi-outdoor space underneath. These voids also resulted in an interesting curved form which added movement and dynamism to the architecture. The voids allow for rainfall and sunlight to enter into the semi-outdoor court, maintaining a connection with nature despite the enclosed walls. These opening features continue into the interior space, where instead of actual voids, they are enclosed with Barrisol stretch ceilings that help diffuse the lighting inside, creating a warm, softly lit space. The Barrisol ceiling also echoes with the actual open voids in the courtyard, visually and conceptually connecting both spaces into one entirety.
The seating arrangement is designed to be continuous like a ribbon, wrapping around the interior space to create continuity, whereas the height of the counters differ to suit the different functions and uses. The outdoor seating is made from resin, mixed with coffee grounds, rice, and leaves to tie into the coffee theme.
The attention to detail extends to the graphic elements, with custom-designed fonts and signage which have been inspired by circular dots and the spring season. The architect specifically designed separations in the terrazzo floor to be circular, with insertions of embedded quotes and words that lead to different functions in the cafe. Another playful element includes the flower petals pattern in the terrazzo floor, radiating outward as if they have fallen from the actual trees. The architect formed a playful connection through this interplay between the different dimensions, resulting in another hidden gem for the customers to unveil.
Location: Chonburi, Thailand
Architect & Interior Designer: IDIN Architects, Bangkok
Building Area: 475 m2


















