Waechter Architecture
Garden House
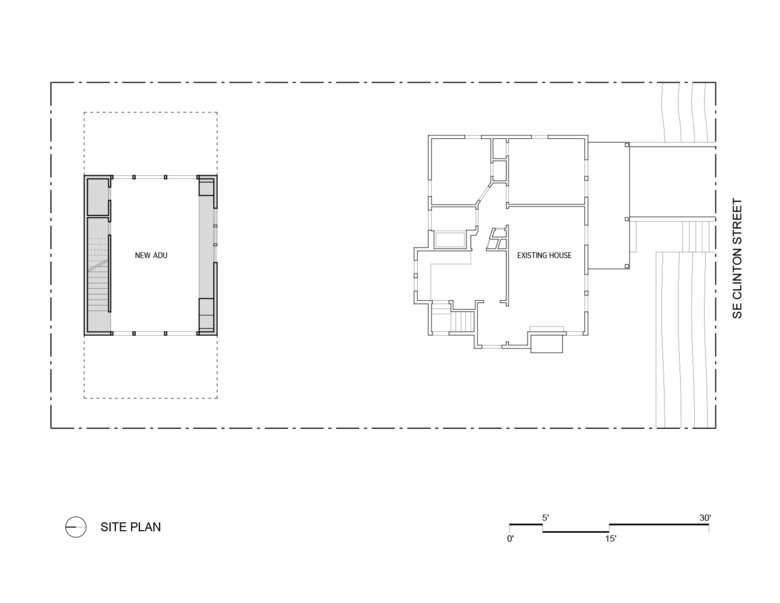
For this house-in-a-backyard, otherwise known as an Accessory Dwelling Unit (ADU), Waechter Architecture took Portland’s increased density movement and used it as an opportunity to explore housing iconoiconography, sculptural forms, dual-purpose elements, and explore how to massage small space regulations in order to maximize useable space.
They call it Garden House.
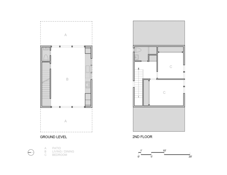
Garden House’s exaggerated eaves cantilever ten feet on both sides of the house creating protected outdoor spaces below and two generous ceiling height bedrooms (and a second bathroom) upstairs – all while staying within Portland’s maximum allowable height for ADU’s. Emphasizing the sculptural quality of the house, these gutter-less eaves are also detailed with formed metal to attain a “knife-edge” profile. Rain falls from this drip edge to a rock garden below.
The client’s existing home is a 1940s Cape Cod style house. The City of Portland requires that ADU’s match the existing house details such as the roof pitch, window proportions and siding material. The design of Garden House matches these, but re-imagines them into a unique form, as opposed to simply being a copy. “Our client wanted to build a new 800 square foot dwelling in their backyard. The idea was to build a surprise… a sculpture… an object in the landscape,” says Ben Waechter, Principal of Waechter Architecture. This new structure has the iconic silhouette form of a “house” yet is abstracted into a distilled and pure sculptural form.
Garden House materials include regionally procured maple plywood paneling and cabinets on the ground level. Support spaces for this ADU are made up of a stairway and half bath on the north side and a kitchen on the south, bookending the living room.
Related articles
-
The Three-Body Problem: Trapped in a Wave Sandwich
Eduard Kögel, Scenic Architecture Office | 13.04.2026 -
-
-
Spaces for Cars – And for People
Kennedy & Violich Architecture, Ltd. (KVA) | 02.03.2026









