dRMM Architects

Hastings Pier

dRMM Architects | 1. November 2017
Photo: Alex de Rijke

Project: Hastings Pier
Location: Hastings & St. Leonards, East Sussex, England
Client: Hastings Pier Charity
Architect: dRMM
Cost Consultant: PT Projects
Structural Engineer: Ramboll
Marine & Heritage Engineer: Ramboll
Service Engineer: Ramboll
CDM Coordinator: PT Projects
Joinery Company: TCUK Construction
Structural CLT Supplier: KLH
FSC Timber Supplier: Ecochoice
Furniture: dRMM and Hastings & Bexhill Wood Recycling

Before (Photo: Alex de Rijke)
After (Photo: James Robertshaw)

The Heritage Lottery Fund enabled the repairs to the damage below deck – a combined result of destruction from fire, sea erosion and storm damage. A small portion of the grant was used to convert the single remaining derelict Victorian Pavilion on the pier into a revitalised, open plan, fully glazed and extended version of the past.

Photo: Alex de Rijke

dRMM’s conceptual basis for the redesign of the pier was not to create the predictable unnecessary hero building at the end, but instead providing open space to allow universal access. The focus was on creating a well-serviced, strong platform that could support a variety of events and uses from circuses to music events, fishing to markets. Different users can bring their own architecture to plug in. Small local trading stalls in the form of classic beach huts have already arrived, setting the example for an endless range of future possibilities.

Photo: Alex de Rijke

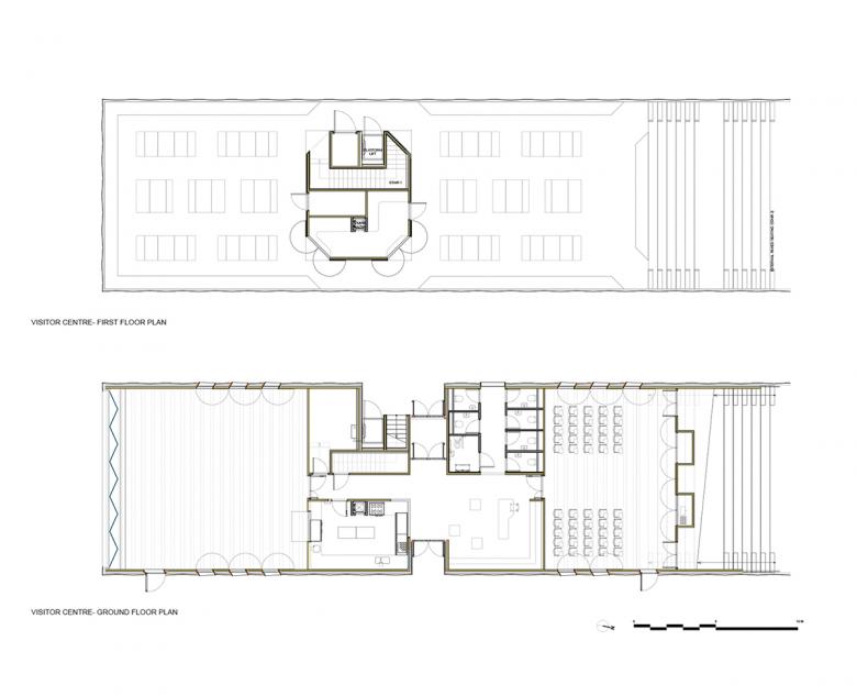
Creative use of timber is at the heart of the transformed Pier design. The new visitor centre is a 100% cross-laminated timber structure, clad in the limited timber decking that survived the 2010 fire. This reclaimed timber was also used to make the furniture on the deck, designed by dRMM and Hastings & Bexhill Wood Recycling Ltd as part of a local employment initiative. The visitor centre has been designed as an adaptable space for indoor events, exhibitions and educational activities, with an elevated belvedere on top. A glass walled, open-air ‘room’ looks out to the vast views over the Pier and beyond toward Europe, then back to the town and coast.

Photo: Alex de Rijke

The Pier is an extension of the Promenade from which it projects – a public, open space. The experience of being surrounded by sea and ‘walking on water’ is heightened by the optical game set up by the louvered balustrade design and the quality of the timber deck. This is the first phase for the regeneration of Hastings Pier. Future phases include plans for a large, mobile, timber canopy that traverses the entire length of the 280m pier. In its current format, the new Pier is a catalyst for urban regeneration. It offers flexibility, material and functional sustainability, and an uninterrupted vista of the natural and built surroundings of the special seaside town of Hastings.

Photo: Alex de Rijke

Hastings Pier is the winner of the 2017 RIBA Stirling Prize.

Photo: Alex de Rijke
Photo: Alex de Rijke
Site Plan (Drawing © dRMM Architects)
Pavilion Plan and Elevations (Drawing © dRMM Architects)
Visitor Centre Floor Plans (Drawing © dRMM Architects)
Visitor Centre Elevations (Drawing © dRMM Architects)
Visitor Centre Elevations (Drawing © dRMM Architects)

Other articles in this category