SIMARD Architecture
Hemmingford House
In the vast rural fields south of Montreal, a new residence takes root. Like a fieldstone unveiled amongst the furrows of a ploughed field, a stratified monolith of slate emerges from the earth. Eroded, sculpted and fragmented by time and the forces of nature, this mineral formation becomes the pedestal upon which new life is anchored.
Situated in Hemmingford, southern Quebec, this distinctly modern residence unfolds onto the surrounding rural landscape and honours the many features of its rich agricultural past: expansive fields and orchards; weathered fences; an old barn clad in wood; and the ruins of the original farmhouse’s foundations. All these contextual cues influenced the site layout and architecture of this private residence designed for a couple who left their home in the city for a life on the country. The sun’s course throughout the changing seasons, as well as precise views over the fields, guided the home’s orientation and site location, while the old fieldstone foundation walls of the former farmhouse are preserved as artefacts to welcome the visitor and lead them to the main entrance while bearing witness to the memory of place. The house unfolds to the surrounding landscape.
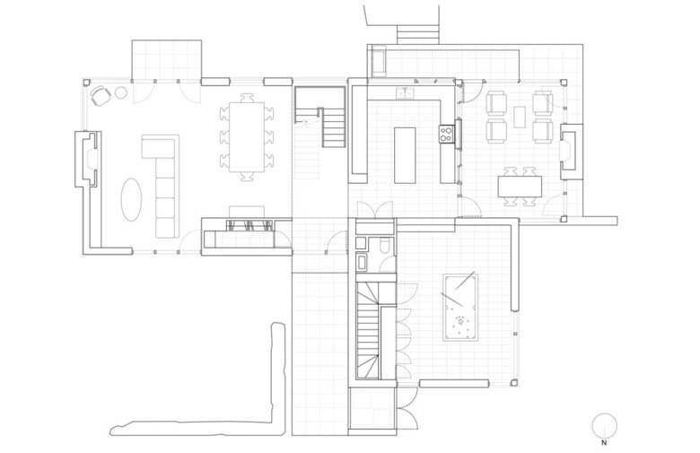
This 3,500-square-foot house features interior spaces that are open, fluid and awash in natural light. The residence is composed of two distinct two-storey volumes on either side of a double-height space containing the main entrance, a monumental stair and a glass-floored footbridge on the second level. With double-height floor-to-ceiling windows at both extremities, this space offers expansive views over the entire property. The composite effect of this threshold is a two-zoned space balancing openness and privacy. On the ground floor, on one side of the stairs, are the open-plan living and dining areas, both enjoying targeted views of the surrounding landscape. On the other side of the stairs, the kitchen leads to the veranda and game room just a few steps higher. A series of sliding windows between the kitchen and veranda open allowing the kitchen counter to transform into an island shared between the interior kitchen and the veranda.
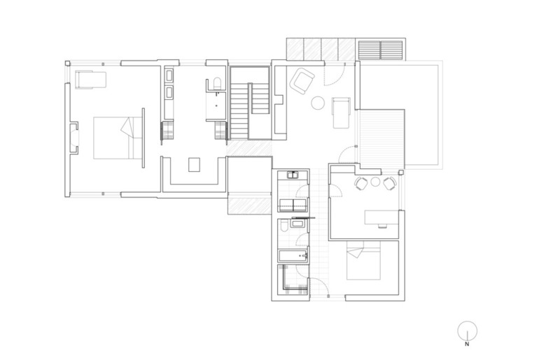
On the second level, a glass floor traverses the double-height entrance hall at the top of the stairs. This bridge ensures a transition between the second level’s more private side containing the master suite (bedroom, walk-in closet and open bathroom) and the more communal spaces on the other side (library, office and guest suite).
The exterior cladding of the house is composed of slate sourced from a nearby quarry in the Eastern Townships. As opposed to a typical natural stone cladding of thin slabs fixed to an exterior wall structure, the slate is cut into blocks of varying length and set in strata like bricks. A custom technical detail was developed to extend this cladding to exterior ground level in order to dissimulate the crown of the concrete foundation walls. Like a stone heaved from the frozen earth, the house rises from the field. This natural slate also covers the floors of the entrance, veranda and terrace. This continuity of materials and surfaces blurs the boundary between the residence and its environment perceptually extending the interior spaces outwards.
Echoing the old barn, wooden cedar planks are employed as a secondary cladding on the house. This material is left untreated and, in the same way as the adjacent barn, will weather and develop its own patina. With the passing of time, the house will become increasingly fused with its surrounding environment.
PROJECT DETAILS
Location
Hemmingford, Quebec, Canada
Project Completion
April 2016
Architect
SIMARD architecture
Project Team
Sylvain r. Simard, Gregory Fages, Jason Goorts and Benoit Jodoin-Fontaine
Text
Jason Goorts
Photos
Stéphane Brügger
Related articles
-
The Three-Body Problem: Trapped in a Wave Sandwich
Eduard Kögel, Scenic Architecture Office | 13.04.2026 -
-
-
Spaces for Cars – And for People
Kennedy & Violich Architecture, Ltd. (KVA) | 02.03.2026










