Studio Prototype

House W

Studio Prototype | 21. November 2014
Photo: Jeroen Musch (All images courtesy of Studio Prototype)
Photo: Jeroen Musch

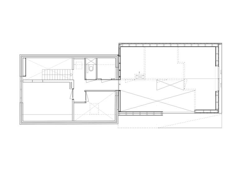
The new volume formulates a contemporary answer to the existing house. The volumes are slightly shifted from each other, creating a spatial play outside and a framed view towards the street side inside. The new volume functions as a closed mass on the street side, while on the garden-side the dwelling opens up by means of a spacious L-shaped veranda. A large window, with two sliding doors in it, provides the connection with the garden. The chimney is a prominent part of the roof’s shape. As such it has been reinterpreted, and is integrated with both a roof light and a light shaft in one sculptural object.

Photo: Jeroen Musch

The functions flow seamlessly from the old to the new volume. The existing volume is updated by making several functional interventions. All spaces in the new volume are situated around a spacious void. A maximum amount of daylight is permitted here, ensuring an optimal experience of the sculptural space. 

Model views

The façade concept of House W consists of diagonal directions and is translated to a timber cladding of western red cedar battens. They are as slender as possible, creating tension with the heavy brick of the existing dwelling. Aluminum profiles are used to attain subtle transitions between materials and spaces. The diagonal pattern is opened up on several strategic positions, working as a privacy screen.

Photo: Jeroen Musch

The architect has taken the role of master builder in the execution phase to guarantee the quality of the special detailing. The house is part of the Dutch self-build-initiative; in collaboration with the architect the inhabitants themselves finished the interior.

Photo: Jeroen Musch
Photo: Jeroen Musch
Photo: Jeroen Musch

Project Facts

Location: Duiven
Client: private
Function: house
Period: 2010-2013
Size: 270 m2
Design team: Jeroen Spee, Jeroen Steenvoorden
Project team: Gijs van Suijlichem, Titus Lammertse, Jan Paulus Hoogterp, Jan van der Schaaf

Level 00 Plan
Level 01 Plan
Section

Other articles in this category