Fox in the Snow Studio
I Am Here Before the Cities Come
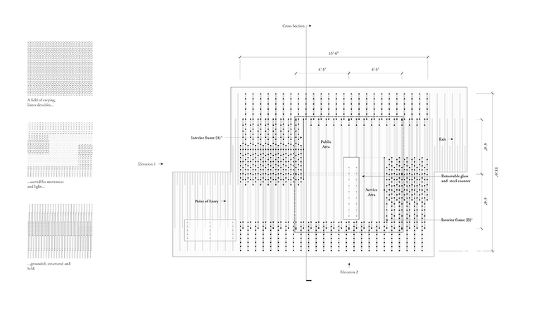
For Chicago’s first ever architecture biennial, Fox in the Snow Studio in collaboration with artist Ben Butler proposed a kiosk whose design began by first looking to the prairie for inspiration.
The prairie ecosystem was formed by massive sheets of glacial ice which melted and scraped the earth at the end of the last ice age. Wind-swept and open to the weathering effects of all seasons, it has historically been a harsh place. Yet it remains an ideal habitat for the proliferation of tall grasses, whose density, scale and texture weigh proportionally on the experience of walking through this unique landscape.
Next we turned to the city. Our first thoughts were about steel and glass; the quintessential building elements of Chicago’s urban architecture. The repetition of steel in particular throughout the city began to resonate with the endless sea of grass we had observed in the prairie. Our project took shape under a simple premise. We wanted to engage with the basic materials and building practices that have shaped Chicago’s modern identity to create a space whose quality of light and air would be at home on the prairie.
As the seasons change, so might the activities and purpose of our light-filled structure. We can envision this as a hub of activity during the summer months on the lakefront. The steel frames of the kiosk serve as an adaptable armature for creativity in the hands of any chosen vendor. During the winter months, with the space still open to passers-by, the kiosk can bring the warm glow and dappled sun light of the prairie to an otherwise icy season.
In the end, we know that architecture can only manifest as something man-made; something truly other than the landscape. Yet we hope that we have nonetheless captured something essential about the landscape through architecture. At the heart of our project is the aspiration to construct a space where the people of Chicago might momentarily be transported to a space outside the city yet still within it.
PROJECT FACTS
Project Title: I Am Here Before the Cities Come
Office: Fox in the Snow Studio
Project Team: Lulu Loquidis, Daniel Luis Martinez, and Ben Butler
Brief: Chicago Architecture Biennial Lakefront Kiosk Competition, 2015
Proposed Budget: $75,000









