Jaurès Recreation Center

Graal | 28. February 2020
Photo © Schnepp Renou
Project: Jaurès Recreation Center, 2019
Location: Athis-Mons, France
Client: Town of Athis-Mons
Architect: Graal
M&E Engineer: Sunsquare
Structure: Astute béton
Area: 610 m²
Photo © Schnepp Renou

The zone is characterized by its geography, a very fragile alluvial plain between the Seine and the Orge, which was ideal for locating important railway infrastructure and urban development stretching lengthwise form the southwest to the northeast. This area is subject to a number of rights of way exposing it to important nuisances. Thus, the Jaurès school complex plays the strategic urban role of liaison with the rest of the neighborhood. The school complex stands in a residential area comprised of a number of period buildings of varying typologies. The urban challenges of the project were to create a pleasant entry opening onto the pedestrian area and the church of Notre-Dame de la Voie as well as to undertake an urban and architectural recomposition in which the recreation center plays the role of connecter between the different scales.

Photo © Schnepp Renou

Imagined as an element embedded in this fluvial zone, the building stands on a unifying mineral platform approximately one meter in height, which blocks the view of the children from the street while still enabling the interior spaces to open broadly to the outside. Thus, by protecting the plot from high water, the platform transforms the constraints of this site on the floodplain into project opportunities.

Photo © Schnepp Renou

The protective façade of the facility where it borders the railways extends for a length of 40 meters, ensuring a powerful presence in the area. The integrative approach implemented here considered the nearby Seine as a genuine material of the project. The flowing water and the reflections inspired the project designers to create a changing and harmonious envelop. The rhythmic and kinetic façade expresses the different temporalities of the program while dialoguing with the activities of the nearby railways. Composed of curving concrete veils colored a pinkish gray, the façade, though massive, vibrates and interacts with the light, one’s point of view and the comings and goings of users making this a welcoming and protective building.

Photo © Schnepp Renou

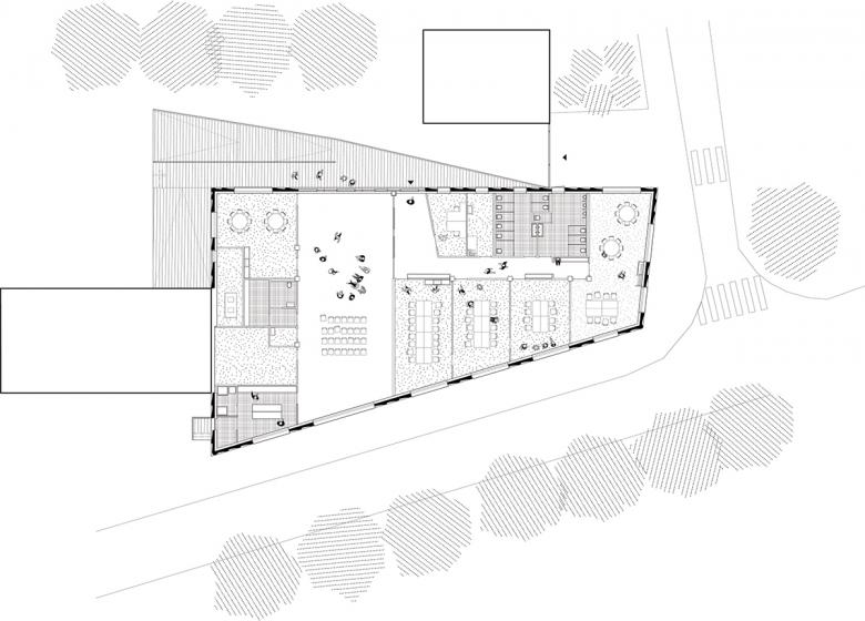
Users access the recreation center via a ramp hollowed out of its stained concrete base. This exterior pathway leads to the lobby, which serves as a threshold and reception area for parents. To the right, the "big hall" is a multipurpose room. The floor area of 157 m² extends across the entire width of the building with a height of 4.70 meters and broad glazed bays creating a dialogue between the area of the courtyard and the railways. Designed for flexibility, this central space is easily adapted to all sorts of extra-curricular activities.

Photo © Schnepp Renou

The workshops are intentionally simple spaces, designed to host a wide range of activities. Conceived with the aim of easy maintenance and upkeep, these rooms are as basic as possible to reduce finishing and fitting out costs. A training kitchen is placed in direct contact with the big hall and with the exterior to facilitate waste management. All these rooms have large glazed bays to ensure optimal natural light and additional fresh air.

Photo © Schnepp Renou

The project was designed as a “basic facility.” Thus, far from being complex and costly, the Jaurès recreation center strove to focus on the economics of the project, carrying out an in-depth survey of the area and local uses to be able to offer an energy efficient, adaptable and sustainable facility to the town of Athis-Mons.

Photo © Schnepp Renou
Photo © Schnepp Renou
Drawing: Graal
Drawing: Graal
Drawing: Graal
Drawing: Graal
Drawing: Graal

Related articles 

Other articles in this category