Woodhouse Tinucci Architects

Kids Science Labs

Woodhouse Tinucci Architects | 30. March 2015
Photo: Mike Schwartz

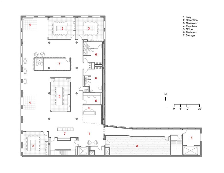
The owners sought to create spaces that facilitated their teaching mission of providing children with an exciting, hands-on curriculum.  Starting with nothing but a 7,900 sf loft, renowned architects Andy Tinucci and David Woodhouse of Woodhouse Tinucci Architects brought this vision to life, developing a plan that made the classrooms and architecture active participants in the learning process and in turn creating a positive environment to enhance learning opportunities.

By constructing select walls out of plywood for fastening tools for lessons and covering another with blackboard paint for drawing and asking questions, they created multi-functional tools for scientific exploration, bringing the surroundings to life and redefining the learning process.  Additional features include the installation of clear, glass walls to extend the feel of the classrooms, felt panels on the ceilings to offer better acoustics and wide garage doors for easy alteration of spaces. The highlight of the project, the Acceleration Room, is an elongated, wood-lined room where the kids can let go, run, and experiment to their heart’s desire.

Tinucci and Woodhouse’s combined years of expertise in architecture and space planning allowed for enhanced learning experiences and creation of a new avenue through which to learn. Together, they created new capabilities that empower the children of Kids Science Labs to engage with their surroundings, open their minds and reach their maximum potential.

PROJECT DATA

Client: Kids Science Labs
Area/Budget: 7,900sf / $450,000
Completed: 2013
Scope: 7,900sf renovation for second learning center offering hands-on science, problem solving, and creative design classes for kids 2-12 to explore the principles of science
Architect: Woodhouse Tinucci Architects
Project Team: David Woodhouse, Andy Tinucci (project architect), Ed Blumer, Nathan Bowman, Shaun Danielson, Brian Foote
Architect of Record: Farr Associates
MEP: CCJM
General Contractor: Friedler Construction
Photographer: Mike Schwartz
Recognition: 2014 AIA Chicago Interior Architecture Award

Other articles in this category