Bourgeois / Lechasseur architects
KL House
At our first meeting, the clients spoke of simplicity and an open view of the woods. They wanted a house that "looks like a house." They preferred a more traditional style, reminiscent of East Coast homes by the sea, standing like cedar-shingled "lighthouses," standing strong against the storms.
These houses seem to rise up to view the horizon. From the beginning, we could see that they were open to contemporaneity and boldness, even though they wished to retain the traditional country style of North Hatley's early homes. This duality between the traditional and the modern was our guide throughout the design.
When we first visited the property, we were charmed by the dense, leafy forest and deer close by. The property is bordered by a stream, and the sound of the water is both soothing and inspiring. It is located at the end of a mountainous domain, close to the heart of the village of North Hatley. The winding ‘’Méandres’’ road leads to the property, and the project is nestled in one of its sharp curves.
Upon approach, the house has a strong presence, but its build and size give it a traditional look. Wandering through the property, the cedar seems to step back, allowing the indoors to mingle with the outdoors. It is almost like a boat that has come to rest on the banks of a bend in the river. The house is nestled into the side of the mountain, as if it slid, stopping just before the chasm. The main floor literally opens into the forest, and the upper level seems to float above it. The screened-in room, a continuation of the glass wall, reaches toward the forest, drawing the stream closer.
The KL house's natural cedar siding and tin roof are reminiscent of some of North Hatley's country homes. However, its elongated and streamlined shape contrasts subtly with the older, opulent homes on the shore of the lake. The house, and its adjacent garage, have a simple and well-assumed volume and a slanted roof with a small overhang, but this simplicity is destabilized by subtle shaping. The overhanging upper level covers the porch and terrace, protecting the windowed rooms on the main floor from the summer heat.
The absence of mouldings highlights the authentic character of the natural cedar shingles. The trimmed area's smooth cedar planks provide a contrast to the textured shingles. In both cases, cedar shingles were chosen for their orange hue, which adds a touch of warmth to the project. Bold, wide openings along the siding frame the inner scenery.
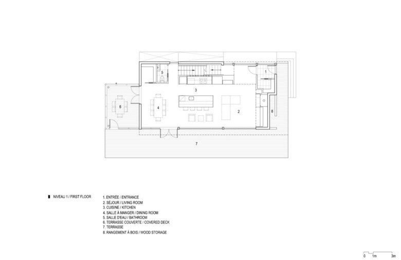
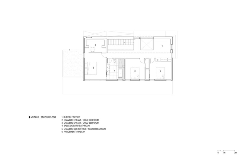
The entrance hall leads to a bright transition area that opens up vertically, providing a glimpse of the upper level and its cedar ceiling. The living areas flow through an open, longitudinal space that offers a constant view of the forest. Dark trims around the windows enliven the home's long facade. This linear movement continues and folds indoors to house the living room. A change in shape creates the library and the foyer. This darker area contrasts nicely with the white walls and lustrous furniture. The wood floors add a soft quality to the project. The open staircase invites the occupants to climb up. The upstairs walls are covered in cedar slats. An office area and long, low storage furnish the space. The bedrooms and bathroom are simple and discrete, each one providing a partial view of the landscape. A very large window in the master bedroom offers a glimpse of the lake through the trees.
In response to the clients' wishes, the KL house looks "like a house" but also sets itself apart, in all simplicity, by re-interpreting the region's early country homes. It also has a friendly maritime feel, far from the Atlantic.
PROJECT CREDITS
Architects
Bourgeois / Lechasseur Architects
General Contractor
Josée Lemire
Year of construction
2015
Location
North Hatley, Québec
Photos
Adrien Williams
Related articles
-
-
Allied Music Centre/Massey Hall Renovation and Expansion
KPMB Architects | 01.12.2025 -









