World Building of the Week

Allied Music Centre/Massey Hall Renovation and Expansion

KPMB Architects | 1. December 2025
Photo: Tom Arban
What makes this project unique?

The Allied Music Centre and Massey Hall revitalization is unique for its unprecedented integration of heritage restoration, contemporary performance innovation, and civic accessibility within a single cultural project. Rather than replacing the historic 1894 concert hall, the project undertook a conservation-first strategy that meticulously restored defining architectural features such as the Moorish Revival auditorium, Art Deco lobby, Palladian exterior, and nearly 100 hand-painted stained-glass windows while simultaneously transforming the venue into a fully modern, flexible, and barrier-free performance hub.

The project introduces a bold seven-storey addition that expands the institution into a unified 124,000-square-foot cultural campus. This includes the creation of new flexible venues such as the 500-person TD Music Hall and a permanent basement stage that supports emerging and diverse artists. The suspended glass passerelles—structural walkways cantilevered over public streets and alleys—are an architectural first for this context, providing barrier-free access to the historic Hall’s upper levels for the first time in its history.

Photo: Tom Arban

A major innovation lies in the integration of contemporary performance technology and infrastructure without compromising the heritage character. This includes modern theatrical lighting and audio-visual systems, acoustically tuned interiors, flexible automated seating that converts the orchestra level from traditional seating to standing room, and materials selected for their acoustic, visual, and tactile qualities.

The project is also unique in its sustainability approach, demonstrating that revitalization can outperform new construction. Through adaptive reuse, durable materials, and connection to a district energy system operating without natural gas, the project significantly reduces carbon impact while extending the life of the building by at least 40 years.

Ultimately, the Allied Music Centre stands apart as a rare example of architectural innovation that honours legacy while redefining the future of urban cultural infrastructure. It is at once restoration and reinvention, preserving Toronto’s most storied music hall while transforming it into an inclusive, world-class performance ecosystem that doubles annual programming capacity and strengthens the cultural life of the city.

Photo: Tom Arban
What is the inspiration behind the design of the building?

The design of the Allied Music Centre and the revitalization of Massey Hall is inspired by a deep respect for the building’s cultural legacy and architectural heritage, paired with a desire to support the evolving needs of contemporary performance. The project draws inspiration from Massey Hall’s historic character—its Moorish-inspired auditorium, Art Deco lobby, and original Palladian exterior—using a conservation-first approach to restore and celebrate the craftsmanship, materiality, and artistry embedded in the 1894 building. Nearly 100 stained-glass windows, depicting composers such as Beethoven and Mozart, inspired a renewed emphasis on natural light and historic detail.

At the same time, the design is driven by the ambition to create a future-focused, inclusive, and flexible music campus. This vision inspired the integration of a contemporary seven-storey addition and suspended glass passerelles that physically and symbolically bridge past and future, connecting the historic hall with new venues and amenities. Material choices, from warm white oak millwork to brass detailing and acoustically tuned wall panels, were inspired by the sensory qualities of performance spaces—how surfaces modulate sound, reflect light, and shape atmosphere. The design was also influenced by the desire to democratize access to music. This inspired major accessibility improvements and flexible performance environments, such as the retractable seating system that transforms the orchestra level for standing events and the new TD Music Hall, which supports emerging artists and diverse programming.

Photo: Scott Norsworthy
How did the site impact the design?

The design was fundamentally shaped by the constraints and opportunities of its tight urban site and the presence of an iconic heritage structure. Located in the dense fabric of downtown Toronto, the project required carefully integrating new program elements without compromising the historic 1894 Massey Hall building. The limited footprint and surrounding built context inspired the creation of a vertical, seven-storey addition to expand capacity while preserving the original structure and its street presence.

The constrained site also led to a highly innovative circulation strategy. The design introduces suspended glass passerelles that cantilever over the east sidewalk and the west alleyway, providing barrier-free access to upper levels that were previously only reachable by stairs. These elevated walkways were a direct response to the site’s physical limitations, enabling essential new connections without altering the heritage fabric or occupying ground-level public space.

Existing infrastructure and heritage requirements significantly guided the placement of new functional spaces, mechanical systems, and acoustic interventions, demanding precision to fit modern performance technology and flexible seating systems within the historic envelope. Material choices and exterior expression of the addition were also influenced by the need to respect and complement the original Palladian façade while clearly distinguishing between old and new.

Photo: Scott Norsworthy
To what extent did the owner, client, or future users of the building affect the design?

The owner, client, and future users played a defining role in shaping the design of the Allied Music Centre and the revitalization of Massey Hall. From the outset, their priorities centered on preserving the cultural legacy of one of Canada’s most important performance venues while transforming it into a contemporary, flexible, and fully accessible home for artists and audiences. This vision drove the project’s conservation-first strategy, ensuring that the design honoured Massey Hall’s historic architecture—including the restoration of its Moorish-inspired auditorium, Art Deco lobby, and stained-glass windows—while modernizing infrastructure to support the needs of present and future performers.

A deep commitment to accessibility and inclusivity from the client fundamentally shaped the form of the project. The introduction of suspended glass passerelles and reconfigured circulation routes was directly in response to stakeholder requirements to eliminate barriers and provide equitable access to all levels of the Hall for the first time in its history.

Photo: Salina Kassam

Future user needs—artists, production teams, and audiences—guided program expansion, including the creation of new flexible venues such as the 500-person TD Music Hall and the permanent stage in the basement bar. Input from performers and production partners informed acoustically tuned interiors, exposed technical ceilings, and flexible seating systems that allow the orchestra level to shift between seated and standing formats, supporting a wider range of programming.

The client’s dedication to sustaining the long-term viability of the arts also influenced decisions related to operational efficiency, adaptability, and financial sustainability. This included designing performance spaces and back-of-house areas that can evolve with industry needs, selecting durable materials, and integrating advanced infrastructure and district energy systems to ensure long-term resilience.

Photo: Scott Norsworthy
Were there any significant changes from initial design to completion?

Yes. Over the course of the project’s multi-phase planning, design, and construction process, several significant changes were made to respond to evolving client needs, technical requirements, and opportunities discovered during the restoration. The scope expanded beyond a restoration of the historic Massey Hall to include the creation of the new Allied Music Centre—a seven-storey contemporary addition with new performance venues and amenities. This shift transformed the project from a heritage conservation initiative into a major cultural infrastructure expansion.

The design evolution was also heavily influenced by accessibility goals. Originally, circulation improvements were focused within the existing building, but as the design progressed, the team introduced suspended glass passerelles that cantilever over adjacent streets and alleyways, providing barrier-free access to the upper levels of the Hall. These connections were a major design change that emerged from deeper accessibility commitments and the spatial constraints of the tight urban site.

Photo: Salina Kassam

Programming needs also grew during development. The new TD Music Hall, a 500-person flexible venue, was added as part of the contemporary tower to support emerging artists and diversified events, and the orchestra-level seating system was redesigned to incorporate automated retractable seating that enables standing-room shows—dramatically increasing versatility and annual performance capacity.

During construction, the extent of heritage restoration also expanded. Nearly 100 original stained-glass windows were removed, restored, and reinstalled once their historical significance and craft value were fully understood. Similarly, original wood seating and architectural finishes were restored rather than replaced after conservation opportunities became clearer.

Email interview conducted by John Hill.

Photo: Scott Norsworthy
Project: Allied Music Centre/Massey Hall Renovation and Expansion
Location: Toronto, ON, Canada
Client: The Corporation of Massey Hall and Roy Thomson Hall
ArchitectKPMB Architects, Toronto
  • Design Principals: Marianne McKenna (partner-in-charge), Chris Couse (founding principal), Graham Baxter (senior associate, phase 2b), Matthew Wilson (senior associate, phase 2b + 2a)
  • Project Team: Carolyn Lee (senior associate, interiors), Clementine Chang (associate, project architect, phase 2b), Nic Green (associate, phase 1 + 2b), Klaudia Lengyel (interiors, phases 2a, 2b), Meika McCunn (associate, phase 1 + 2b), Andrea Macaroun (associate, phase 1), Ramin Yamin, Ping Pai, Victor Garzon, David Poloway, Mahtab Gashghaii, Geoffrey Turnbull, Nonna Shabanova, Arian Hussainzada, Zachariah Glennon, Danielle Whitely, Gill Baldwin, Ramon Janer, Shivathmikha Kumar, Ali Salama, Amal Dirie, Olivia Di Felice, Andrew Barat, Victoria Ngai, Charmaine Candelario Lazaga, Donia Barai
Heritage Consultant: GBCA Architects
Theatre: Charcoalblue
Acoustics: Sound Space Vision
Structural: Entuitive 
Mechanical: The Mitchell Partnership Inc.
Civil: WSP
Electrical/Security/IT: Crossey Engineering Ltd.
Building Envelope: Entuitive
Façade Access Systems: Pro-Bel
Architectural Lighting: Martin Conboy Lighting Design
A/V: Engineering Harmonics Inc.
Signage & Graphics: Bhandari & Plater Inc. 
Landscape Architect: NAK Design Group
Code/Fire and Life Safety: LRI
Food Services: Anjinnov Management
Transportation: BA Consulting Group Ltd.
Project Management + Cost Consultant: Turner & Townsend
Exhibit Design: Reich & Petch
Hardware: Total Opening Consultants
Building Area: 16,000 sf / 1,486 m² (Phase 1); 124,000 sf / 11,520 m² (Phases 2a, 2b)
 
Photo: Salina Kassam

Important Manufacturers / Products:

  • Wood flooring stage in main hall, Centuries and TD Tower event spaces – Barwood Flooring
  • Theater carpet – Ege Carpets
  • Theatre seating – Ducharme
  • Theater curtains – Joel Theatrical Rigging
  • Main floor resilient flooring – Polyfloor
  • Acoustical Plaster – Fellert
  • Stained glass window refurbishment – EGD glass studio
  • Acoustical panels – Eomac
  • Porcelain and ceramic tile – Holten Impex, Olympia tile, Stonetile
  • Terrazo work – Castlewall
  • Custom lighting – Nelson Garrett 
Photo: Salina Kassam
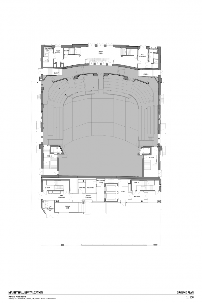
Ground Floor Plan (Drawing: KPMB)
Stage Plan (Drawing: KPMB)
Level 2 Plan (Drawing: KPMB)
Level 3 Plan (Drawing: KPMB)
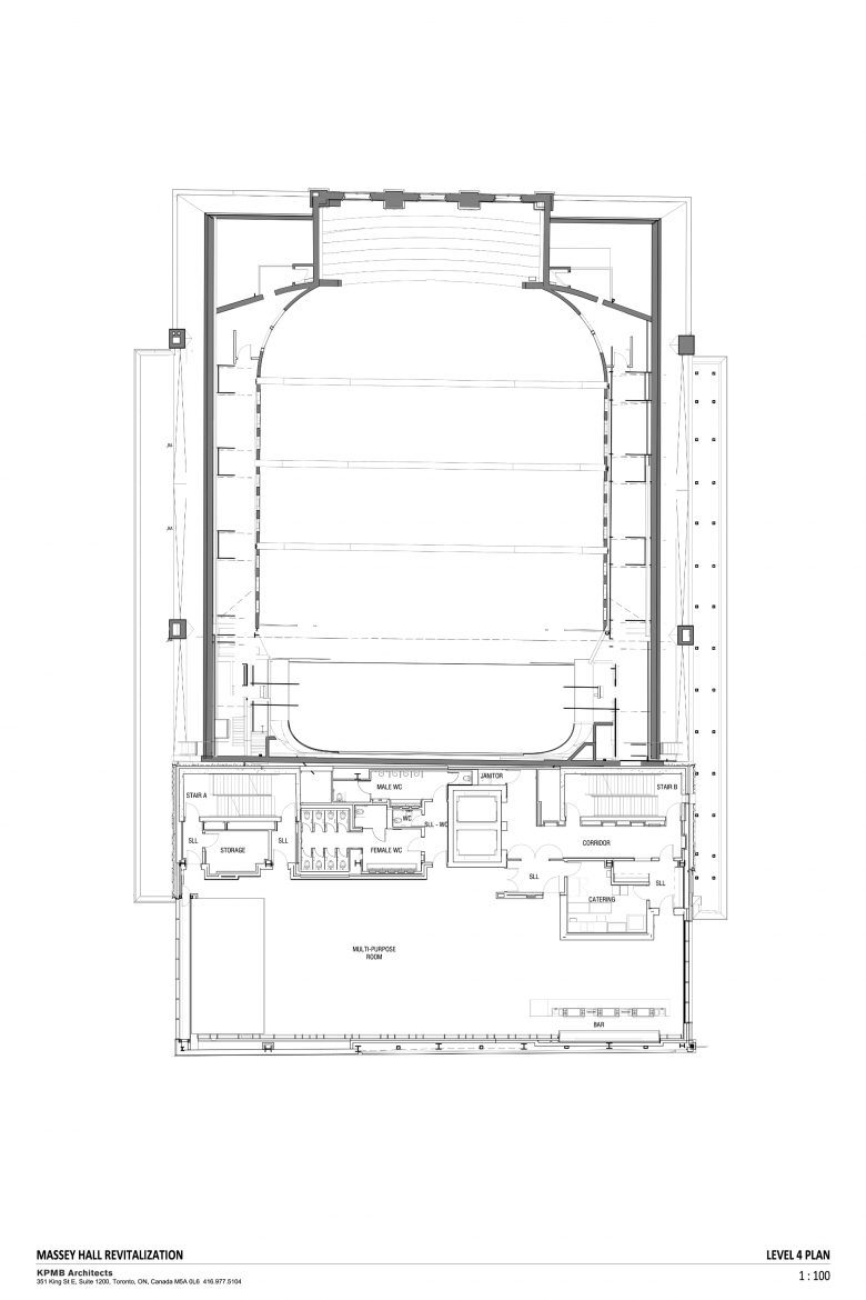
Level 4 Plan (Drawing: KPMB)
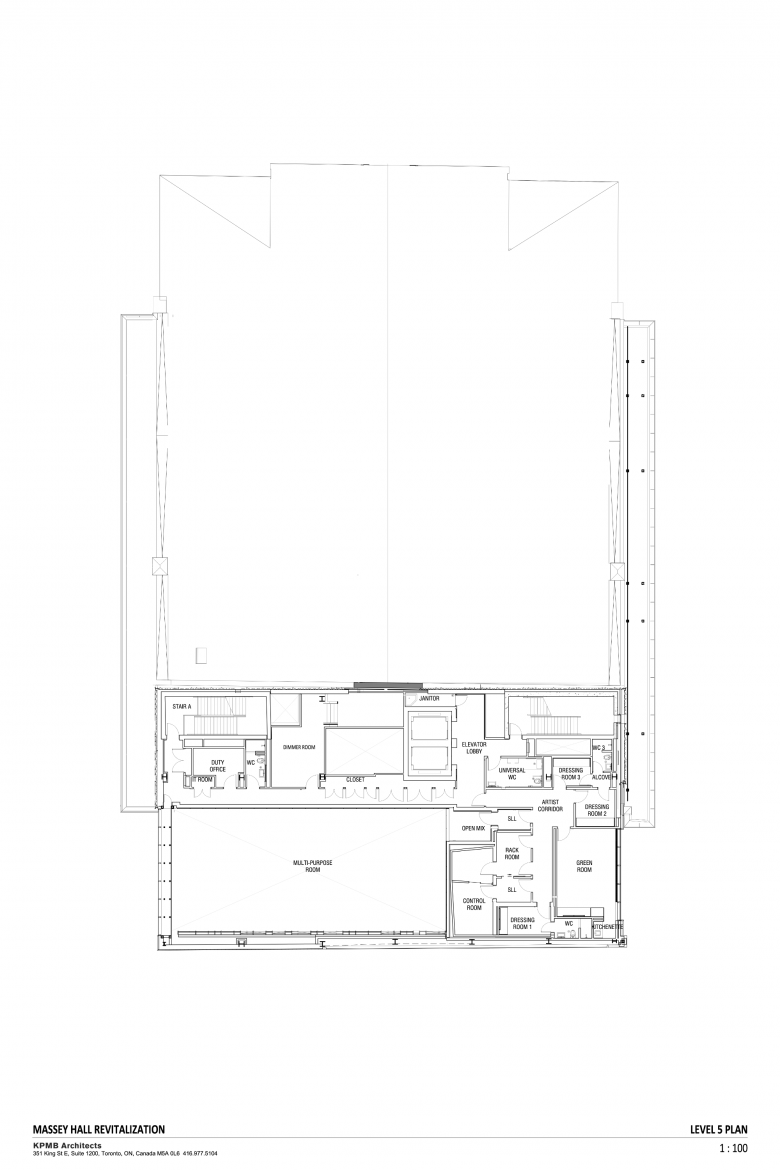
Level 5 Plan (Drawing: KPMB)
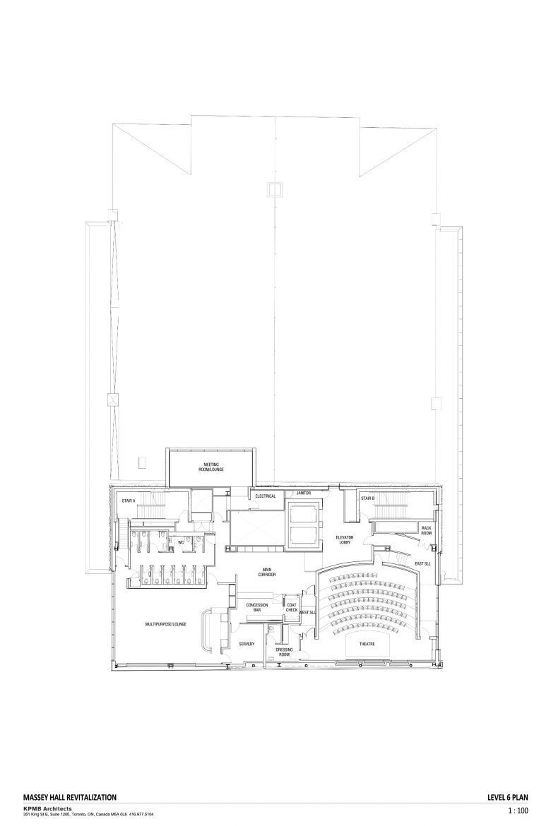
Level 6 Plan (Drawing: KPMB)
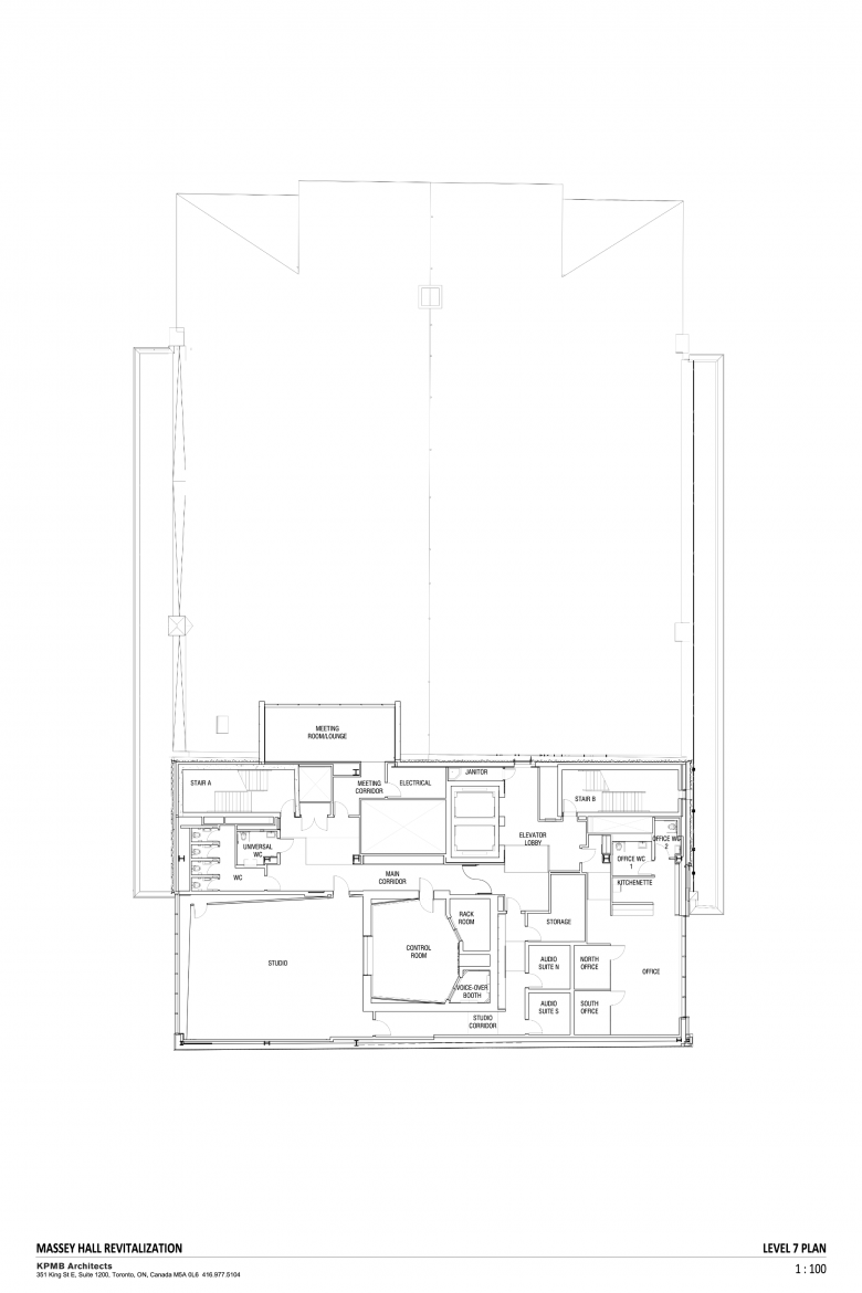
Level 7 Plan (Drawing: KPMB)

Related articles 

Featured Project 

Atelier KI JUN KIM

House by the Wall

Other articles in this category