Hollmen Reuter Sandman Architects

KWIECO Shelter House

Hollmen Reuter Sandman Architects | 12. June 2015
All images courtesy of Hollmen Reuter Sandman Architects

The fundamental principle on which KWIECO policies are founded is the promotion of human rights, economic justice and gender equality by ensuring equal access to justice and equality for women and children.

Women in Kilimanjaro, like the rest of Africa, are most vulnerable to violation of their rights to life, liberty and security. Social and cultural attitudes have allowed violence against women; the law has failed to provide adequate safeguards against violence or to promote attitudes conducive to the enjoyment of their fundamental rights by women. Social attitudes and state neglect are the major causes of the disempowerment of women. 

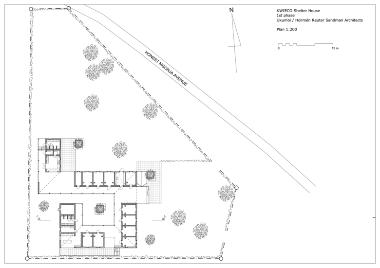
KWIECO has been receiving an increasing number of victims of domestic violence in recent years, and it has sought to respond to their needs as far as its resources allow. Since 2008, KWIECO has collaborated with Ukumbi NGO, a Finnish non-profit organization that provides architectural services for communities in need. Together they outlined the KWIECO Shelter project, and applied funding from the Finnish government.

A successful fundraising project allowed KWIECO to purchase a suitable plot for the building, and with the financial support from the Finnish Foreign Ministry and Finnish foundations, the 1st phase of the building complex was completed and opened in May 2015. The architecture of the Shelter was designed by Ukumbi architects Saija Hollmén, Jenni Reuter and Helena Sandman. The structural design was made by Mike and Larissa Leach from GMP Consulting Engineers Ltd, Arusha, Tanzania. The contractor was Rocktronic Ltd from Moshi, Tanzania.

The second phase of the building complex includes spaces for community education and capacity building, as well as office spaces for KWIECO, to support their work for human rights, and to increase the stability and reliability of the organization. KWIECO and Ukumbi are currently raising funds to start the construction of the second phase of the project.

Architecture of the Shelter
 
The architecture of the Shelter House is designed to respect the Tanzanian culture, climate and spatial hierarchy. Local materials, renewable energies, local manpower and know-how are of importance, as well as participatory planning to ensure the feeling of shared ownership among the people. In order to provide the clients of the Shelter with a safe environment for protection and healing, the Shelter is situated in the inner half of the plot, whereas the second phase of the project will create a protecting volume for the Shelter. The design solutions are made to minimize environmental impacts, taking into account local conditions and making use of all possible resources.

Large covered open air areas allow natural ventilation and free air movement within the building, providing shade and protection from rain. Covered outdoor spaces are used for meetings and seminars. Roof windows provide daylight to the rooms, thus minimizing the need of electrical lightning during daytime. Glass tiles are made out of recycled bottles, to create ambiance and bring colorful light into the toilets. Water is heated using low tech solar heaters. The roof structure has an insulating layer between the corrugated iron roof and the ceiling. In some rooms the ceiling is made of banana leafs.

The doors of the Shelter have a metal frame with bamboo as surface material. The main gate refers to a culturally important habit among the Tanzanian women: a kanga skirt with a printed message is worn to deliver a subtle message to her friends of a guest. The Swahili words on the “kanga” of the main gate have the meaning: “Equal rights for all are the basis of development.”

Other articles in this category