Manuelle Gautrand Architecture
La Comédie de Béthune
In 1994, the agency Manuelle Gautrand Architecture won the competition for the construction of the National Drama Theater, "La Comédie de Béthune."
From the beginning, the project anticipated what has now become an extension: it already was in the form of two functional sections, the first one containing most of the program, which was then carried out, the second one immediately unrealizable because it was positioned on the corner of the plot, involving the demolition of a house.
From 2009, the corner house having been demolished, the extension of "La Comédie De Bethune" was able to be realized at the same time as the renovation of the existing theater.
The agency Manuelle Gautrand Architecture, laureate of a new architectural competition for this extension, took advantage of this unique opportunity to improve and complete the global functioning of the theater and endow it with a rehearsal room allowing the presence of the artists on the site.
The building delivered by the agency in 1999 included most of the features, but compared to a conventional theater, there was still missing a rehearsal room for the artists (provided by the current extension).
The building represents a very large volume entirely in concrete varnish in dark purple. The shape of this volume is slightly curved and rounded, giving it an almost precious appearance and certain softness.
Manuelle Gautrand did not attempt to hide the important volume of the building, but to assert this shape, and improve it by rounding it and dressing it entirely in purple varnish. This warm color used several references: the theater, often red through the ages, a timeless and strong color. It is also a reference to the Northern bricks, to the colored facades that goes from red to brown through purple. When the color of the bricks is not bright enough to contradict the gray sky, they are often painted, reinforced with large flat glowing which is brightening up the city.
The facades thus present a monumental aspect and distinguished themselves by their purple satin color. The surface of the varnish is covered with a pattern from stencil, drawing very graphically a frieze of black glazed bricks, from the floor to the top. This stylized frieze has allowed giving a certain scale to the facades of this part of the project.
It’s in black that the agency coated this extension: a deep and powerful color. To create a soft link with the initial volume, this black is implemented in the form of a kind of weaving metal panels, which are drawing large rhombuses, to remind the ones of the purple rounded shape.
The rhombuses thus seem to go from one volume to another; they are declined in two different forms. Indeed, on the existing building the rhombuses are drawn using stencils on the concrete, and on the extension, the rhombuses are drawn in crossed metal cladding, mixing successively “black matte” and “glossy black” panels.
The existing building is assembled on a diagonal frame which allows attaching those shaped panels. The waves of these panels, mat and glossy, take the light differently, depending on their degree of shine and their orientation to the light. Besides this extension of the huge rhombuses drawn on the existing purple facade, there is a delicate inspiration taken from the artist Pierre Soulages’ work.
Finally this beautiful corner piece completes the project with a deep black and powerful volume: a way of asserting the theater’s anchor in the city of Bethune. And at the same time, this “dark” black is sometimes extremely light when the daylight faces the façade of the building, as it does in the paintings of Soulages ... The black becomes shiny, bright, and almost white. The building is refined and alleviated; it becomes almost crystalline, thus completing the round existing volume with a stricter and more geometric shape.
Today, the street corner house having been demolished, the extension was able to be realized after 16 months of work, partially in occupied site. The agency Manuelle Gautrand Architecture took this opportunity to put in the current building safety regulations (which have changed since 15 years).
The project reached two main goals:
1. Realize the extension, planned since 1994, including the rehearsal room,
2. Put in the new safety regulations and renovate the theater (the administration, the hall...).
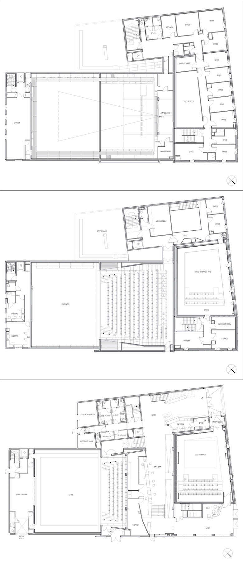
1. The Extension
The extension is located on the corner of the plot, on three levels: a volume of high-rise located on the same level as the natural ground, and dedicated to the rehearsal room; then a level of offices, which links with the existing office floor to the second floor of the building.
The size of the rehearsal room allows relocating the hall on the corner of the November 11th street and the Avenue Victor Hugo, a provision that already existed during the competition in 1994. This position has several advantages: it allows to give a better visibility to the theater and to make the coffee bar more accessible. The coffee bar formerly located under the volume of the room’s floor, could not benefit neither of a direct entrance from the Avenue Victor Hugo, nor a natural lighting.
Now, the construction of the hall corner connects directly to the coffee, bringing a natural lighting and making it an animated and welcoming passageway. Above, the administration has a larger and more functional space thanks to the extending from the second floor of the existing theater.
2. Restructuring of the Existing
Many spaces have also been changed within the existing building. Indeed, since the delivery of the original building fifteen years ago, the safety regulations have evolved considerably. This project therefore involved the upgrading of the entire building. Several safety regulations were concerned, including the fire safety regulations and the accessibility to all spaces of the theater for disabled people.
The extension also required the construction of a staircase located on the right of the future hall and serving on the first floor the upper level of the rehearsal room of the CNAD (National Academy of the Dramatic Arts) and its additional premises, and the offices on the second floor. Finally, the building reached the most ambitious thermal and energy regulations.
The agency used all these work to complete the Room Above the Pit, which had been left "raw" during the construction of the original building, into a second rehearsal room without grid, and smaller than the main rehearsal room, with an access facilitated by the raising of the staircase of the offices.
PROJECT CREDITS
CONTRACTING AUTHORITY
COMMUNAUTE D’AGGLOMERATION DE BETHUNE (Artois Comm)
USER
LA COMEDIE DE BETHUNE
ARCHITECT
MANUELLE GAUTRAND ARCHITECTURE Manuelle Gautrand, representative architect
ENGINEERS & CONSULTANTS
Stage design: BATI-SCENE
Structural engineering: KHEPHREN
Acoustics: Jean-Paul LAMOUREUX
Fluids engineering & economy: HEXA INGENIERIE Scheduling and coordination: HD PROJECT
OTHER PARTICIPANTS
Control Office: PREVENTEC
Shell : RAMERY
Façades : DITER
Partitions - ceilings : C4M
Woodwork : BARA MENUISERIE Painting-wall coatings : VANDENDRIESSCHE HVAC and plumbing : BONNEL
Electricity - Networks : EIFFAGE ENERGIE Stage equipment: CAIRE-MANGANELLI
FIGURES
Surface : 2.0820 sqm in total, including extension of 720 sqm
Extension & restructuring cost: about 3,6 million Euros including all taxes
Theater of 350 places, with grid, 15-meter high and 14-meter large scene frame, 15,50-meter large and 13,50-meter deep theater floor with trap room, grid and fake grid. Rehearsal space with grid.
DATES
- Initial building : competition: 1994, delivered in 1999.
- Extension-restructuring: competition : 2009, Stu- dies: 2010-2013, Construction: 2013-2014, Opening of the new theater with its rehearsal space : september 2014.
Related articles
-
-
The Three-Body Problem: Trapped in a Wave Sandwich
Eduard Kögel, Scenic Architecture Office | 13.04.2026 -
-









