MaO. Architectes Urbanistes, Tectone, JTB architecture

Les ULIS

MaO. Architectes Urbanistes, Tectone, JTB architecture | 17. November 2014
Photo: © Luc Boegly (All images courtesy of MaO)

Learning from the urban parameters
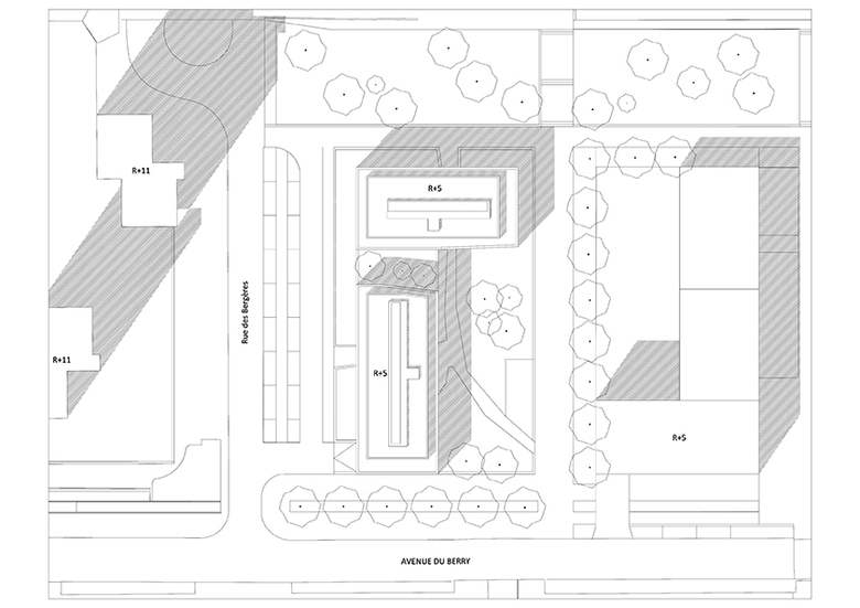
The operation, located on the limit of Les Ulis ZAC called the "heart of the city"; in an urban context based on a proliferating process of collective dwellings. That context bring us into a reflexion on the transition from the modern and the existing.

Photo: © Luc Boegly
Photo: © Luc Boegly

The contextual approach, together with the environmental requirements, made us think of a
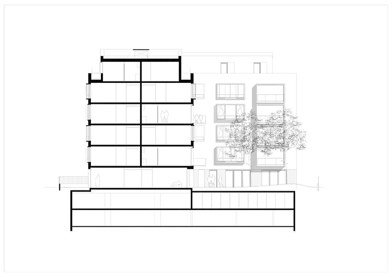
divided volume in answer to the urban and environmental insertion. The volume, divided in two parts but growing from the same base, has enlarged the exposed surface to the south, created a porosity between east and west, increased the collective garden exposure, and provoked the confrontation between the new center and the existing urban context by creating a visual breakthrough.

Photo: © Luc Boegly
Photo: © Luc Boegly

Having the opportunity to cross the building from one landscape to another , the ground floor offers a sensation of porosity. Mainly glazed, the collective spaces maintain a good relationship with nature from the street or the garden. The garden not only has a visual impact but it is also a passage (from the privative apartment to the bike shelter and carport) as well as a social link between inhabitants.

Photo: © Luc Boegly
Photo: © Luc Boegly

Our quality concerns for the private realm made us create decks and gardens that also establish a landscape harmony. The separate elements between those gardens are conferring to inhabitants an intimacy but doesn't reduce the luminous supply in the apartments.

Site plan

With a rationalist objective, the envelope has a range of various configurations while maintaining an order on the public space and offering variations to the internal uses, thanks to being  made of big openings. Big frames integrate the window openings, wooden shutters and lifelines.

Ground floor plan

The building includes 44 apartments of various typologies – from T2 to T5 – all with a traversing characteristic and/or double-orientation. Mainly placed on the angles of the building, the living rooms provide bi-directional views and a high sunlight. The whole features external extensions generously sized: hollow balconies for west parts and projections over the internal garden for east apartments.

Building section

Other articles in this category