jvantspijker urbanism architecture research

Loft Office for Architecture

jvantspijker urbanism architecture research | 4. November 2015

PROJECT CREDITS

Client
Havensteder, Lucidious, jvantspijker

Design
jvantspijker urbanism architecture research 
Rotterdam

Project Team
Jaakko van ’t Spijker, Paul van den Bergh, Julio Gil, Casper Aussems

Contractor
Spacecreators

Photography
René de Wit

Photo: René de Wit

A central glass meeting room, with a pantry and stairs leading to the plant-filled roof organizes the large warehouse space in a single sweeping gesture, transforming it into a generous and optimistic working space.

Photo: René de Wit

The transformed office space is situated in a waterfront factory, called ‘De Fabriek van Delfshaven’. De Fabriek is a multi-tenant building in which a large number of creative offices are housed. In the last two years, this factory has become a vibrant working community where design studios, software companies and progressive small businesses are housed together in one of the oldest areas of Rotterdam. 

Photo: René de Wit

The central design idea behind the transformation of the office was to keep the scale, transparency and lightness in place and to connect the office to the main atrium of the building. Therefore the central element was designed as a hybrid between a room, a wall and a piece of furniture; it divides, connects and provides service space.

Photo: René de Wit

In a single continuous gesture, a wooden shape takes on the function of wall-cladding, floor, wall, kitchen and roof. The new element uses the potential of the large free height provided by the open space, by adding an extra dimension to the use of the space in the form of a modest roofgarden on top of the meeting room. A small flight of stairs leads up to this garden that provides a lovely space to relax during hectic working days. At the same time, the garden is a spectacular landscape feature in the office and absorbs sound to create an acoustically sound environment.

Photo: René de Wit

The materialization and detailing of the design is straightforward and simple. Only lacquered plywood and glass were used; with two steel columns proving support in the corners of the meeting room. The rough and natural exposure of the wood contrasts with the frameless detailing of the glass, which emphasizes the floating character of the garden/roof. The meeting room is acoustically insulated from the rest of the open office space, providing a space for private meetings, telephone calls and a quiet space to work in.

Photo: René de Wit

This conversion of a factory space into a grand office loft space demonstrates the potential of often forgotten spaces in inner cities. The way in which this type of space accommodates new functions in a both classy and seamless manner, is exemplary for the opportunities that layering, re-using and re-vitalizing provide for central but forgotten areas in inner cities.

Photo: René de Wit
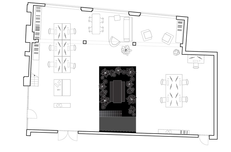
Floor Plan (Drawing: jvantspijker urbanism architecture research)
Roof Plan (Drawing: jvantspijker urbanism architecture research)
Elevation (Drawing: jvantspijker urbanism architecture research)
Section (Drawing: jvantspijker urbanism architecture research)

PROJECT CREDITS

Client
Havensteder, Lucidious, jvantspijker

Design
jvantspijker urbanism architecture research 
Rotterdam

Project Team
Jaakko van ’t Spijker, Paul van den Bergh, Julio Gil, Casper Aussems

Contractor
Spacecreators

Photography
René de Wit

Other articles in this category