Mark Koehler Architects

Lofthouse I

Mark Koehler Architects | 10. November 2016
Photo: Filip Dujardin

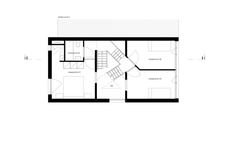
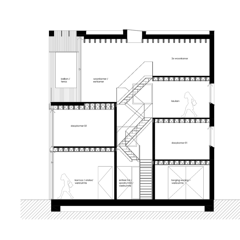
The house is based on a reversed principle: its owners decided to sleep downstairs and live upstairs. This allows them to fully enjoy the views of the harbour from the kitchen, the lounge and the dining room. The owners’ wish was to connect the areas on the upper floors with the lower floors in one, continuous flow. A solution was found by incorporating a staircase that serves as an atrium and has become a central design element. The atrium has been designed so that each vertical walk becomes an attractive adventure. Another classification principle is the split-level structure: each floor is half a floor higher or lower in relation to the previous or the next. This allows the owners to look easily from one floor to the other. This creates a gradual transition from one floor to the next, unlike the clean break between each floor in a standard terraced house.

Photo: Filip Dujardin

Surprising sightlines
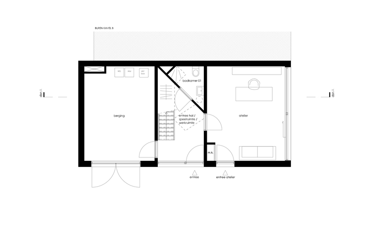
Thanks to the combination of the atrium — the staircase — and the split-level structure, the different levels of the house are truly interconnected in a single, continuous flow. This also goes for the workspace on the ground floor, which is located adjacent to the garden and the two bedrooms. The bedrooms are designed like small houses within a house, and are experienced as such. They were also given windows on the staircase side, resulting in some surprising sightlines. It was decided to position the openings in the façade in a playful manner, offering different views of the remarkable surroundings from different areas in the house.

Photo: Filip Dujardin

Sturdy and serene atmosphere
This industrial location inspired the architect to design a sturdy framework with large glazed surfaces and black opaque, painted hardwood frames. Besides being sturdy, the house also emanates a serene atmosphere. The house has a refined wooden wall cladding, the transition from coarse to fine resulting in a façade with a layered and surprising appearance. The façade is covered with a preserved Radiata Pine softwood — NobelWood from Foreco. This type of wall cladding requires no treatment and is completely maintenance-free. NobelWood, a wood type resulting from responsible forestry, is a sustainable alternative to tropical hardwood. It has durability class 1, which is similar to teakwood, ages beautifully and colours with the seasons. This makes it not only a sustainable choice but also an aesthetic one. 

Photo: Filip Dujardin

Evolutionary prototype
What is so special about this house is its prefab wooden construction. The design was based on the Superlofts concept by Marc Koehler Architects, situated on the Houthaven quay in Amsterdam. In Loft House 1, the building system was optimized and further expanded, resulting in an evolutionary prototype. The wooden structure serves as a framework in which floors can be installed in any position, giving the entire house a flexible layout. In addition, the prefab wooden structure shortens the construction period considerably, to just six months. The construction of the prefab elements in a closed workshop took two only weeks, and assembly at the building site took no more than four days. 

Photo: Filip Dujardin

Climate-neutral
The Loft House is a completely climate-neutral home. The PV panels on the roof, a CO2-controlled ventilation system, mechanical extraction, underfloor heating and a collective heat grid ensure that this home’s energy consumption is kept to a minimum. Virtually the entire house is made of wood — one of the most durable materials imaginable. Wood stores CO2 and is light, so that less fuel is spent during transport. Wood is a material that does not contain or bond any chemical substances, and it does not have a high radiation value, like concrete. In addition, wood absorbs moisture during wet periods and releases it when the air is dry, thus regulating the indoor climate. This characteristic was fully utilized by opting for the vapour-permeable or “breathable building” principle: no damp-inhibiting foils were used, and the construction passes any moisture produced indoors on to the air outside. Aside from these health-related benefits, wood is also pleasant to live in because of the warm, natural atmosphere and its pleasant acoustics.

Photo: Filip Dujardin
Photo: Filip Dujardin

PROJECT CREDITSMain architect: Marc Koehler Architects | Project architect: Chun Hin Leung | Project team: Marc Koehler, Hugo Vermeer, Carlota Alvarado, Mariana Rebelo Fernandes, Marijn Luijmes | Contractor: Siemensma

Site Plan (Drawing: Mark Koehler Architects)
Level 0 Plan (Drawing: Mark Koehler Architects)
Level 1 Plan (Drawing: Mark Koehler Architects)
Level 2 Plan (Drawing: Mark Koehler Architects)
Level 3 Plan (Drawing: Mark Koehler Architects)
Elevations (Drawing: Mark Koehler Architects)
Section (Drawing: Mark Koehler Architects)

Other articles in this category